Serenely set in a peaceful cul-de-sac with Shipston Reserve at the end of the street, this sophisticated ‘as new’ four bedroom, three bathroom family residence delivers exceptional family appeal close...
Serenely set in a peaceful cul-de-sac with Shipston Reserve at the end of the street, this sophisticated ‘as new’ four bedroom, three bathroom family residence delivers exceptional family appeal close to shops, cafes, transport, and schools.
Beautiful low maintenance gardens, lead to a soaring pivot front door - a dramatic entry point to a stunning sanctuary, built to bring beauty, comfort, and joy to family and friends alike.
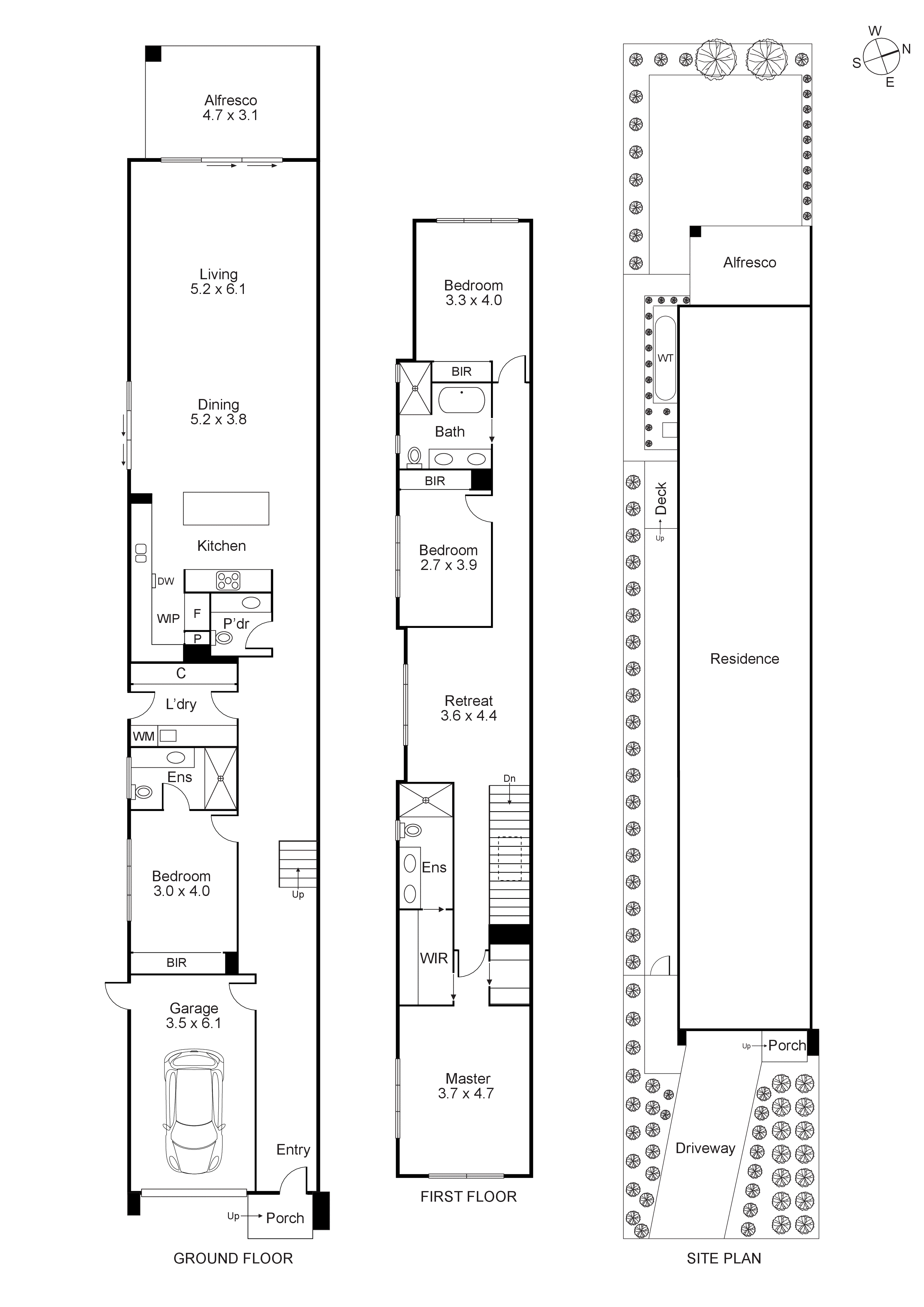
Befitting a prized location, lavishly appointed interior dimensions reveal a beautifully proportioned floorplan dedicated to luxury and practicality.
Wide engineered oak floors and high ceilings flow through the welcoming entrance hall past a storage-rich laundry, with outdoor access, and a sleek powder room before arriving at the sensational family living, dining, and kitchen zone, primed for relaxation and entertaining.
Overlooking the expansive living and dining space, the sublime gourmet kitchen delivers enviable prep space, seamless storage, stone benchtops and breakfast island, and Miele appliances including 5-burner gas cooktop, two ovens, and a dishwasher.
Glass sliding doors from the living area seamless connect to a covered entertainment deck for wonderful al fresco living and dining set against a backdrop of secluded northwest facing greenery.
Up the glass and timber staircase, a light-filled retreat precedes three bedrooms including the lavish master suite with plantation shutters, dual walk in robes, and luxurious twin vanity ensuite. Two additional bedrooms on this level feature built in robes and share a sumptuous twin vanity bathroom with freestanding bath and separate shower. On the ground floor, the fourth bedroom enjoys a sleek ensuite and fitted robes.
This exceptional haven also includes security alarm, video intercom, zoned heating and air conditioning, plentiful storage, 4000 litre water tank, and internally accessed auto garage.
At this wonderful location just a short walk through bushland to vibrant Cheltenham Village, Cheltenham train station, and Cheltenham Primary School, and strolling distance to Seaview Village, Cheltenham Golf Club, Southland Shopping Centre and station, and the beach. Plus, zoning for Mentone Girls’ Secondary College and Beaumaris Secondary College further enhance the family credentials of this excellent home.
For more information about this striking double storey haven contact Romana Altman or Louise Herterich at Buxton Sandringham.
