Take part in the transformation or make transforming this solid-brick original your occupation! Perfectly-sized and addressed for success, this approx 616sqm property is set to take its part in the revitalisation of this low-traffic Hampton address.
Take inspiration from the neighbours and work with this well-proportioned property to meet...
Take part in the transformation or make transforming this solid-brick original your occupation! Perfectly-sized and addressed for success, this approx 616sqm property is set to take its part in the revitalisation of this low-traffic Hampton address.
Take inspiration from the neighbours and work with this well-proportioned property to meet everlasting demand for prestige new Bayside living. Sized to suit a successful dual-occupancy development (Subject to Council Approval), this smart site is ready to reward with good access, a growth location and great value.
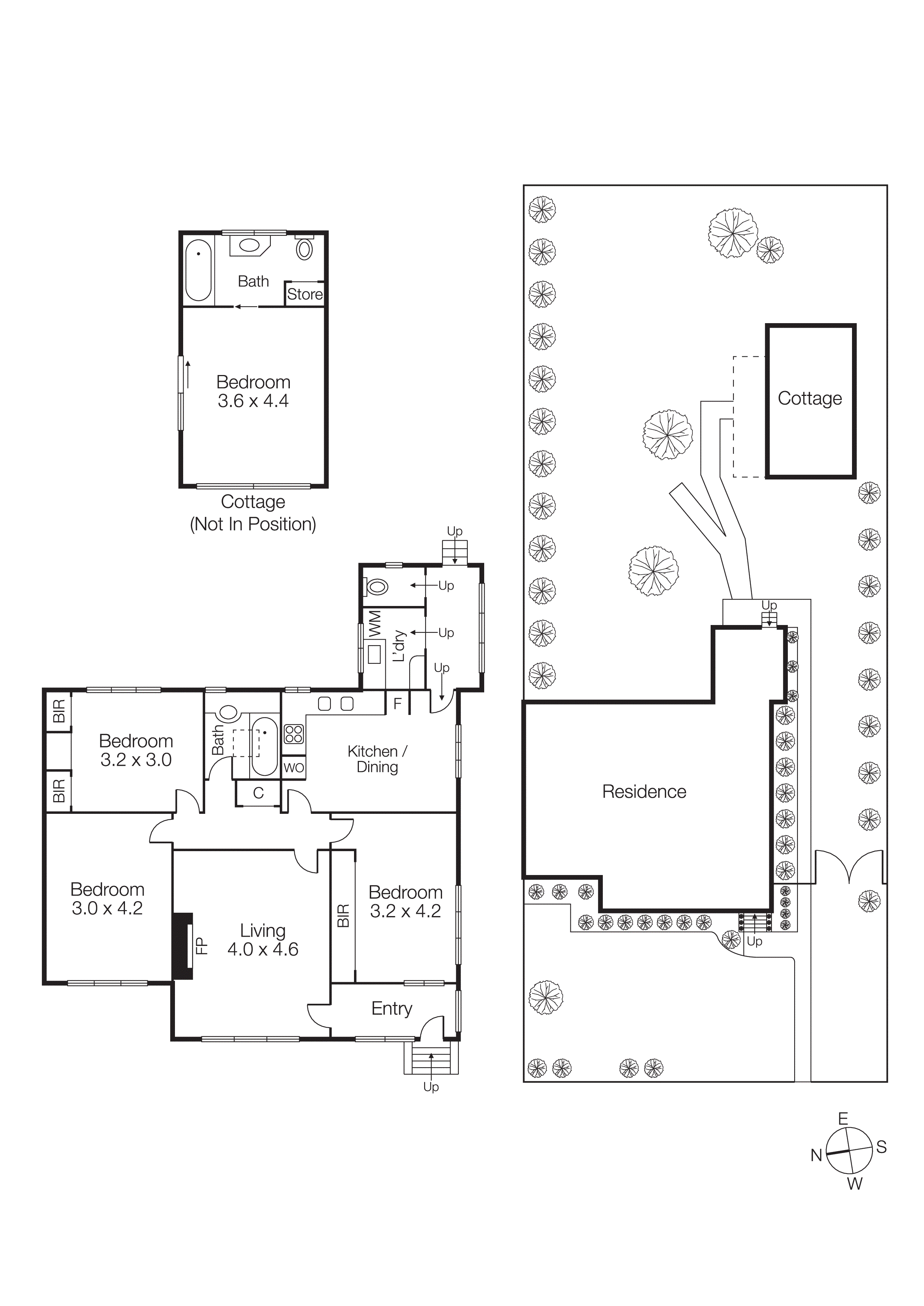
But don’t overlook the family value in the immaculate vintage home here. Offered for the first time in over 60 years, this spotless three bedroom home is already upgraded with a timeless eat-in kitchen, modern bathroom ...and a charming cottage-style garden-studio – complete with a plantation-shuttered fourth bedroom and second full bathroom.
Providing flexible potential to renovate and extend into beautifully established rear gardens, this versatile home also provides a very liveable and potentially rentable option until it’s time to build on the success of this Hampton address. For more information about this well-addressed property contact Scott Hamilton or Stefan Delyster.