Looking to the future with 46sqs of breathtaking family living, this is visionary design with a wide-open view. Designed to maximise light, lifestyle and an iconic outlook through a grand old ghost-gum to the greens of Hampton Bowls Club, this enormous four bedroom, dual home-office, 3.5 bathroom residence from leading Bayside builder, Aricon, sets...
Looking to the future with 46sqs of breathtaking family living, this is visionary design with a wide-open view. Designed to maximise light, lifestyle and an iconic outlook through a grand old ghost-gum to the greens of Hampton Bowls Club, this enormous four bedroom, dual home-office, 3.5 bathroom residence from leading Bayside builder, Aricon, sets the new standard in prestige family living.
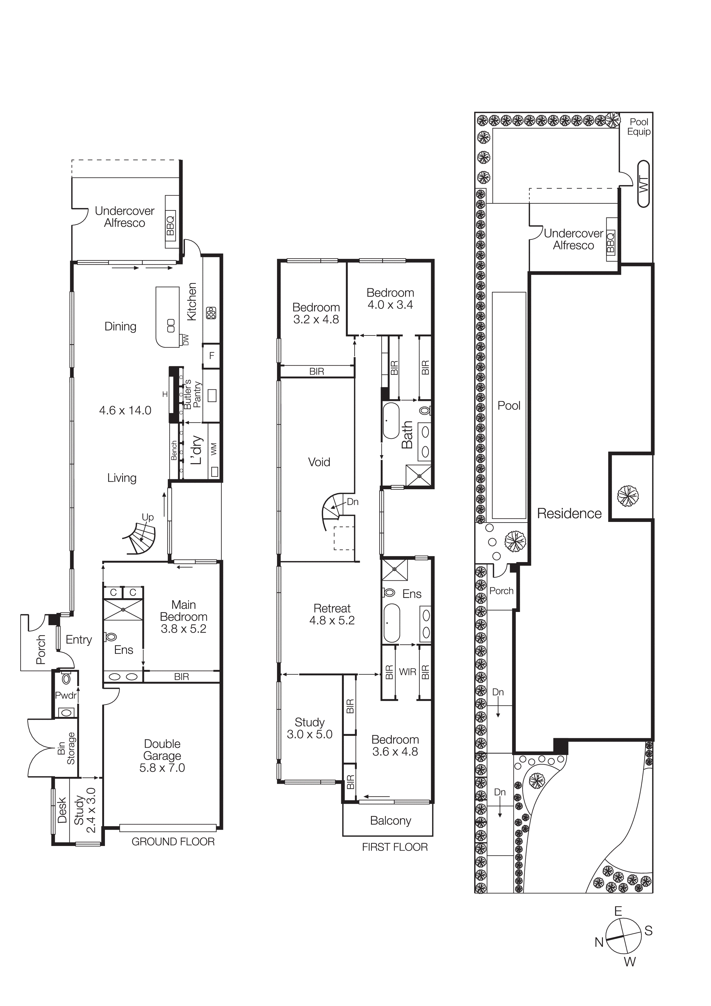
Anchored by an atrium-courtyard, centred on a sculptural helical staircase, and illuminated by a towering 7m wall of glass, this bold design from Eric Sette Architects rises to spectacular heights with voluminous living zones upstairs and down facing north through the window-wall to a glittering 13m lap-pool. Unfolding with a seamless flow to a poolside alfresco area, the home offers flawless work-life balance with a sleek fitted-study with an entry view, plus a treetop business-at-home-office; sized to double as yet another living zone.
Immensely accommodating with a multi-suite floorplan providing ensuite access from almost every bedroom, the home offers principal-suites downstairs (with an atrium outlook) and up (with a greens-view balcony), and provides the luxury of endless storage; with bespoke dual robes for most bedrooms (including dual-side walk-ins).
Appointed to entertain at the highest level with an elite Miele appliance kitchen (with integrated fridge-freezer and gas-cooktop) centre-stage, there’s an extended butler’s pantry back-of-house and a Beefeater BBQ bench outside. The home is specified to the highest standard too; with dual-vanities and Swiss wall-hung Geberit WCs for each fully-tiled bathroom, feature LED lighting (under-bench, in-niche and behind-mirror), and architectural detail including shadow-line architraves.
Curated to an impeccable standard with the finest Caesarstone Mineral benchtops, the lightest Oak floors, and the latest brushed-brass tapware and Kit-Kat tiles, the home’s interiors are expertly tailored with lofty, automated linen sheers (dropping gently over 7m for the glass-wall) on full-height commercial double-glazing, auto- external louvres filtering the first-floor view and craftsman-customised veneer cabinetry...all set with an artisan-laid design of slimline, exquisite Spanish bricks.
Absolutely uncompromising with individually zoned climate-control supplemented by a feature gas-fireplace and in-floor hydronic heating, the home is secured by alarm, keyless entry and video-intercom, and made efficient by a back up 5kW solar-system and Tesla EV charger for the double auto-garage.
Even the outdoor spaces are crafted with exceptional consideration, from hand-laid non-slip elements for the polished concrete pathways, almost virtually unidentifiable artificial turf, to cool white tiles for self-cleaning, solar-heated pool echoing subtle monochromatic interior finishes.
An incomparable property with a uniquely tranquil, untouchable view, even the location is exceptional; just minutes’ walk to Hampton Primary School and the South Rd Colleges (St Leonard’s and Haileybury), minutes’ drive to the central Brighton schools, and within easy reach of Hampton St’s latte strip, Church St’s iconic shopping and famous Dendy St beach!
For more information about this 46 sq showpiece contact Peter Hickey or Stefan Delyster at Buxton Sandringham.
