Footsteps to Edithvale Primary School and just moments to parks, transport and the area’s stunning beaches, this warm and welcoming 4-bedroom, 2-bathroom home is an offering tailor-made for easy family living. Providing spacious, sun-filled accommodation across two inviting levels on its prime corner allotment of approx. 466sqm, among its...
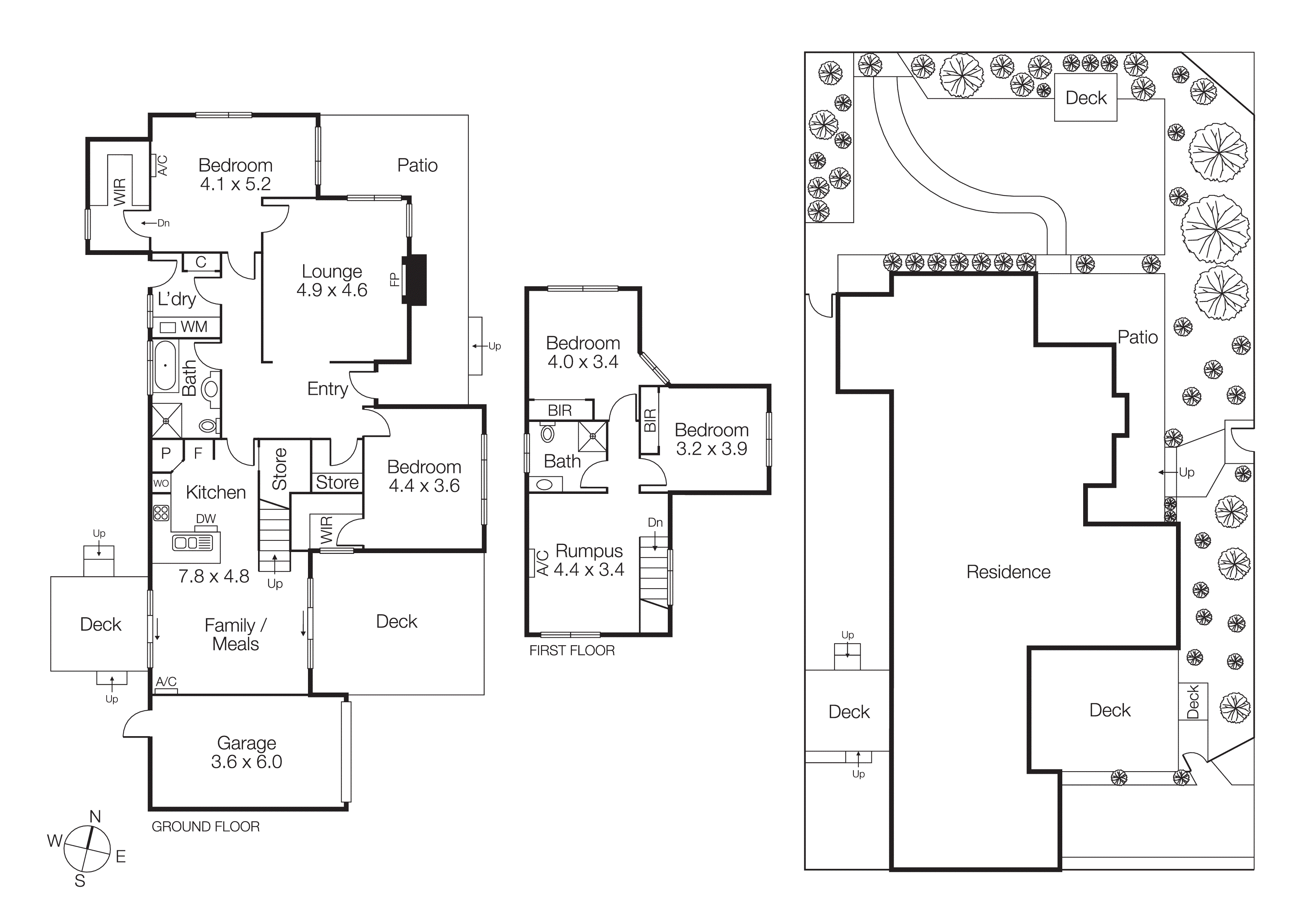
Footsteps to Edithvale Primary School and just moments to parks, transport and the area’s stunning beaches, this warm and welcoming 4-bedroom, 2-bathroom home is an offering tailor-made for easy family living. Providing spacious, sun-filled accommodation across two inviting levels on its prime corner allotment of approx. 466sqm, among its highlights are a formal lounge with log heater, a relaxed family room with alfresco access and a smartly appointed entertainer’s kitchen with quality stainless steel appliances and handy breakfast bar.
The downstairs bedrooms enjoy walk-in-robes and the first of two bright bathrooms are positioned downstairs, while two more robed bedrooms and a second bathroom are tucked away upstairs in a peaceful zone of their own, along with a versatile lounge area/retreat. Ample storage throughout, a full laundry, split system heating/cooling are all included – there are also decked areas to both the front and back while the fenced front yard provides a safe and secure haven for children and pets to play. Wrapping up a truly appealing family package are a water tank and garage; proximity to Edithvale train station & bus stops, sporting grounds, parks, shops and the foreshore is simply the icing on the cake!