Infused with light and luxury, this exceptional town residence excels with a leafy Landcox location and contemporary ease, mere metres from the park, local cafes and Gardenvale Primary. Set amidst...
Infused with light and luxury, this exceptional town residence excels with a leafy Landcox location and contemporary ease, mere metres from the park, local cafes and Gardenvale Primary. Set amidst lush landscaping, the architect-designed home is an entertainer’s oasis with soaring spaces, prestige appointments, and a spectacular rear garden.
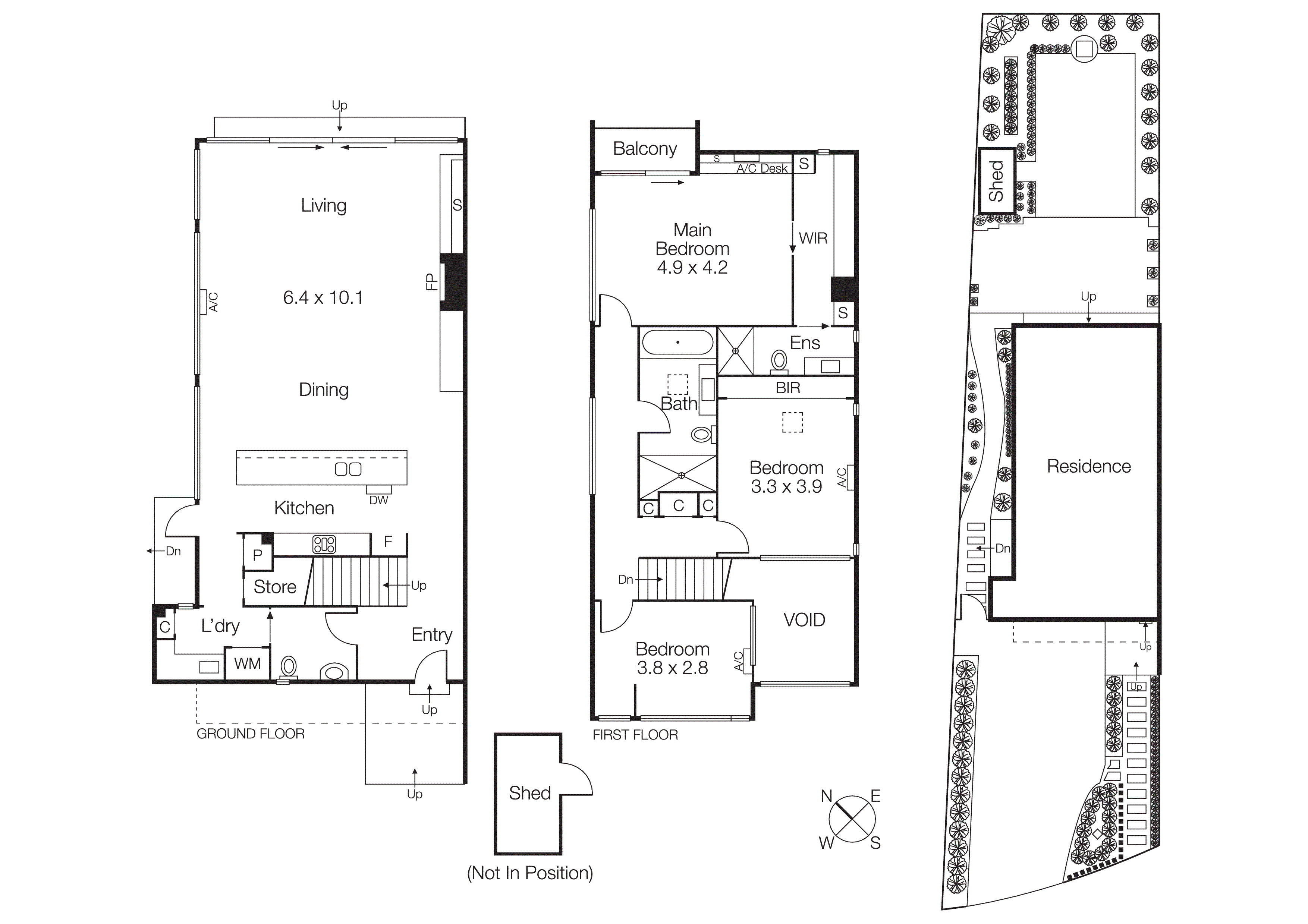
A stunning double-height entry creates the perfect first impression, while an expansive living and dining domain, embraced by walls of moveable glass, blurs the lines between inside and out. The gourmet kitchen revolves around an elongated 4m stone island bench, designed for casual meals and entertaining. Outside, mature hedging wraps the verdant rear in complete peace and privacy, providing an idyllic backdrop for al fresco occasions.
The kitchen, customised with Miele and Smeg appliances, leads to a concealed wall of storage, a well-appointed laundry and luxe guest powder room, ensuring high style and functionality. Sought after features such as pendant lighting, hardwood flooring, an open fireplace, hydronic heating, reverse cycle air conditioning, app-operated security with outdoor cameras and sensor lights, and ample parking, further enhance this beautiful home’s undeniable appeal.
The light and airy aesthetic continues upstairs where three bedrooms reside in complete tranquillity. Each refined space frames a picturesque outlook, with the bespoke main-suite flaunting a private tree-top terrace, integrated study space, walk-in robe and en suite. The second bedroom boasts a wall of built-in storage, and the primary bathroom offers stone finishes, a heated towel rail, and a relaxing bathtub.
Savour the lifestyle afforded by this exclusive locale in close walking distance to the park’s grassy expanses, playground and ornamental lake, Zest and Bliss cafes, and Gardenvale Primary school. It also provides easy access to Brighton’s renowned restaurant, retail and rail hubs including Bay Street, as well as North Road’s excellent commuter links to the beachfront, Monash University, and the Peninsula. This lock-up-and-leave property exemplifies blue chip Bayside living.
For more information about this immaculate town residence please contact Halli Moore at Buxton Brighton on 0403 777 661.
