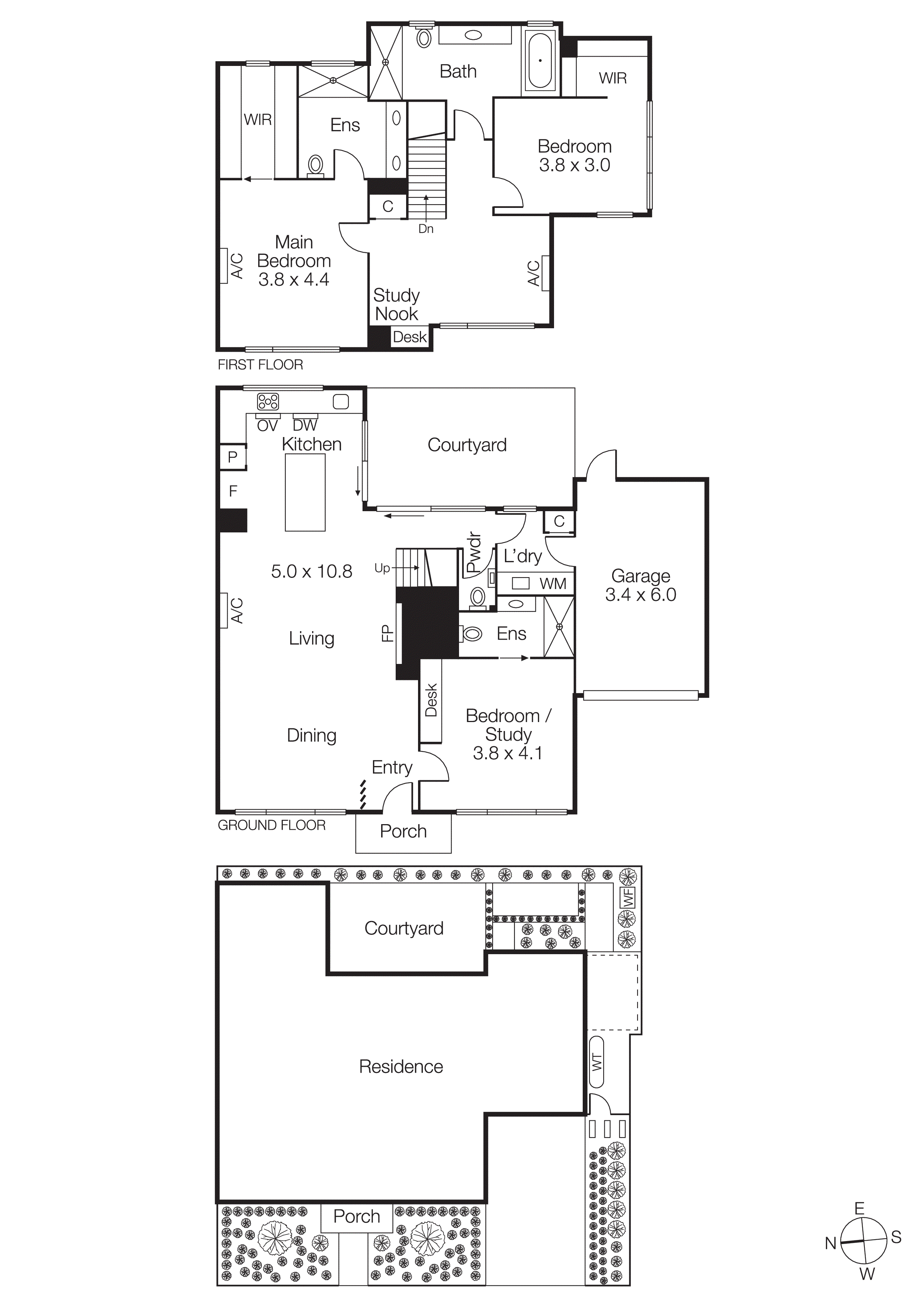
Stand apart from it all with architectural presence, adaptable accommodation and an outstanding entertainers’ garden. Virtually freestanding (with just a garage as the link), this three-bedroom, 3.5 bathroom home is set apart from all the rest by a versatile dual suite, dual zone design that puts a plush master suite (with dual-vanity ensuite and...
Stand apart from it all with architectural presence, adaptable accommodation and an outstanding entertainers’ garden. Virtually freestanding (with just a garage as the link), this three-bedroom, 3.5 bathroom home is set apart from all the rest by a versatile dual suite, dual zone design that puts a plush master suite (with dual-vanity ensuite and walk-in robe) up in the treetops... and adds a home-office fit-out to the ground-floor guest (or alternative master) suite.
Versatile by design with downstairs flowing seamlessly to landscape architect-designed gardens through a corner of stacking sliders, and upstairs adding to work life/balance with another fitted-workstation, the home goes above & beyond on every level. Starring a prestige European appliance kitchen with 900mm appliances and scaled up designer bathrooms, there’s an upscale specification too.
Optioned up with great storage including walk-in and built-in robes, this garden residence features premium stone benchtops (even for the laundry), European oak floors plus plush carpets, airy roof-hung sheer curtains and plantation shutters. Climate controlled by ducted heating plus reverse-cycle air-conditioning upstairs and down, even the sculptural ceiling fans have a designer edge!
A rare sanctuary set against the backdrop of expertly-crafted auto-irrigated grounds with a generous auto-garage, this stand-out streetfront home is surprisingly close to it all; around the corner from Alexander Park, no more than five blocks to the heart of Hampton St, and a similar distance to the Thomas St recreation precinct and playground...all within easy reach of the station, the bay and all the schools - including Haileybury and St. Leonard’s Colleges.
For more information about this outstanding streetfront home contact Scott Hamilton or Stefan Delyster at Buxton Sandringham.