Stunning in design and detail, this lavishly proportioned four bedroom, three bathroom residence aligns glorious light filled spaces with refined elegance and outstanding indoor-outdoor liveability, a...
Stunning in design and detail, this lavishly proportioned four bedroom, three bathroom residence aligns glorious light filled spaces with refined elegance and outstanding indoor-outdoor liveability, a short stroll to the Black Rock Village and the beach.
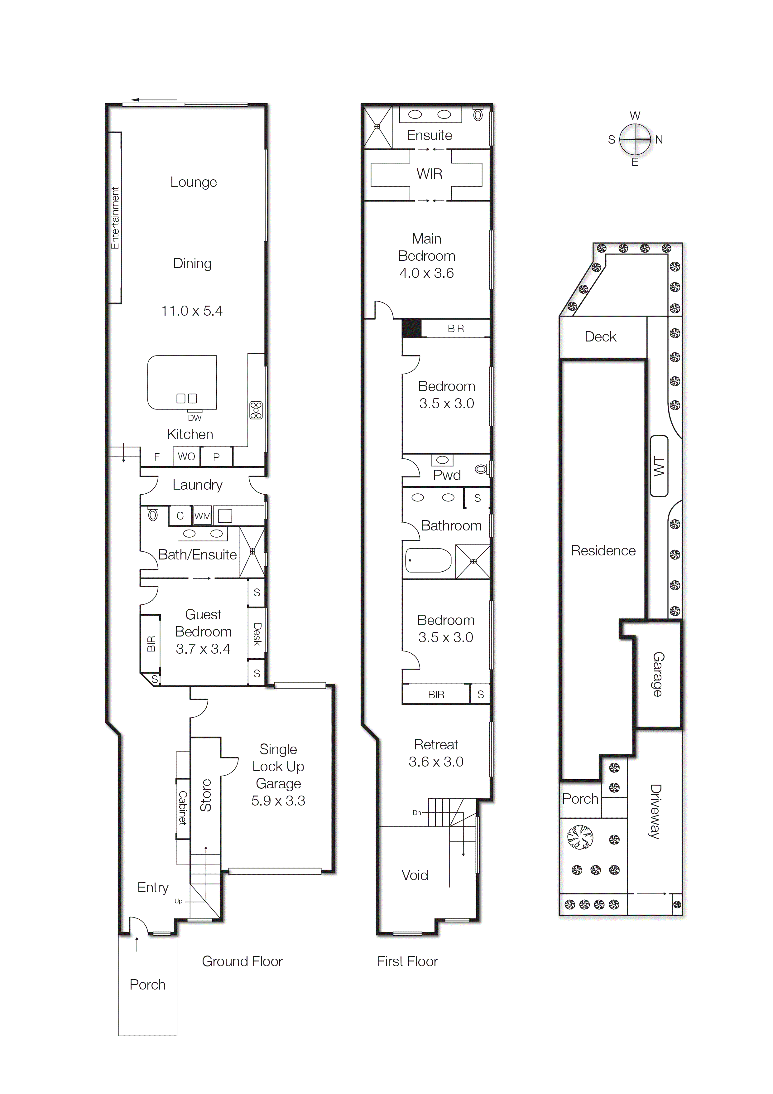
Dedicated to luxury and practicality across a carefully considered two-level floorplan, every room and outdoor space of the home is finished to exacting standards, with all the elements for easy living right here.
Impeccably presented dimensions are augmented by the inspired use of the finest materials including beautiful stone finishes, the extensive use of timber and glass throughout, bespoke joinery and cabinetry, and designer lighting.
Behind auto gates and leafy, low maintenance gardens, the glass front door opens to reveal a glorious light filled entrance hall enhanced by a soaring double height ceiling. Engineered oak floors flow through the ground level past a spacious bedroom with fitted desk, extensive robes, and luxe fully tiled semi ensuite with dual vanities.
At the rear brimming with natural light, the expansive living and dining domain seamlessly transitions through glass sliding doors to a sun drenched al fresco entertainment deck set in private northwest-facing environs.
Back inside, the kitchen is both a place of beauty and a culinary powerhouse. Sublime stone finishes combine with a suite of Smeg appliances including a 5-burner gas cooktop, 900mm oven, rangehood, and dishwasher, while extensive storage and a statement breakfast island add to the kitchens undeniable appeal.
Timber stairs ascend to the spacious first floor, where all rooms are awash in northern light. The master bedroom suite features a sumptuous twin-vanity ensuite and a fabulous dressing room with generous amounts of storage and an in-built make-up table, while two additional bedrooms, each with built-in robes, share a luxurious twin-vanity bathroom with deep soaker tub and separate shower. Completing this level, a stylish retreat provides extra space, entirely in tune with modern family demands.
Complemented by video intercom, plush carpets, sleek powder room, storage rich laundry with outdoor access, zoned reverse cycle heating and air conditioning, abundant storage, auto garage with rear and internal access, and secure off street parking.
In a highly desirable family lifestyle pocket, within the Beaumaris Secondary College zone, this exquisite contemporary showpiece is just moments from bus services, Black Rock Village shops, cafes, restaurants, bars, and boutiques, the beach, Black Rock Primary School, and Royal Melbourne Golf Club.
For more information about this sophisticated family sanctuary contact Romana Altman or Louise Herterich at Buxton Sandringham.‬
