State-of-the-art luxury abounds in this flawlessly renovated home where the immaculate exterior is only a tiny glimpse of what is to come. As a builder and designers own, this is a true labour of...
State-of-the-art luxury abounds in this flawlessly renovated home where the immaculate exterior is only a tiny glimpse of what is to come.
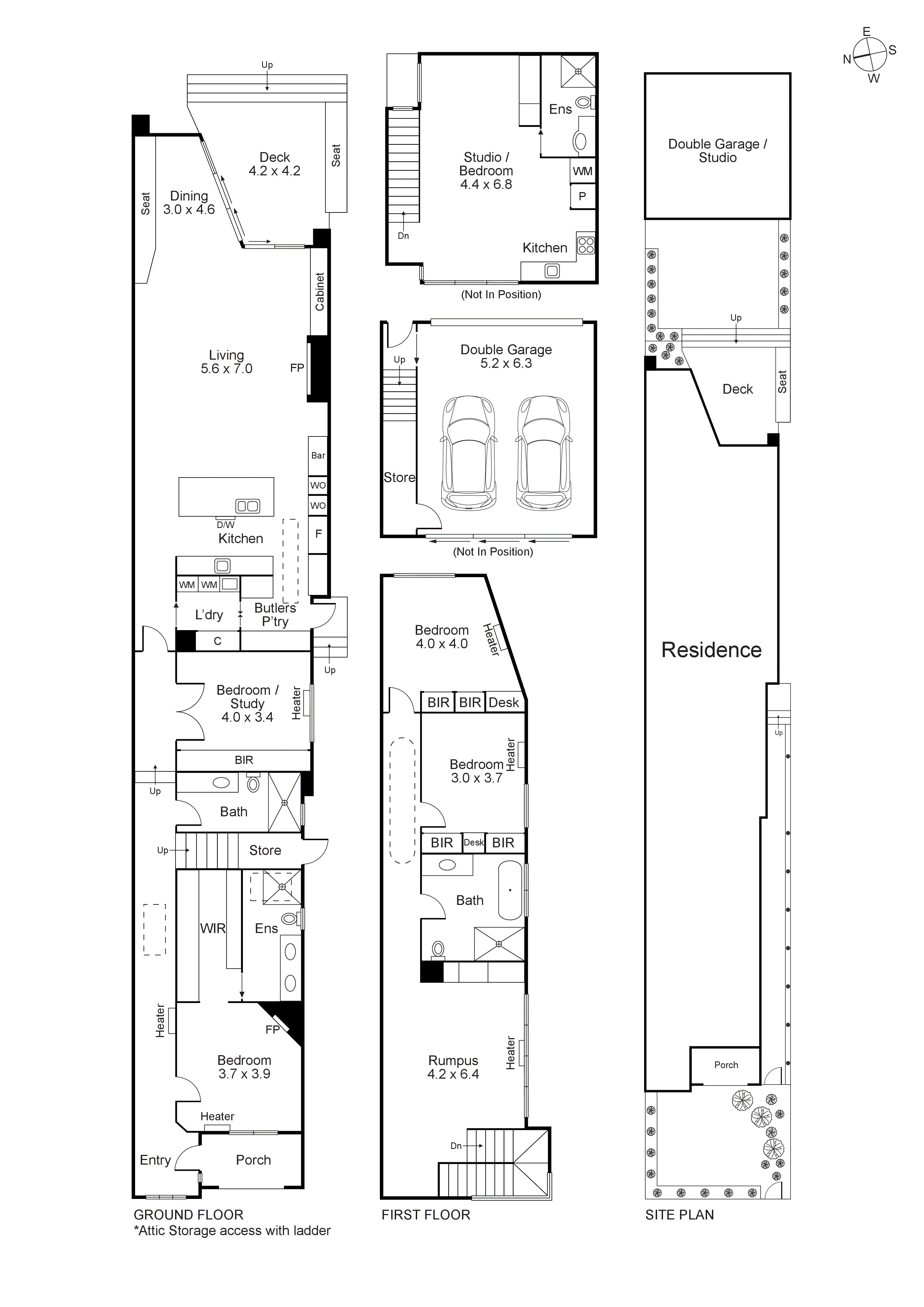
As a builder and designers own, this is a true labour of love. The meticulous transformation is a perfect synergy of sheer luxury, exemplary amenities and an attention to detail found only in the finest of homes.
Open plan living with an edge of architectural flair features a well-designed culinary kitchen with black Fisher & Paykel appliances, integrated dishwasher drawers and fridge, sleek stone benches, a fitted study nook, butler’s pantry & hand-crafted restaurant-style bar.
Gloriously illuminated lounge & dining spaces are enhanced by a bespoke built-in banquette under a Blackbutt timber ceiling, all warmed by a Cheminees Philippe fireplace.
Continuing the seamless entertaining, a secluded garden with mod grass frames a generous deck with feature lighting - continuing with a sublime fully fitted studio apartment with its own style set above the garage, with rear lane access.
The main bedroom domain is breathtaking with a Shugg window opening to a banquet seat overlooking the manicured front garden, an LED lit ergonomic walk-in wardrobe and a sublime ensuite. An industrial style bedroom/home office with built-in wardrobes dotted with leather handles concludes with a picture-perfect family bathroom.
Invisible from the street, the upstairs kids’ wing begins with an open plan living area, two unique fitted bedrooms and another luxe bathroom with a bath.
Some outstanding comforts include WIFI controlled zoned Daikon heating/air-conditioning, green terrazzo, ceiling speakers by Sonos, hydronic heating throughout and more in an area that speaks for itself.
Take a stroll to the local shops in Elwood village, in the Elwood primary and secondary zones, near the beach, parks, reserves and a plethora of family friendly amenities.
ALL ENQUIRIES MUST INCLUDE A CONTACT NUMBER. For more information, contact Chris Hassall at Buxton Bentleigh on 0412 898 990 or the Buxton Office on 9563 9933. ‘We have obtained all information in this document from sources we believe to be reliable; however, we cannot guarantee its accuracy. Prospective purchasers are advised to carry out their own investigation.’
