Set atop Bentleigh’s highest hill, grand hotel like proportions and an exceptionally well-zoned floorplan for the biggest of families make this extensive residence an entertainer’s dream. With a...
Set atop Bentleigh’s highest hill, grand hotel like proportions and an exceptionally well-zoned floorplan for the biggest of families make this extensive residence an entertainer’s dream.
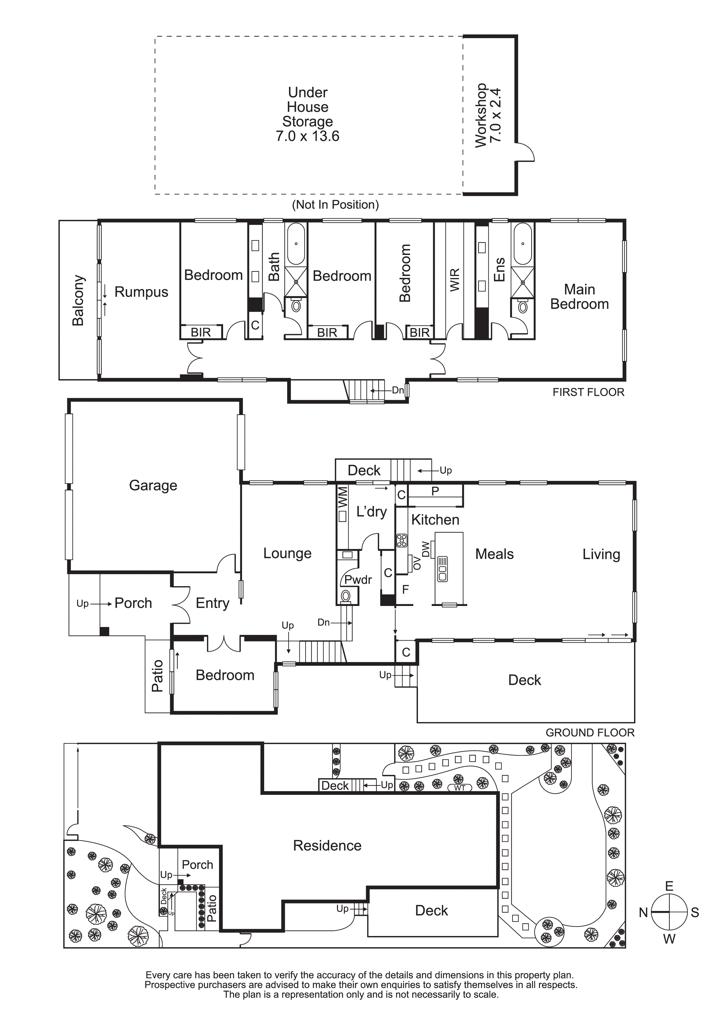
With a room for everyone to escape, illuminated spaces framed by views from every window begins in the wide entrance setting the tone for the truly resort style living within.
A voluminous and seamless open plan living domain is complemented by an extensive chef’s kitchen with a suite of stainless-steel AEG appliances, thick granite benchtops with a breakfast bar and a bespoke butler’s pantry.
The piece de résistance is three stacker sliding doors revealing a huge and very private entertainers’ deck rivalling those of great restaurants.
Furthering the retreat feel, a separate open plan living room is a sophisticated space for adults enhancing the flexible floorplan.
The upstairs environment will delight with a primary suite that is something to behold a walk-in wardrobe and superb double ensuite and enough room to include a lounge retreat.
Three bedrooms fitted with built-in wardrobes and a sumptuous family bathroom with a bath concludes with a naturally lit rumpus/games room extending to a sunny north facing balcony.
The list of amenities is simply endless - big enough for a family of sporting enthusiasts or a builder with equipment, under-house storage spans almost the whole house, add a fifth bedroom/home office, fans, 8 individually zoned heating/cooling, huge laundry, powder room, alarm, and an enormous garage with enough room for two of today’s big vehicles plus storage and access beyond to a separate trailer/boat area. To add to the peace and tranquility of the home, it is all securely fenced with the bonus of an electric front gate.
This home has been set up for lock up and leave as you head off on travels with irrigation and simple garden maintenance at the forefront of the design.
Illustrating the effortless ease with which this home meets every modern need, you’re in the Tucker Road Primary school and Bentleigh Secondary school zones, a short walk to OLSH and St.Pauls Primary, Bentleigh Reserve and the ever-impressive Centre Road shopping villages with incredible restaurants, cafes, boutique stores and transport.
ALL ENQUIRIES MUST INCLUDE A CONTACT NUMBER. For more information, contact Chris Hassall at Buxton Bentleigh on 0412 898 990 or the Buxton Office on 9563 9933. ‘We have obtained all information in this document from sources we believe to be reliable; however, we cannot guarantee its accuracy. Prospective purchasers are advised to carry out their own investigation.’
