Head South for a spectacularly wide frontage, high-impact potential, solid family home & north sun where it's needed most. Build on the spectacular presence afforded by the approx 27.43m frontage of this approx 669sqm site, & capitalise on the wide appeal of this enviable address between Brighton Golf Course & it’s prestigious schools.
Offered...
Head South for a spectacularly wide frontage, high-impact potential, solid family home & north sun where it's needed most. Build on the spectacular presence afforded by the approx 27.43m frontage of this approx 669sqm site, & capitalise on the wide appeal of this enviable address between Brighton Golf Course & it’s prestigious schools.
Offered with a spotless solid brick home for today, concept plans to inspire tomorrow & a northerly orientation to reward for a lifetime, this imposing property is ready to impress with room for two substantial street front homes (Subject to Council Approval) or space for a landmark family dream home... & a location to reward with lifestyle & resale value.
Bordering a prized Course-side precinct of luxury residences & grand family estates, this promising property has some of Brighton East’s best homes as neighbours... & some of Melbourne’s best schools, parklands & retail strips in reach. Just three blocks to Haileybury & St. Leonard’s Colleges, a walk to Hampton St’s Brighton-end shopping village & accessible to the central Brighton Grammars, this blue-chip property is located to meet the market with a choice of stations within minutes, famous Dendy St beach within a jog & Church St shopping in reach.
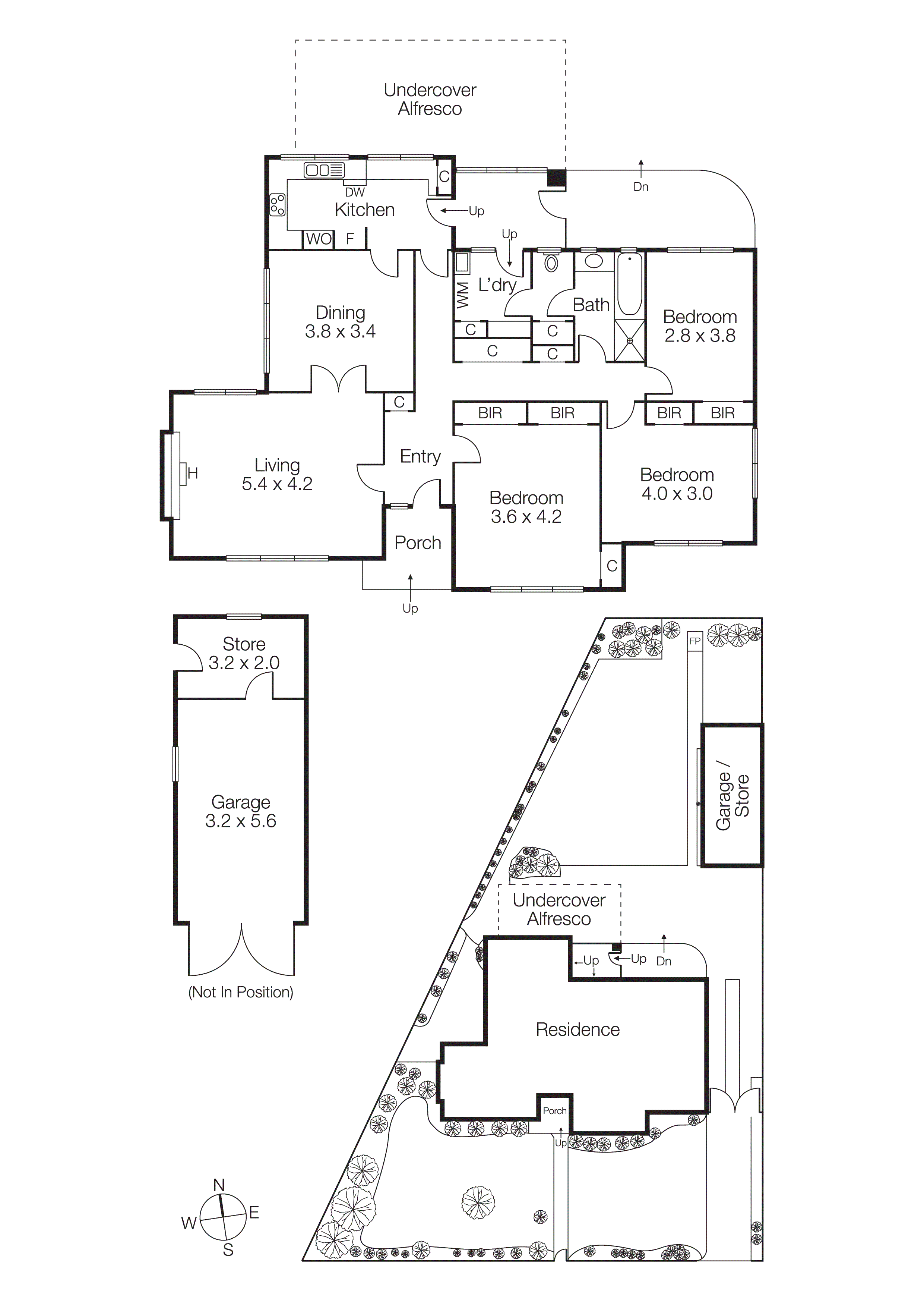
But don’t be too quick to reach for the wrecking ball. With immaculate presentation, lovely late-period detail & modern comforts, the existing three bedroom home represents a brilliantly liveable or rentable option. Centrally heated with separate lounge & dining rooms flowing to a modern kitchen with a dishwasher, this comfortable home provides good-sized bedrooms around a pristine bathroom, a stone-paved patio, & a handy garage until it’s time to maximise the wide appeal & step into the sun! For more information about this well-positioned property contact Scott Hamilton