Bordering the magnificent fairways of Brighton Golf Course in a sun-catching position, this charming period home on 697 sqm(approx.) of prime land awaits your vision. Brimming with promise and possibilities, it presents the appealing option to either renovate, start anew or develop (STCA). With its close proximity to St Leonard’s, Haileybury, Dendy...
Bordering the magnificent fairways of Brighton Golf Course in a sun-catching position, this charming period home on 697 sqm(approx.) of prime land awaits your vision. Brimming with promise and possibilities, it presents the appealing option to either renovate, start anew or develop (STCA). With its close proximity to St Leonard’s, Haileybury, Dendy Park, and Hampton Street, this increasingly rare opportunity is one of the areas most exciting.
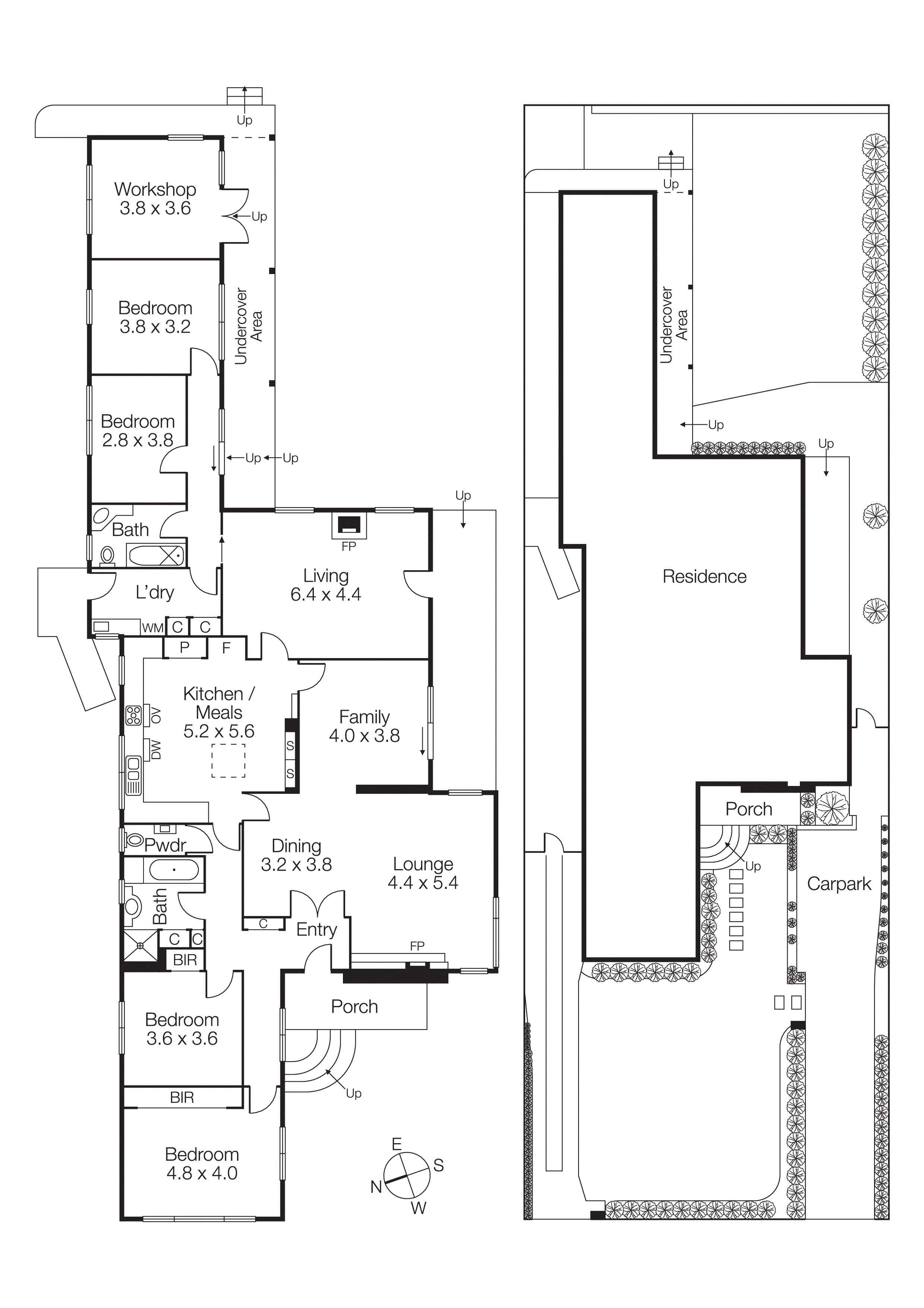
Proudly occupying a superbly elevated site, the existing four-bedroom, two-bathroom, clinker-brick residence offers charm and character to cherish. Its elegant facade with curved details, twin driveways, and generous period proportions give a hint of the property’s untold potential. Infuse contemporary style into vast formal and casual living zones, and a sunny main bedroom, then replace the rear with a stunning indoor-outdoor extension and swimming pool showcasing verdant course vistas.
Or begin again and build a luxury new home for the family or a pair of designer townhouses capitalising on an impressive parcel of prized land with a north-easterly rear, endless views, and exclusive course access (STCA). Occupy or rent while making plans and enjoy classic comforts such as a fire-warmed formal lounge, huge kitchen with meals, ducted heating, and ample parking. Ace outstanding renovation and redevelopment options with a lifetime of rewards in a highly sought Brighton East pocket between the course and the bay.
For more information about this course-side charmer with untold potential please contact Halli Moore at Buxton Brighton on 0403 777 661.