In one of Elwood’s most prized blue-chip locations between the Bay and Ormond Road Village, this ground-floor apartment’s beautifully generous proportions provide young families, single-level downsizers, lifestyle buyers and investors with a remarkable opportunity. Stylishly renovated throughout with the independence of its own street frontage and...
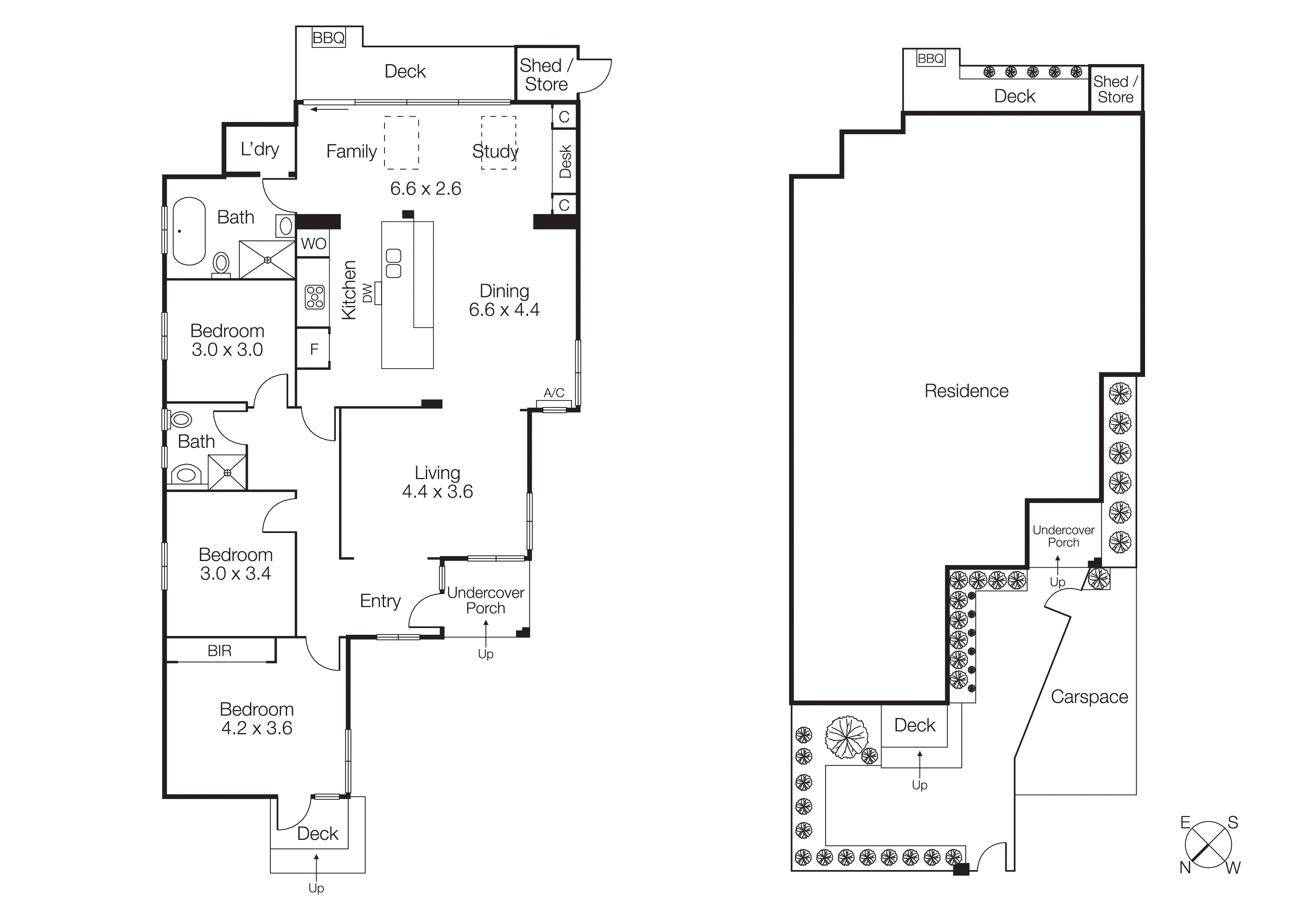
In one of Elwood’s most prized blue-chip locations between the Bay and Ormond Road Village, this ground-floor apartment’s beautifully generous proportions provide young families, single-level downsizers, lifestyle buyers and investors with a remarkable opportunity. Stylishly renovated throughout with the independence of its own street frontage and private security entry, its three-bedroom, two-bathroom accommodation provides a fabulous lock up and leave alternative to a traditional family home. Positioned behind its high fenced street entry, appealing period character remains in soaring 9ft ceilings, hardwood timber floors and the expansive casement windows that deliver abundant natural light and rich individuality. Remarkable flexibility is provided by no less than three living domains and both front and rear courtyards that offer exceptional living and entertaining options catered to by an impressive contemporary kitchen featuring oversized Smeg upright cooker, extensive storage and a broad central island/servery. Three bright bedrooms, the main with BIRs and front courtyard access, are served by two fully renovated bathrooms including one with claw foot bath, and a dedicated laundry. Further highlights include open home office, split heating/cooling, polished concrete floors, shed storage and secure OSP. Enjoy the beach and foreshore reserves at one end of Foam Street and the shops, dining and bars of Elwood Village at the other with an easy walk to Elwood Primary and College, Elsternwick Park, CBD trams and buses to Brighton private schools. Minutes to Glen Huntly Road shopping, dining and Classic Cinema and both Bay and Church Streets Brighton. An exceptional opportunity indeed.