An urban oasis with a courtyard garden Redefining the McKinnon skyline and ensuring its future as a cultural hub, 207b offers a refined urban setting in a sophisticated 21st century environment,...
Sharing Listing
B 2 b 1 C 1
Buxton Bentleigh
Level 1, 269 Centre Road,
BENTLEIGH VIC
3204
An urban oasis with a courtyard garden Redefining the McKinnon skyline and ensuring its future as a cultural hub, 207b offers a refined urban setting in a sophisticated 21st century environment,...
An urban oasis with a courtyard garden
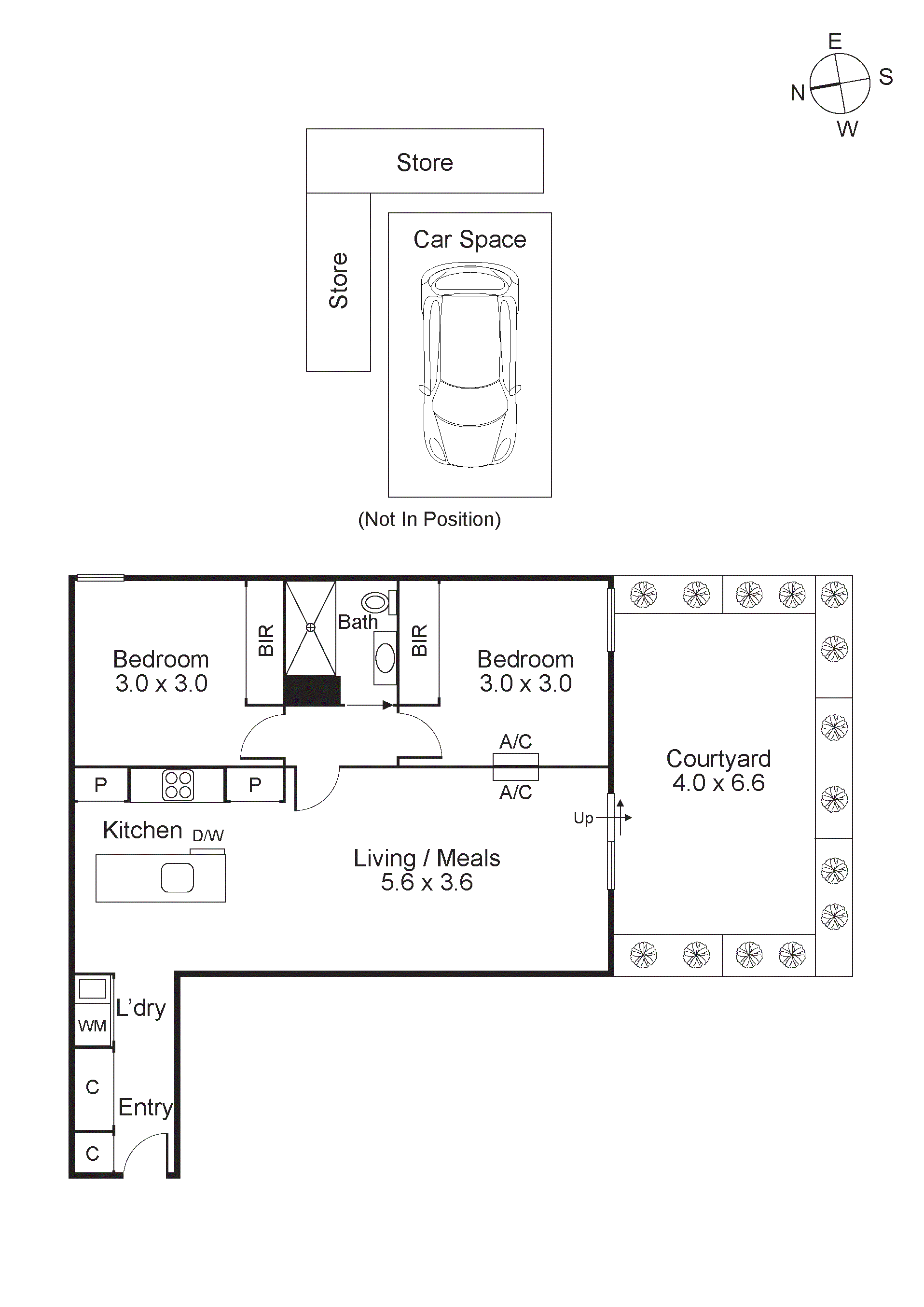
Redefining the McKinnon skyline and ensuring its future as a cultural hub, 207b offers a refined urban setting in a sophisticated 21st century environment, and apartment 1 further delivers a commitment to enduring style and quality only associated with high-end construction. A hotel-style entry offers a glimpse of the spectacular interior enhanced by brilliantly lit open plan living and dining, opening to reveal a courtyard garden with room enough for great entertaining or simply lounging in the sun. Serving with ease, the kitchen is complemented by stone benches, sleek stainless-steel Smeg appliances, plenty of cabinetry and up-to-the-minute style. A choice of two double bedrooms fitted with built-in wardrobes - one with a courtyard garden outlook for peaceful reflection, concludes with crisp spa like bathroom with a stone topped vanity and a luxe walk-in rain shower. Ingenious amenities include Euro laundry and storage cupboards, double glazed windows, a secure undercover car space, two storage cages, Daiken reverse cycle heating and cooling, security/video intercom with a difference, and double security gates on entry in a most central location with Mckinnon road shops, eateries and train station in one direction, the coveted Mckinnon secondary college and Valkstone primary the other, the nearby Tucker road shopping strip, and a short drive to GESAC and the best of everything Centre road.
ALL ENQUIRIES MUST INCLUDE A CONTACT NUMBER. For more information, contact Charles Xu at Buxton Bentleigh on 0404 482 332 or the Buxton Office on 9563 9933. ‘We have obtained all information in this document from sources we believe to be reliable; however, we cannot guarantee its accuracy. Prospective purchasers are advised to carry out their own investigation.’
An urban oasis with a courtyard garden
Redefining the McKinnon skyline and ensuring its future as a cultural hub, 207b offers a refined urban setting in a sophisticated 21st century environment, and apartment 1 further delivers a commitment to enduring style and quality only associated with high-end construction. A hotel-style entry offers a...
An urban oasis with a courtyard garden
Redefining the McKinnon skyline and ensuring its future as a cultural hub, 207b offers a refined urban setting in a sophisticated 21st century environment, and apartment 1 further delivers a commitment to enduring style and quality only associated with high-end construction. A hotel-style entry offers a glimpse of the spectacular interior enhanced by brilliantly lit open plan living and dining, opening to reveal a courtyard garden with room enough for great entertaining or simply lounging in the sun. Serving with ease, the kitchen is complemented by stone benches, sleek stainless-steel Smeg appliances, plenty of cabinetry and up-to-the-minute style. A choice of two double bedrooms fitted with built-in wardrobes - one with a courtyard garden outlook for peaceful reflection, concludes with crisp spa like bathroom with a stone topped vanity and a luxe walk-in rain shower. Ingenious amenities include Euro laundry and storage cupboards, double glazed windows, a secure undercover car space, two storage cages, Daiken reverse cycle heating and cooling, security/video intercom with a difference, and double security gates on entry in a most central location with Mckinnon road shops, eateries and train station in one direction, the coveted Mckinnon secondary college and Valkstone primary the other, the nearby Tucker road shopping strip, and a short drive to GESAC and the best of everything Centre road.
ALL ENQUIRIES MUST INCLUDE A CONTACT NUMBER. For more information, contact Charles Xu at Buxton Bentleigh on 0404 482 332 or the Buxton Office on 9563 9933. ‘We have obtained all information in this document from sources we believe to be reliable; however, we cannot guarantee its accuracy. Prospective purchasers are advised to carry out their own investigation.’
Buxton Bentleigh
Level 1, 269 Centre Road,
BENTLEIGH VIC
3204
We'll give you a clear, honest assessment based on real market insights, so you can make informed decisions with confidence.
Local knowledge. Proven results. Trusted advice.
