Inspection by Appointment Nestled against the lush backdrop of Landcox Park, this contemporary town residence offers a low-maintenance lifestyle with irresistible family appeal. Spanning two...
Inspection by Appointment
Nestled against the lush backdrop of Landcox Park, this contemporary town residence offers a low-maintenance lifestyle with irresistible family appeal. Spanning two generous levels, the home’s open-plan design effortlessly extends to the park’s rolling lawns, ornamental lake, and playground, transforming the park into your own expansive backyard.
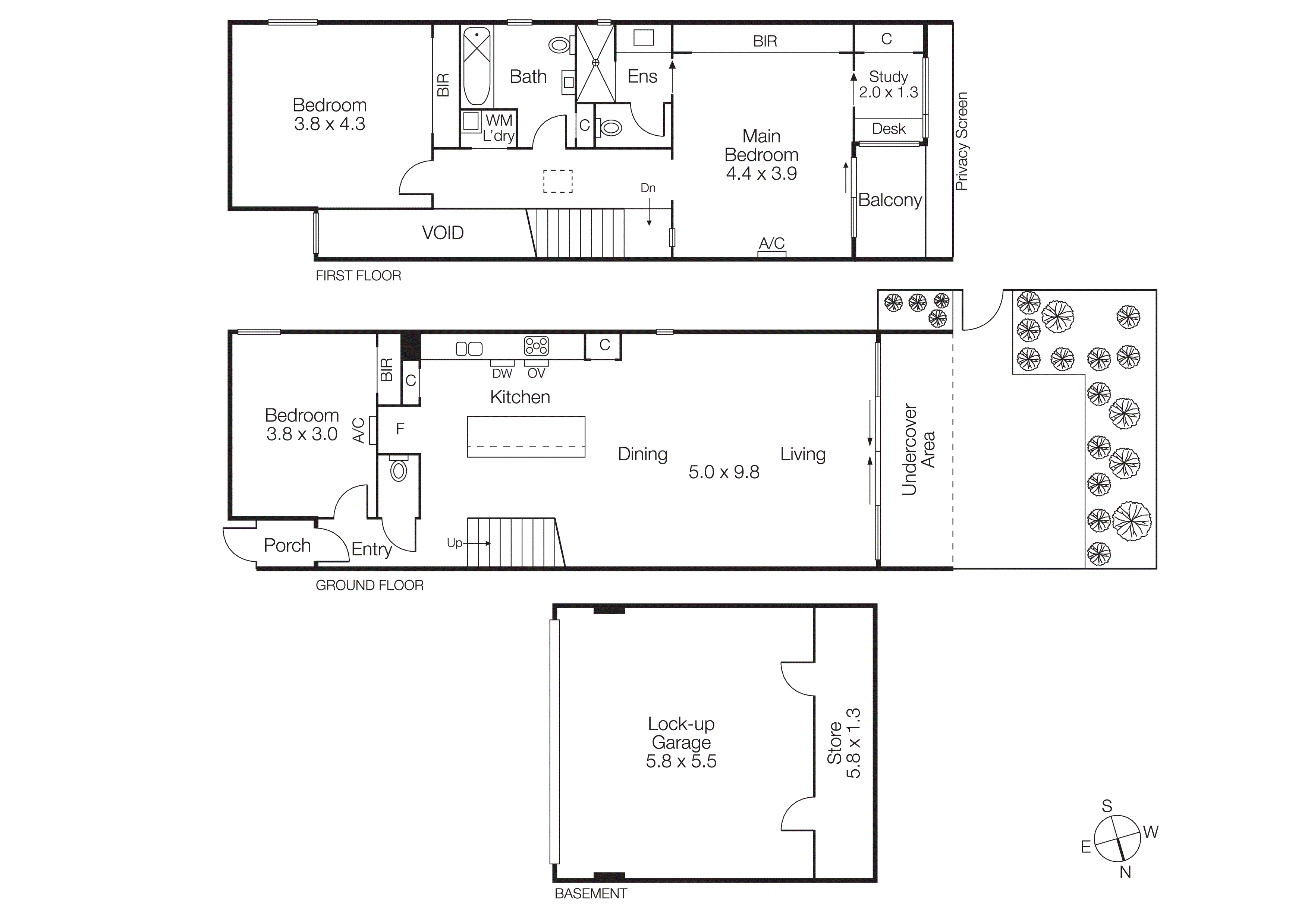
Set in a prime rear corner of the tranquil Landcox Park Residences, this property makes a lasting impression. Every space is thoughtfully designed, offering leafy vistas from every angle. With three oversized bedrooms, two bathrooms, and a parkview study nook, this home is ideal for families or those seeking a downsized, secure retreat with minimal upkeep yet maximum impact.
Timber flooring flows throughout the ground floor, showcasing an ultra-spacious living and entertaining zone. The kitchen is a culinary centerpiece, featuring a stone waterfall island for casual dining, premium Miele appliances for seamless cooking, and soft-touch cabinetry that merges style with function. Glass sliders open to an al fresco courtyard, framed by greenery with direct gate access to the park…one of only a select few residences offering this exclusive connection.
The versatile floor plan includes a ground-floor bedroom with built-in robes and a powder room, ideal for flexible living arrangements. Ascending the striking floating staircase, you'll find two additional bedrooms and a fully-tiled family bathroom. The expansive main suite is a serene haven, offering breathtaking park views, extensive built-in storage, a luxe en suite, and a tree-top study nook.
With individually controlled reverse cycle air conditioning in every room, a European laundry, an alarm system, basement parking for two cars with both lift and stair access, and your own private security entry, the home provides convenience and peace of mind. Perfectly positioned near parkside cafes, Gardenvale Primary School, Bay Street, the beach, and well-connected transport links, this residence offers a lifestyle designed for modern living.
For more information about this premium parkside town residence please contact Halli Moore at Buxton Brighton on 0403 777 661.
