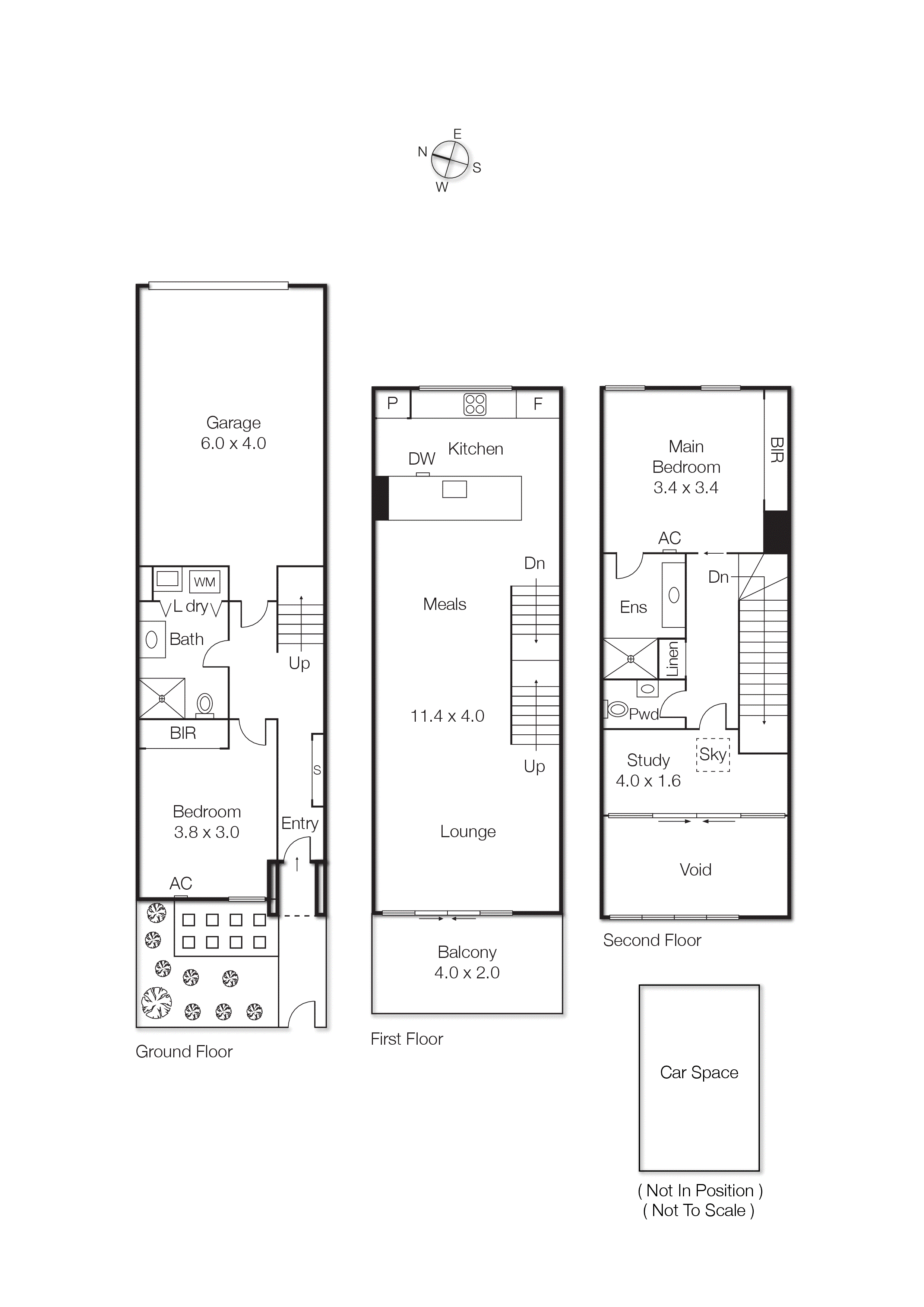
Welcome to 65 Central Park Walk, Cheltenham—a stunning three-storey townhouse that perfectly blends modern living with a touch of tranquillity. This beautifully designed home features 2 bedrooms along with a versatile enclosed office, making it an ideal retreat for both comfort and convenience. The spacious master suite includes a private ensuite...
Welcome to 65 Central Park Walk, Cheltenham—a stunning three-storey townhouse that perfectly blends modern living with a touch of tranquillity. This beautifully designed home features 2 bedrooms along with a versatile enclosed office, making it an ideal retreat for both comfort and convenience. The spacious master suite includes a private ensuite bathroom, providing both style and functionality, whilst the fully enclosed office space is perfect for remote work or a cozy study nook.
With 2 bathrooms, there's ample space for everyone, and parking is a breeze with both a garage, and an additional car space on title. Enjoy year-round comfort with both ducted and split system heating & cooling that ensures the perfect climate throughout the seasons. The gourmet kitchen is equipped with Bosch appliances, perfect for culinary enthusiasts, and the open-plan living area flows seamlessly to your private terrace. Here, you can relax whilst overlooking lush green parkland, ideal for soaking up the evening sun or entertaining friends and family.
Experience exceptional storage solutions, and a stylish design that elevates everyday living. Located just minutes from parks, quality schools, and the bustling Southland shopping centre; this home offers easy access to everything you need. Don’t miss out on this fantastic opportunity to secure a lovely home in a sought-after location!
For more information, please contact Jasmine Younger or Kylie Charlton at Buxton Sandringham.