Extra large Family home on a House sized block
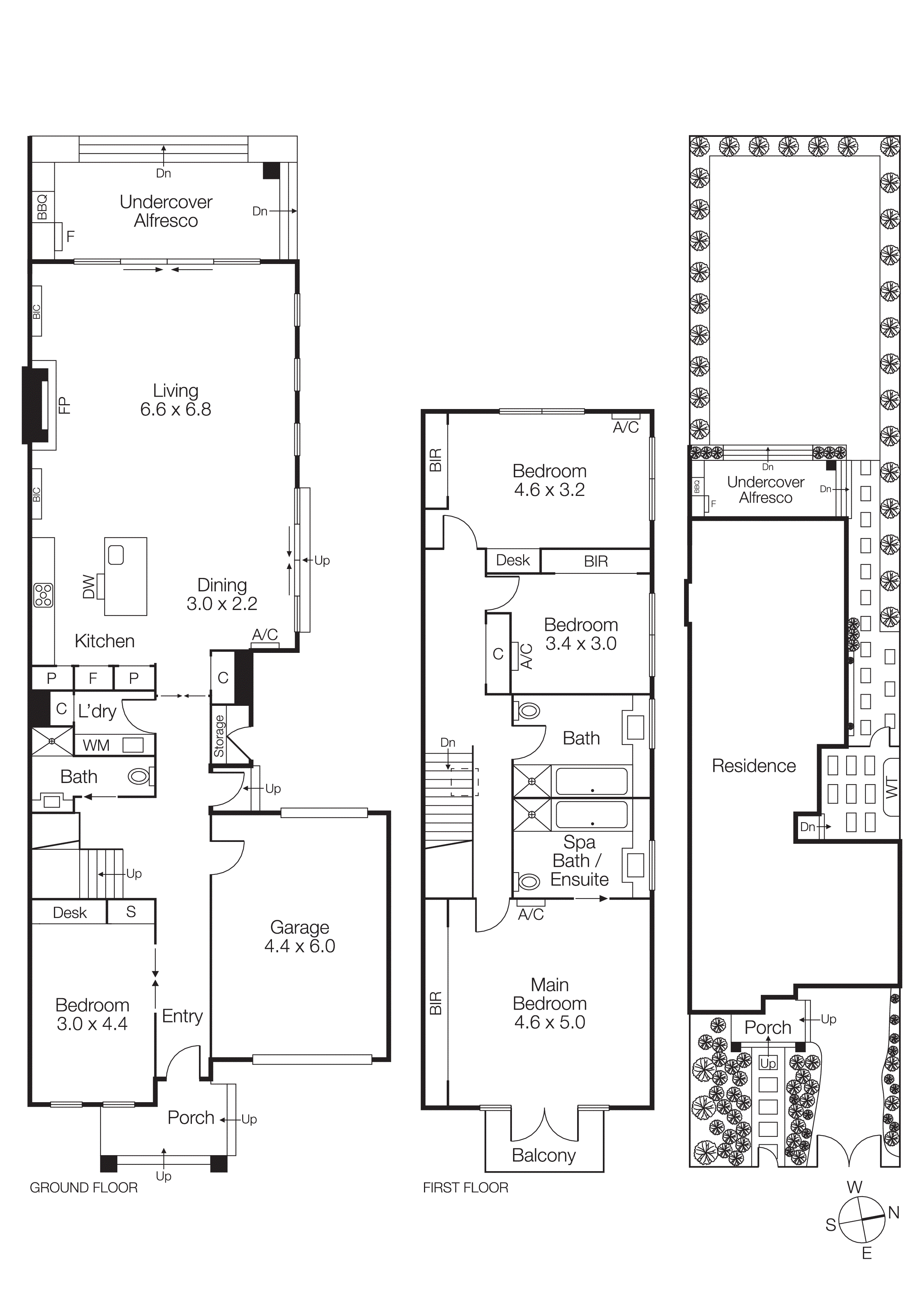
Upscale your expectations with family-size prestige living in this family-wise location! At home on the edge of East Brighton amongst schools, parks and cafe society, this 4-bed, 3-bath residence offers low-maintenance living on a grand scale with a balconied master-suite in its own quiet zone, a...
Extra large Family home on a House sized block
Upscale your expectations with family-size prestige living in this family-wise location! At home on the edge of East Brighton amongst schools, parks and cafe society, this 4-bed, 3-bath residence offers low-maintenance living on a grand scale with a balconied master-suite in its own quiet zone, a flexible fan-cooled ground-floor bedroom with its own full bathroom... and free-flowing living-dining opening out in two directions including to an all-weather terrace with an al fresco BBQ kitchen!
High on quality with a sleek new Smeg appliance kitchen and bespoke-fitted bathrooms including a sizeable spa-ensuite, this grand design is big on extras; from bedroom-workstations to enhance work-life balance, to an abundance of storage including big built-in robes, to an inviting open-fireplace for the living zone.
Styled with sleek stone benchtops (waterfall-edge for kitchen), authentic solid hardwood floors and airy plantation-shutters, this reverse-cycle air-conditioned and alarmed home has great outdoors too – with two car spaces including an auto-garage, a lawned backyard wrapped in Little Gem magnolias, and generous approx 429sqm grounds!
Almost on the border of Brighton East just a few blocks to the South Rd Colleges (Haileybury and St Leonard’s), this prestige home promises to scaled-up lifestyle too. Just around the corner from Sillitoe Reserve’s sports ground and dog park, and a minute to Hampton St., there’s Brighton Golf Course within a chip, and Bayside’s most swimmable beaches within a splash!
For more information about this upscale residence contact Peter Hickey at Buxton Sandringham.