Inspection by appointment over Easter
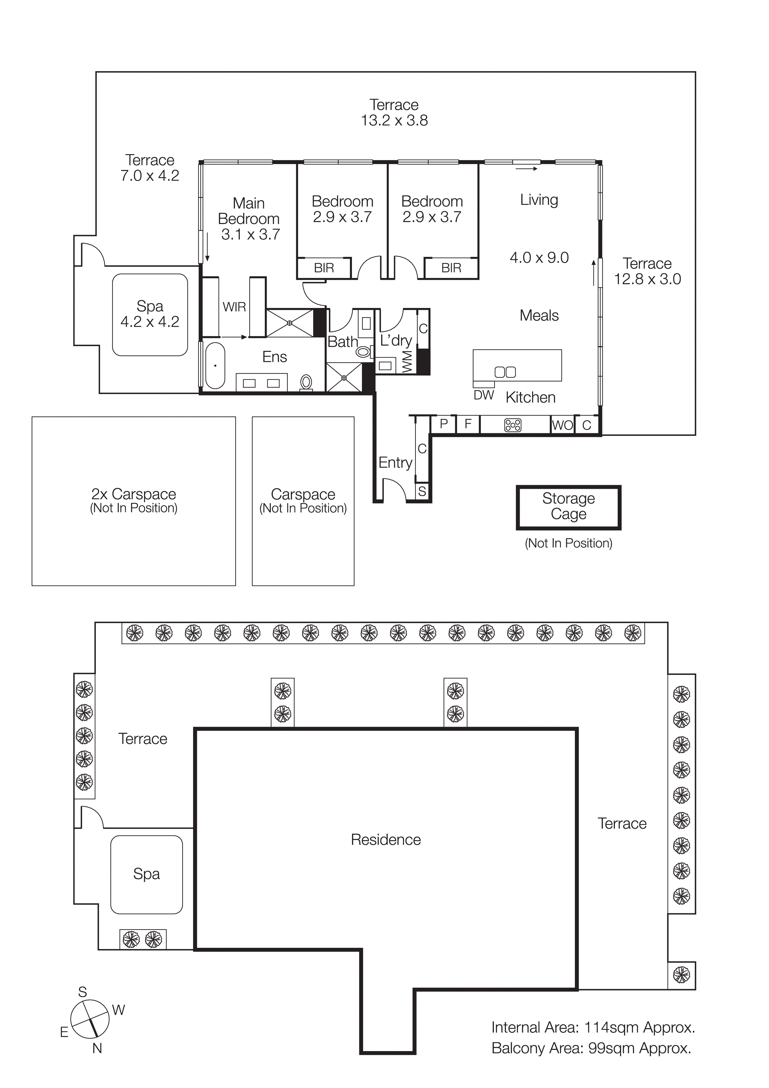
Secure unique penthouse privacy at this iconic beachside address. A once-in-a-lifetime opportunity to secure the full-width rear penthouse of the rarely-offered Piper Residences, this three-bedroom, two-bathroom home offers a total floor space of 114sqm (approx.) with expansive living-dining stretched out in...
Inspection by appointment over Easter
Secure unique penthouse privacy at this iconic beachside address. A once-in-a-lifetime opportunity to secure the full-width rear penthouse of the rarely-offered Piper Residences, this three-bedroom, two-bathroom home offers a total floor space of 114sqm (approx.) with expansive living-dining stretched out in afternoon sun, a quiet bedroom wing extending to a window-walled master-suite, and massive planter-enclosed sky garden terraces (approx. 99sqm) wrapping three sides to include a glass-fenced spa
Conceived by awarding-winning Fender Katsalidis Architects with their signature sophisticated style, this premier penthouse features a cutting-edge kitchen (starring elite Gaggenau appliances and Bosch integrated fridge), 5 Star, fully-tiled, in-floor heated bathrooms (one a tall-windowed dual-vanity ensuite with freestanding bath) and cool coastal detail including light oak floors, natural marble and composite-stone benchtops, and custom-cabinetry including built-in and walk-in robes.
High-tech by appointment with zoned climate-control enhanced by automated blinds (inside) and awnings (outside) on commercial double-glazing, this unparalleled penthouse residence is ready to lock, leave and live a life of travel with the security of video-intercom entry, security-lift access, and generous three-car garaging plus storage.
A remarkable rear penthouse in this rarely offered group, this once-in-a-lifetime opportunity comes with a lifetime location at the gateway to Hampton Street’s retail, rail, and restaurant strip, just 350m to the beachfront, and a short walk to the Sandringham Yacht Club and Village and easy train ride or beachfront drive to the CBD. With the ability to purchase furnished as inspected!
For more information about this uniquely peaceful penthouse contact Peter Hickey or James Colyvan at Buxton Sandringham.