A flawless family sanctuary in the coveted Dendy Park precinct, this exceptional home is set within a sun-drenched pool and garden oasis. Elevated for picturesque street appeal, it enjoys a tranquil...
A flawless family sanctuary in the coveted Dendy Park precinct, this exceptional home is set within a sun-drenched pool and garden oasis. Elevated for picturesque street appeal, it enjoys a tranquil court position, just moments from the park’s open green spaces, sports fields, and playgrounds, as well as leading schools, the golf course, and the beach.
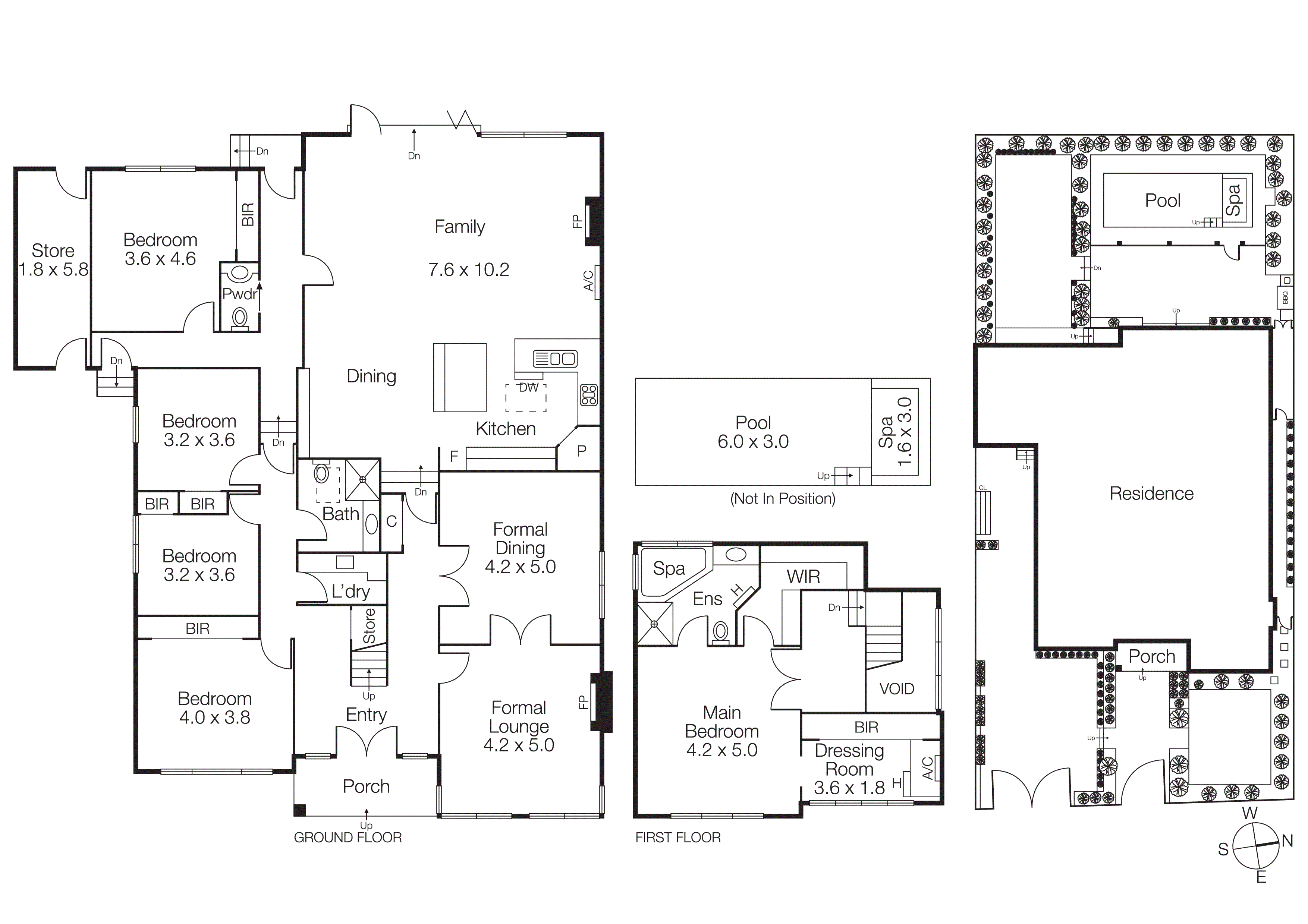
Blending timeless 1950s elegance with impeccable Hamptons style, the substantial five-bedroom layout is superbly zoned for modern family living. Expansive formal lounge and dining rooms frame lush garden vistas, creating a stunning retreat, while the light-filled family domain seamlessly connects to a private poolside haven.
Designed for year-round entertaining, family living is warmed by a gas fireplace for a cozy winter ambience, while the heated pool and spa promise endless summer enjoyment. The gleaming granite kitchen is fully appointed with a central island, 900mm Ilve oven, and extensive cabinetry, including a walk-in pantry. Outdoors, a built-in BBQ kitchen provides the perfect setting for al fresco occasions, while a stylish automatic striped awning extends to shade a picturesque dining area.
Upstairs, a luxurious parents' retreat is a true highlight. The generous main bedroom is complemented by a spa ensuite, a walk-in robe, and a private dressing room. This lavish space is designed for indulgence, complete with a marble dressing table and LED lit robes, it’s an exquisite haven for curating a wardrobe in style. The ground-floor accommodation wing offers family flexibility with four robed bedrooms, a marble bathroom and powder room, and a separate entry ideal for adult children or guests.
Meticulously presented, the home showcases plush new carpet, hardwood flooring, and new window furnishings, including Plantation Shutters, sheers, and automatic blinds (in the family room). Comfort is assured with ducted heating, split systems, and solar/gas pool heating, while advanced security, a lockable storeroom, and auto-gated parking add convenience.
With nothing left to do, this beautiful home is ready for immediate enjoyment in a prized lifestyle pocket just steps from Dendy Park. This peaceful yet central location is moments from Hampton Street, Patterson Road, and Church Street, offering easy access to transport, shopping, dining, premier schools, and the bay.
For more information about this tranquil family oasis please contact Leanne Potter at Buxton Brighton on 0414 344 144.
