Nestled in one of Yarraville’s most cherished streets, this beautifully maintained two-bedroom, one-bathroom Edwardian home offers a rare blend of period charm, modern updates, and an unbeatable...
Nestled in one of Yarraville’s most cherished streets, this beautifully maintained two-bedroom, one-bathroom Edwardian home offers a rare blend of period charm, modern updates, and an unbeatable lifestyle. Surrounded by tree-lined streets filled with character-rich homes, this is a tightly held pocket loved by families, young couples, and long-time locals alike. Positioned perfectly between Yarraville and Seddon villages, the home provides easy access to a vibrant community, where every convenience, café, and green space is just a short stroll away.
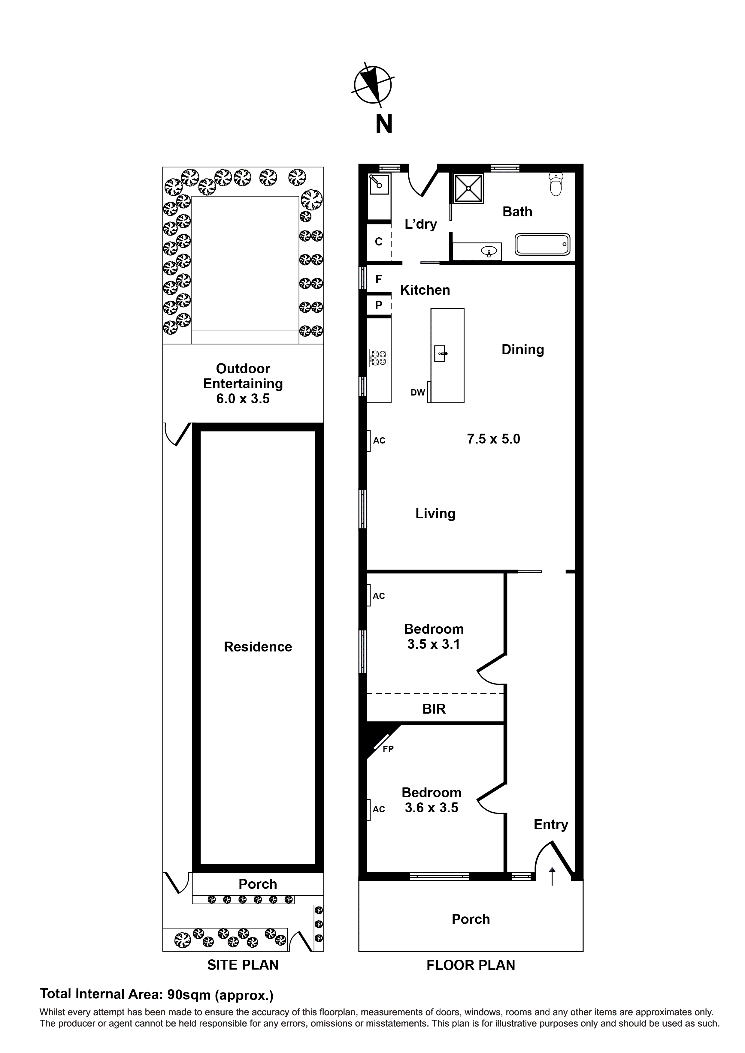
Stepping inside, you are immediately welcomed by the warmth of original Baltic pine floors and high ceilings. The two spacious bedrooms, one with built-in robes, offer peaceful retreats, with one enhanced by the added charm of a non-functional fireplace. The central living area, complete with an inviting open fireplace, creates a cosy atmosphere for relaxed nights in. At the heart of the home, the open-plan kitchen, dining, and living area is bathed in natural light, offering a seamless space for entertaining and everyday living. The modern kitchen has been thoughtfully updated with sleek white cabinetry, stone benchtops, and premium Bosch appliances, including an electric oven, gas cooktop, dishwasher, and rangehood, ensuring effortless meal preparation. Comfort is assured year-round with split-system heating and cooling, while the instantaneous hot water service adds modern efficiency.
The beautifully appointed bathroom is a standout feature, boasting a luxurious freestanding bath—perfect for unwinding at the end of the day. A separate laundry adds further practicality, providing additional storage and convenience for everyday living.
At the rear, a beautifully designed outdoor space offers the perfect balance of relaxation and entertainment. A decked courtyard seamlessly creating an ideal setting for hosting friends or enjoying quiet moments with a morning coffee. The adjoining grassed area provides a versatile space for children and pets to play, adding to the home’s appeal for families and young couples alike. With street parking available, everyday convenience is assured.
The location is second to none—only a 10-minute walk to both Yarraville and Seddon train stations, making city commuting effortless. Yarraville Village’s famous cafés, restaurants, and Sun Theatre are right at your doorstep, while just moments away, Seddon Village offers an array of renowned wine bars, restaurants, and the much-loved hidden gem, Mona Castle Hotel, ideal for a relaxed meal or a drink with friends. Families will appreciate the proximity to quality schooling options, with zoning to Yarraville West Primary School, St Augustine’s Primary School, and Footscray Secondary College. With beautiful parks, including Cruickshank Park nearby, weekend strolls and outdoor adventures are always within reach.
Offering a lifestyle of charm, convenience, and community, homes in this highly sought-after pocket rarely become available, and it’s easy to see why residents hold onto them for generations.
