A striking blend of mid-century inspired architecture, contemporary sophistication and effortless beachside living, this alluring four bedroom, three bathroom residence exudes refined luxury,...
A striking blend of mid-century inspired architecture, contemporary sophistication and effortless beachside living, this alluring four bedroom, three bathroom residence exudes refined luxury, exceptional functionality and an abundance of northern light.
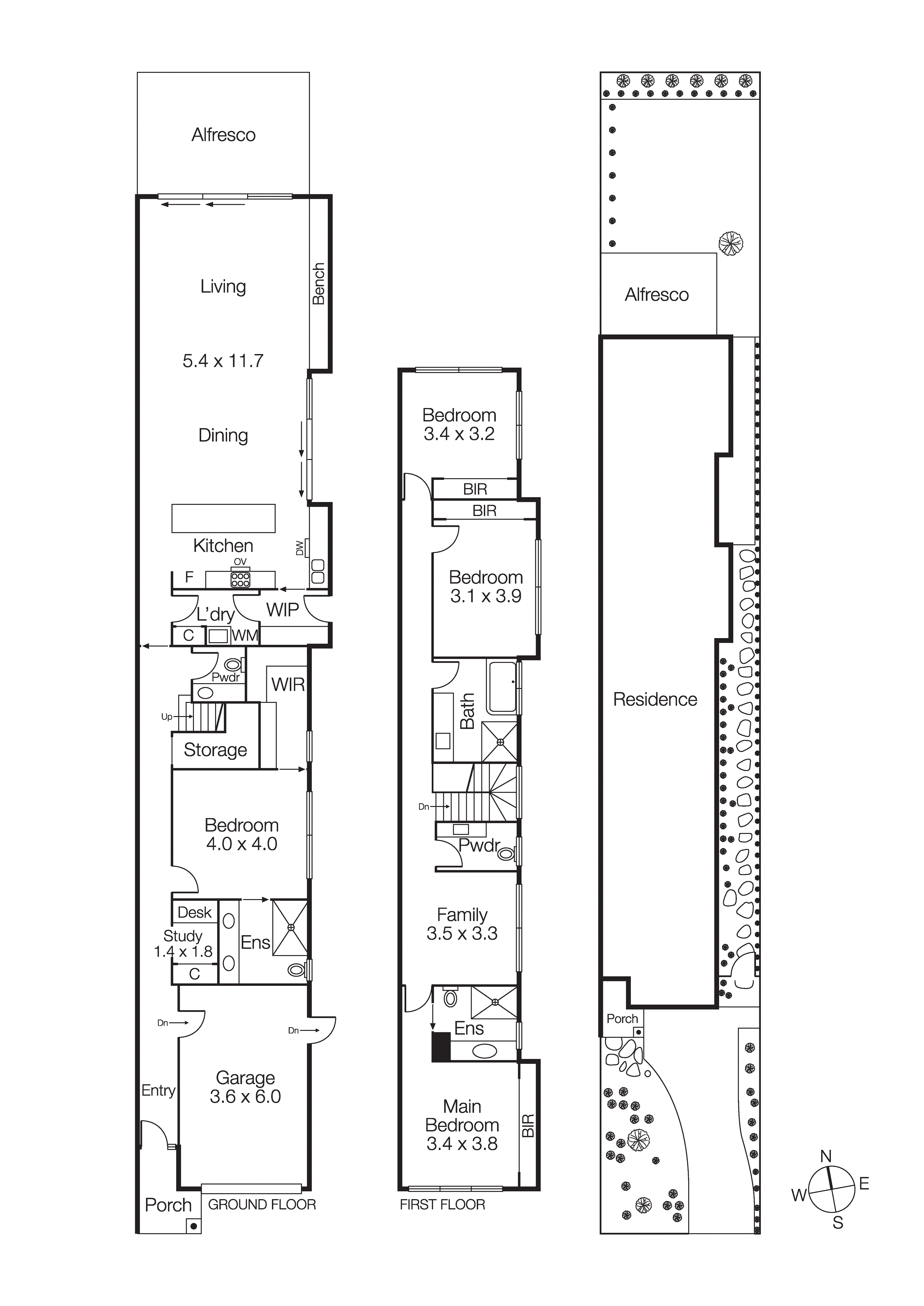
Flawlessly designed interiors unfold across two expansive levels, drenched in natural light and framed by serene, low-maintenance gardens. Wide engineered oak floors flow through the welcoming entrance hall, past a discreet study nook and a sleek laundry, before revealing the expansive family and kitchen domain—an ideal space for both relaxed daily living and entertaining.
A home chef’s delight, the gourmet kitchen features exquisite stone benchtops, a lavish waterfall island, a Bosch induction cooktop, Electrolux 90cm oven, Asko dishwasher and a walk-in pantry.
Custom joinery elevates the living and dining spaces, while glass stacking sliding doors create a seamless connection to a sun-drenched al fresco terrace that overlooks secluded, north-facing gardens with lush lawns.
Upstairs, a sun-filled retreat precedes three generous bedrooms, including a lavish master suite with raked ceiling, luxurious ensuite, plantation shutters, wall of built-in robes and tranquil treed outlook. Two additional bedrooms, each with built-in robes, share an indulgent family bathroom with a deep soaker tub and separate shower. On the ground floor, an alternative master bedroom features a walk-in robe and a sumptuous twin vanity ensuite.
Premium inclusions such as video intercom, fully tiled powder rooms on both levels, zoned reverse-cycle heating and cooling, ceiling fans in all bedrooms, plush carpets, a convenient laundry chute and an auto single garage with internal and rear access complete this extraordinary home.
Nestled in a premier pocket, just a short stroll to the Concourse, with vibrant shops, cafes, boutiques and restaurants, as well as parklands, Beaumaris Primary School, Stella Maris Catholic School and bus services, plus zoning for Beaumaris Secondary College and Mentone Girls’ Secondary College.
For more information about this compelling beachside retreat contact Richard Slade on 0419 588 873 or Nickole Smirnov on 0434 220 381 at Buxton Sandringham.
