A long, landscaped pathway draws the approach away from the street, creating a strong sense of privacy and arrival, while a magnificent Liquidambar tree forms a striking centrepiece within the front garden.
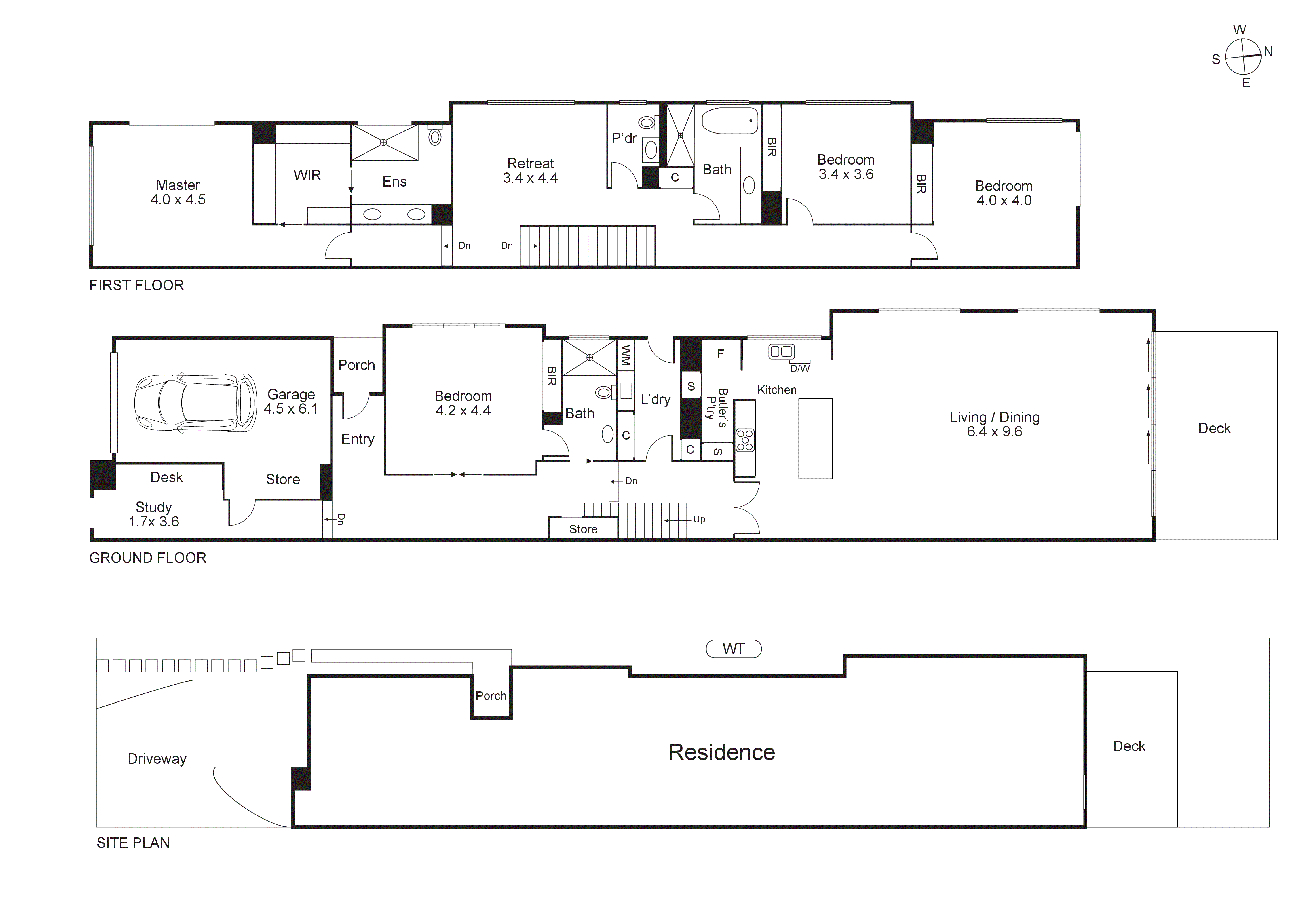
With a contemporary facade that gives little away, the sense of space is immediate within this four bedroom, three bathroom residence....
A long, landscaped pathway draws the approach away from the street, creating a strong sense of privacy and arrival, while a magnificent Liquidambar tree forms a striking centrepiece within the front garden.
With a contemporary facade that gives little away, the sense of space is immediate within this four bedroom, three bathroom residence.
High ceilings and French oak floors guide the way to the main family zone, where a vast living and dining domain wrapped in walls of glazing opens through stacker sliders to a deep al fresco deck, creating a natural setting for outdoor living within a secluded north-facing rear framed by magnolia trees.
The kitchen sits comfortably at the centre of the home, designed to be used rather than admired from a distance. A generous breakfast island, Ilve 5-burner cooker, integrated Asko dishwasher and a substantial walk-in pantry provide excellent functionality, with carefully considered storage throughout.
Downstairs, the layout at the front of the home offers flexibility. A potential fourth double bedroom, media room, or additional living space, enjoys access to a sleek semi-ensuite, while an additional fully fitted study sits at the front of the home.
Upstairs, a light-filled retreat connects three well-proportioned bedrooms. The main bedroom features a large picture window capturing treed views out front and golf course outlooks beyond, complemented by a dressing room with timber joinery and a luxurious twin-vanity ensuite. A central bathroom and powder room service the remaining bedrooms.
Additional highlights include a 6-star energy rating, double glazing, a security system, video intercom, full laundry, dual zoned ducted heating and air conditioning, laundry chute, seamless storage and a single garage with internal entry.
With Royal Melbourne Golf Club across the way, easy beach access, zoning for Beaumaris Secondary College, Beaumaris North Primary and Mentone Girls’ Secondary, and numerous shopping, dining and transport options all close at hand.
For more information about this two-storey indoor-outdoor haven contact Richard Slade or Nickole Smirnov at Buxton Sandringham.‬