Discover the tranquil allure of this single-level surprise tucked away on the edge of Highett village with vibrant shops, cafes, and city transport just steps from your door. Showcasing home-like...
Discover the tranquil allure of this single-level surprise tucked away on the edge of Highett village with vibrant shops, cafes, and city transport just steps from your door. Showcasing home-like space and sought-after style, this sun-filled sanctuary occupies a coveted position at the rear of a group of only five, ensuring utmost privacy and peace.
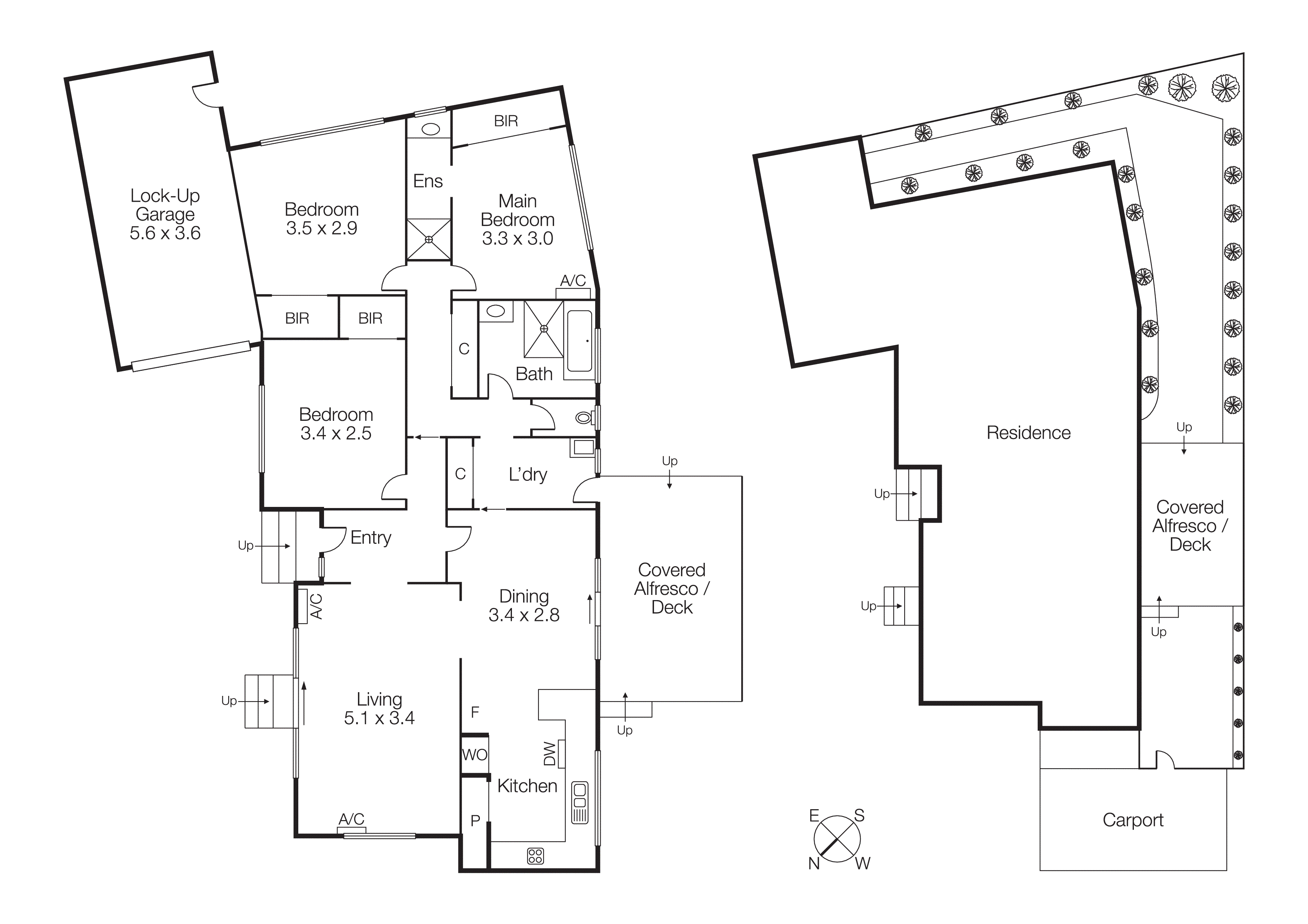
Super-sized and bathed in natural light, it stands apart with only a shared garage wall, offering a true sense of independence. A vast wrap-around courtyard enhances the sense of space, complemented by ample parking, including a single garage and a carport. This three-bedroom, two-bathroom villa is an ideal choice for young families and downsizers seeking quiet surroundings and lifestyle convenience.
Beautiful timber flooring, high ceilings, and picture windows create a welcoming ambience, while an excellent layout seamlessly separates living and accommodation zones. A long hallway leads to three spacious robed bedrooms, including a main with twin built-in robes, a sparkling ensuite, and a new split system air conditioner. A stunning designer bathroom is a highlight, showcasing luxe Italian feature tiles, a floating vanity, a backlit LED anti-fog mirror, and a deep 1.7m soaking bathtub for ultimate relaxation.
An expansive living room (with a new split system air conditioner) complements an open-plan kitchen and generous dining area. A stylish kitchen showcases subway-tiled splashbacks, modern black accents, electric Chef appliances, a dishwasher, and a walk-in pantry. Glass sliders open to a vast rear courtyard, where a covered deck invites year-round entertaining, and plenty of additional space for children and pets.
Set amid low-maintenance landscaping with secure access from both the garage and carport via the courtyard into the large laundry, this centrally heated home offers a perfect blend of privacy, easy-care living, and al fresco appeal. Part of a well-maintained and welcoming group, it enjoys a peaceful setting just a stone’s throw from the village’s vibrant atmosphere, Highett station, Woolworths, medical facilities, Southland, parkland, and much more.
For more information about this super-sized villa unit please contact Tom Davidson at Buxton Brighton on 0488 017 500.
