386 Ferrars Street, ALBERT PARK

Undisclosed

B 4 b 2

Buxton Albert Park
330 Montague Street,
Albert Park 3206

Get in touch

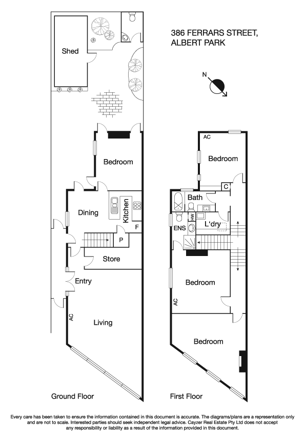
FABULOUS VICTORIAN SHOP DWELLING

'MANCENION HOUSE' CIRCA 1883 Rare opportunity for home/office occupation in blue-chip location only moments from Albert Park Village. Full of character, charm and history, this prominent property over...

View More

FABULOUS VICTORIAN SHOP DWELLING

'MANCENION HOUSE' CIRCA 1883
Rare opportunity for home/office occupation in blue-chip location only moments from Albert Park Village. Full of character, charm and history, this prominent property over two levels comprises: Side entrance, wonderful full-width front room/office space, kitchen with adjoining meals and bedroom. Upstairs: Charming...

View More

Location  

Get Directions
Map showing location of 386 Ferrars Street, ALBERT PARK VIC 3206

Buxton Albert Park 330 Montague Street,
Albert Park 3206

Get in touch

Want to know what your property's worth?

Looking to buy or sell a property? Click below to receive a full report highlighting market value, recent sales, rental history, suburb report and more.
Download Property Report

Enquire about this property

Submitting...

Success! Your enquiry has been submitted.

There was an error submitting the form. Please try again later.

Similar Properties

Sold
sold

Undisclosed

256 Bridport Street West, ALBERT PARK VIC 3206

B 4 b 2 C 1

Sold
sold

Undisclosed

268 Bridport Street West, Albert Park VIC 3206

B 4 b 2 C 1

Sold
sold

Undisclosed

13 Ashworth Street, Albert Park VIC 3206

B 4 b 2 C 1