Enjoying private access to the pristine sand within footsteps and village vibrancy just around the corner, this three bedroom sanctuary offers an idyllic beachside lifestyle. Hidden within a serene coastal setting, behind its timeless façade lies a fresh, modern interior with an abundance of natural light throughout, a flexible floorplan to suit...
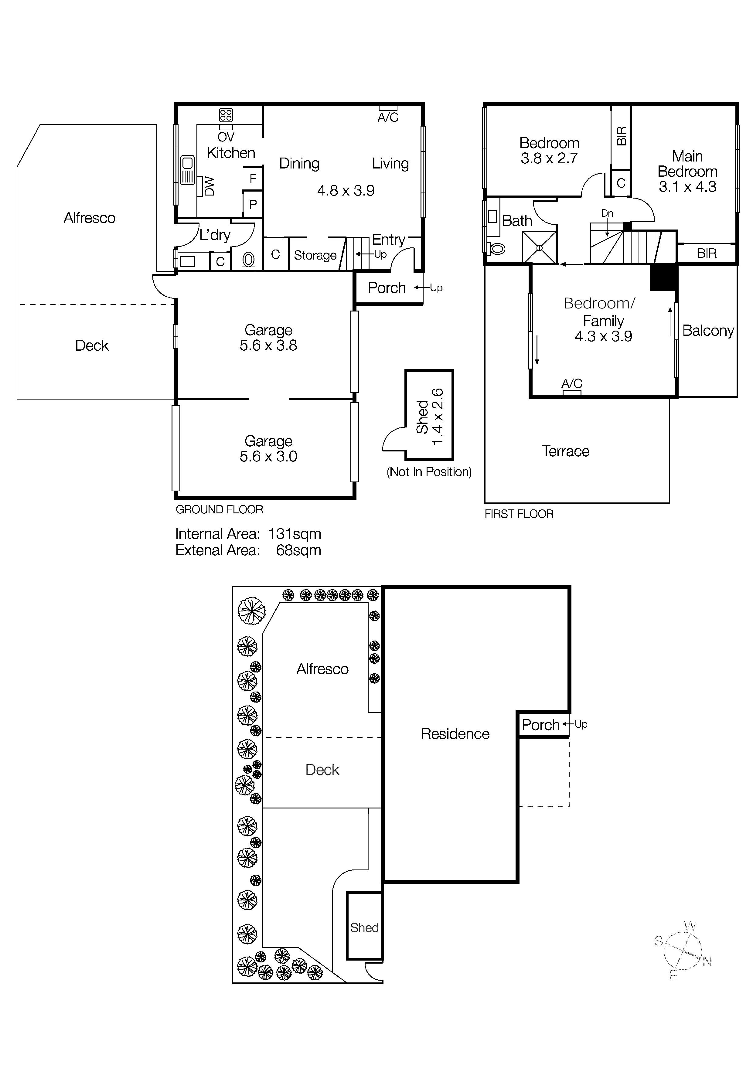
Enjoying private access to the pristine sand within footsteps and village vibrancy just around the corner, this three bedroom sanctuary offers an idyllic beachside lifestyle. Hidden within a serene coastal setting, behind its timeless façade lies a fresh, modern interior with an abundance of natural light throughout, a flexible floorplan to suit your lifestyle, incredible outdoor space and a double garage. Spacious living and dining is bright and airy, flowing to a contemporary kitchen which boasts a Kleenmaid cooktop and oven, an integrated dishwasher and fantastic storage. Residing upstairs are two robed bedrooms and a sleek fully-tiled rain shower bathroom, along with a second living space flowing to sea breeze balconies, or can alternatively be utilised as a third bedroom. The outdoor areas impress with enviable alfresco space, the huge garden courtyard and covered deck are private and sheltered – ideal for kids, pets and those who enjoy entertaining, while you’ll love to relax on the large upper-level terrace and balcony bathed in northern sunshine. Further highlights include timber-style flooring, laundry room with second toilet, split-systems, double roller blinds, under-stair storage, a garden shed, double remote garage with rear roller and ample visitor parking. With the natural beauty of the bay at your doorstep, and Edithvale’s relaxed café scene, shops, the lifesaving club and the train station within approximately 300 metres – the lifestyle convenience is outstanding. Edithvale Primary School, bus stops, golf courses, sports reserves and freeways are also within easy reach.