A true standout in every way, this unique single-level three-bedroom, two-bathroom villa delivers house-like proportions and rarely found indoor-outdoor space on 271sqm (approx) of blue-chip land. Privately set at the rear of a boutique group of just three, it’s steps from Were Street’s village favourites, including Olie & Ari and Brighton Grocer,...
A true standout in every way, this unique single-level three-bedroom, two-bathroom villa delivers house-like proportions and rarely found indoor-outdoor space on 271sqm (approx) of blue-chip land. Privately set at the rear of a boutique group of just three, it’s steps from Were Street’s village favourites, including Olie & Ari and Brighton Grocer, and moments to parkland, transport and the beach.
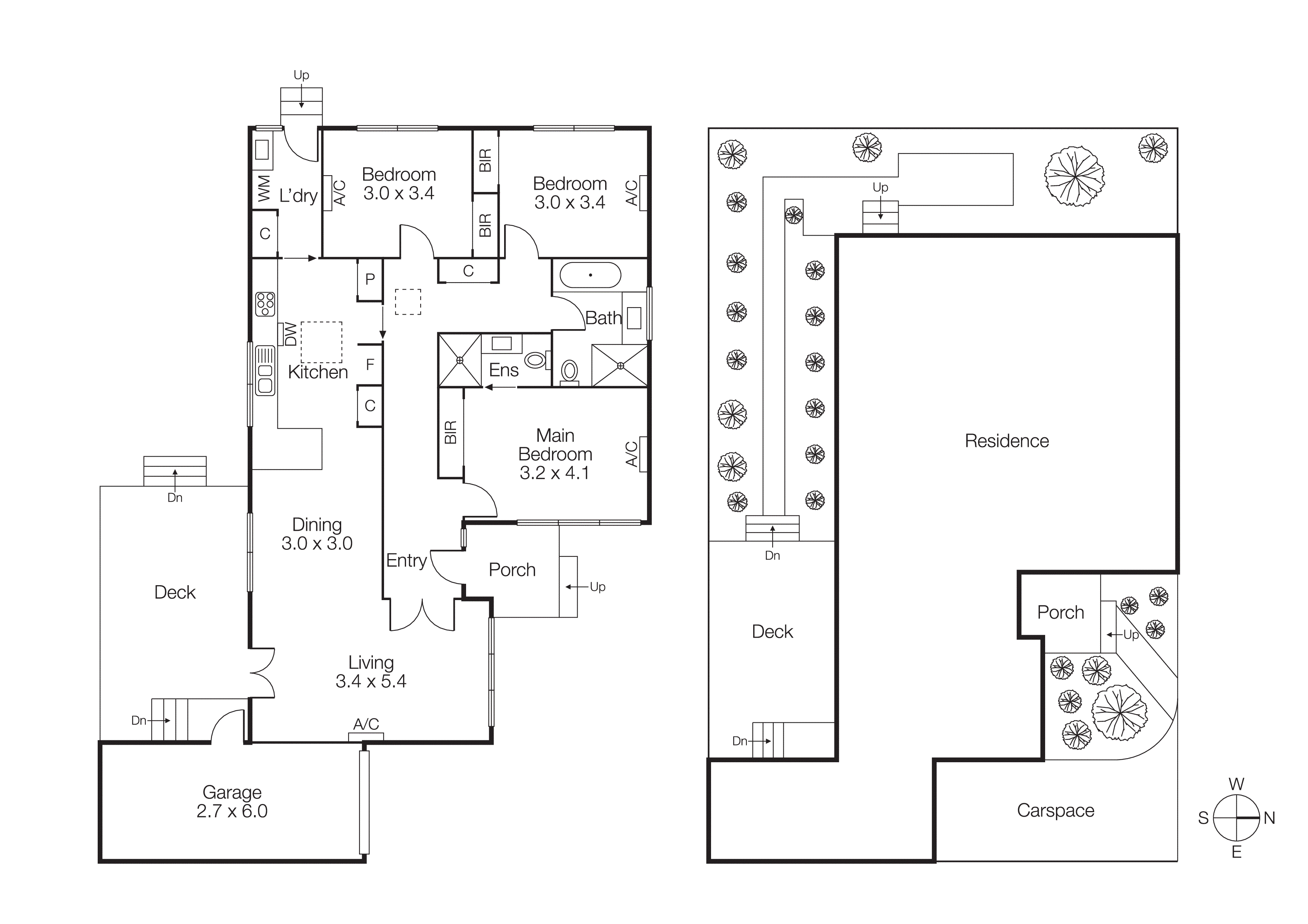
Filled with radiant sunlight, the generous layout showcases soaring 2.7 metre ceilings, polished timber floors, and vast picture windows dressed in elegant sheers. Open-plan living and dining zones offer a wonderful sense of scale, flowing out to an elevated entertaining deck and an oversized courtyard, a rare offering perfect for garden get-togethers, children’s play or simply enjoying the sun in peace and privacy.
The beautifully renovated family-size kitchen is among the many highlights, appointed with a Velux skylight, stone benchtops and breakfast bar, 5-burner gas cooktop, dishwasher and striking oak-toned and gloss white cabinetry with pull-out pantry shelving. The adjoining laundry is equally well-designed with additional storage and courtyard access.
Down a wide, sensor-lit hallway, all three generous bedrooms feature built-in robes, including a main suite with the appealing inclusion of a fully tiled ensuite. The central bathroom continues the refined aesthetic with a dual-head rain shower, separate bath, stone-detailed vanity and warming heat lamp.
Additional comforts include ducted heating, split systems in all bedrooms and living, and a private single garage. Set on one of Brighton’s most coveted beachside boulevards, this home’s exceptional indoor proportions and oversized outdoor areas make it a rare find for downsizers, young families or anyone seeking low-maintenance ease without compromise.
Surrounded by some of Melbourne’s most prestigious homes and within easy reach of Hampton Street, Church Street and the bay, this is exclusive Bayside living in a prized village pocket.
For more information about this renovated villa residence please contact Leanne Potter at Buxton Brighton on 0414 344 144.