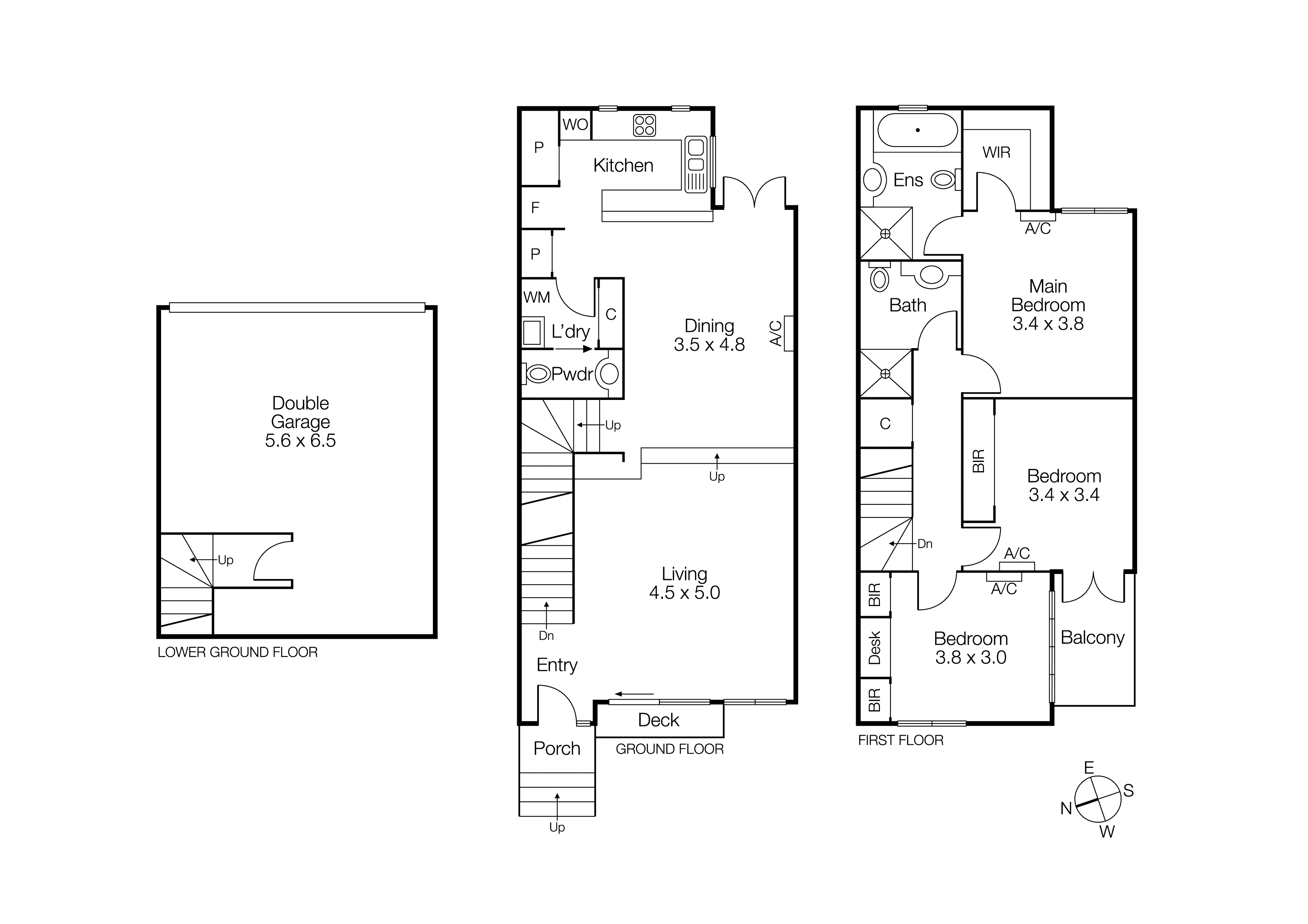
Have a Brighton lifestyle, a beachside address and parkland metres away when you're the proud owner of this beautifully maintained townhouse. Exceptional low-maintenance living, this three-bedroom home is abundant with light, quality and style. The sun-filled living zone is warm and welcoming, featuring exquisite high ceilings, plantation shutters,...
Have a Brighton lifestyle, a beachside address and parkland metres away when you're the proud owner of this beautifully maintained townhouse. Exceptional low-maintenance living, this three-bedroom home is abundant with light, quality and style. The sun-filled living zone is warm and welcoming, featuring exquisite high ceilings, plantation shutters, double glazed windows and polished floorboards. Entertaining will be a regular feature with quality European kitchen appliances, a large pantry and a private front courtyard perfect for those summer BBQs.
Indulge in the soft, plush carpeting underfoot as you head upstairs to relax and rejuvenate, and enjoy comfort all year round with heating and cooling split systems in each room. The master bedroom delivers your perfect sanctuary with a walk-in robe and marble ensuite with bathtub, while two additional bedrooms boasting built-in robes (one with desk, one with terrace access) share a family bathroom finished in marble.
There is direct internal access to your secure double car garage (with plenty of storage space) and guest parking either via St Kilda St or via Head Street. Where else can you have panoramic views across the foreshore's parkland, bay glimpses and one of Melbourne's most scenic bike paths at your door? With Elwood Beach and Elsternwick Park only a few doors away, your leisure options are abound.
This bayside haven is just a short stroll to Elwood's vibrant cafes in Ormond Rd, Brighton's top schools and transport options.
For more information about this secure and spacious town residence please contact Tom Davidson at Buxton Brighton on 0488 017 500.