Contemporary Family Haven in Coveted Yarraville Nestled in one of Yarraville's most coveted pockets, this urban sanctuary presents a rare opportunity to secure a modern eclectic family home that...
Contemporary Family Haven in Coveted Yarraville
Nestled in one of Yarraville's most coveted pockets, this urban sanctuary presents a rare opportunity to secure a modern eclectic family home that masterfully balances contemporary sophistication with effortless lifestyle appeal. Positioned right next to the expansive greenery of Yarraville Gardens, this immaculate residence delivers an unparalleled connection to nature while keeping you mere moments from everything that makes inner west living so irresistible.
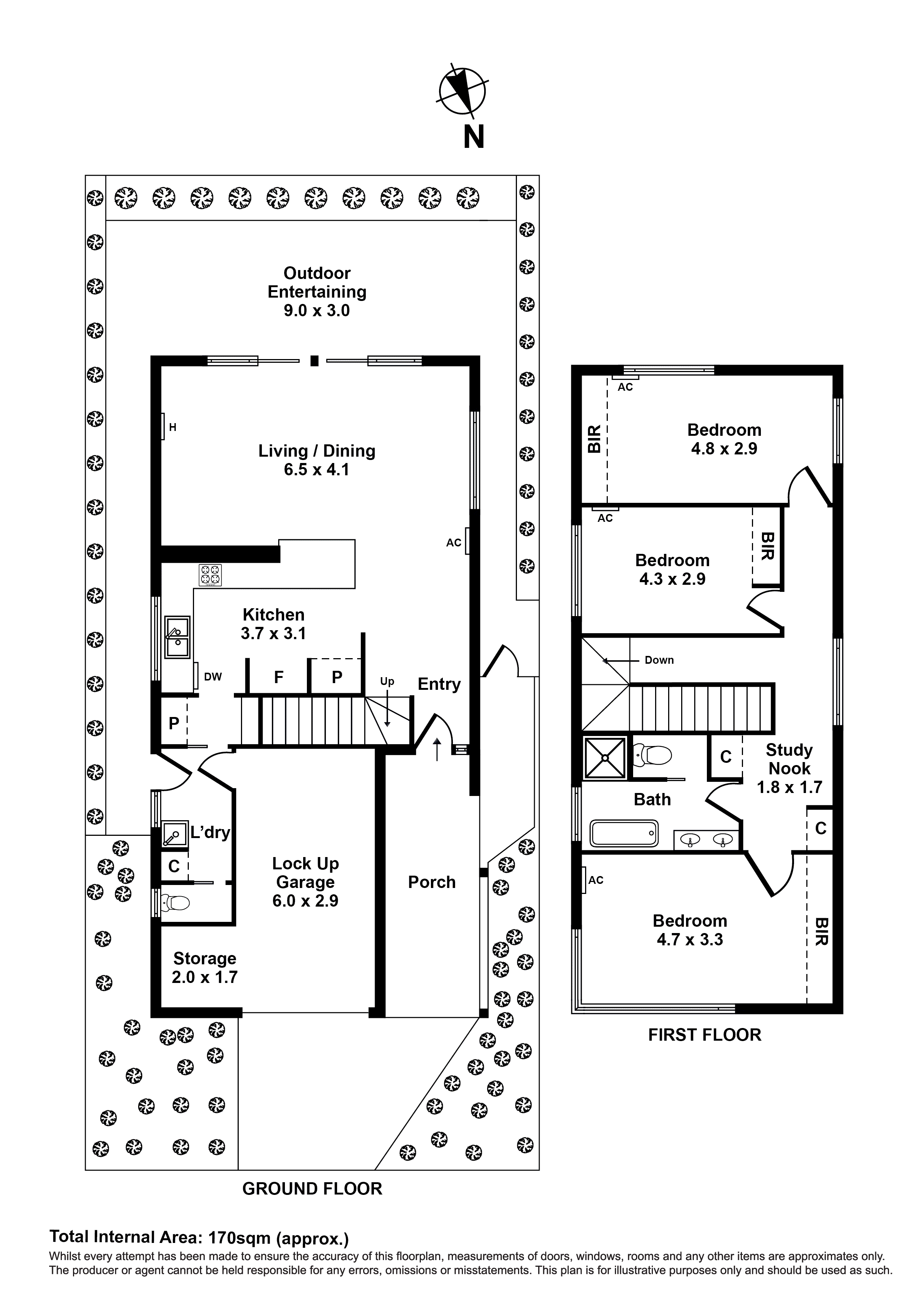
The home welcomes you with an appealing brick façade that hints at the thoughtful design within. Step inside to discover a spacious open plan living and dining area where sleek styling meets functionality. Complemented by split system heating and cooling plus a separate gas heater, the space maintains perfect comfort throughout every season. The generous kitchen commands attention with its dark moody finishes, pristine porcelain benchtops and splashbacks, complemented by quality Bosch appliances including an electric cooktop and steam oven. This is a space designed for those who love to cook and entertain in equal measure.
Flow seamlessly from the living spaces to your own outdoor entertaining garden oasis, a tranquil retreat perfectly proportioned for alfresco dining, weekend gatherings, or simply unwinding after a long day. The low-maintenance design ensures you'll spend more time enjoying your surroundings and less time on upkeep, while the secure lock up garage provides convenient off-street parking and additional storage.
Venture upstairs to find three generously proportioned light-filled bedrooms, each appointed with built-in robes and split system heating and cooling for year-round comfort. Enjoy captivating city views that remind you of your proximity to Melbourne's vibrant heart while maintaining the peace and tranquility of suburban living. The clever floorplan also incorporates a dedicated study nook, ideal for those working from home or children's homework station. The main bathroom services the upper level beautifully with a relaxing bathtub perfect for unwinding at day's end, while a convenient powder room on the ground floor adds practicality for busy households.
The lifestyle credentials here are truly exceptional. Positioned just metres from Seddon train station, your commute to Melbourne CBD becomes an absolute breeze, while being only 900 metres from the heart of both Yarraville and Seddon Villages means you're spoilt for choice when it comes to weekend adventures. Catch a movie at the famous Sun Theatre, explore popular wine bars, or sample the diverse restaurant scene that has put this neighbourhood on the map. With everything from specialty coffee roasters to boutique shopping at your doorstep, you'll discover why Yarraville continues to be one of Melbourne's most sought-after addresses.
