A statement of architectural elegance and contemporary sophistication, this newly completed four bedroom, three bathroom residence presents a masterful balance of form, function and family flexibility.
Designed for those who value light, texture and proportion, every element has been considered to create an atmosphere of effortless...
A statement of architectural elegance and contemporary sophistication, this newly completed four bedroom, three bathroom residence presents a masterful balance of form, function and family flexibility.
Designed for those who value light, texture and proportion, every element has been considered to create an atmosphere of effortless luxury.
Wide oak floors, lofty ceilings and sheer drapery define both levels, filtering natural light with understated grace.
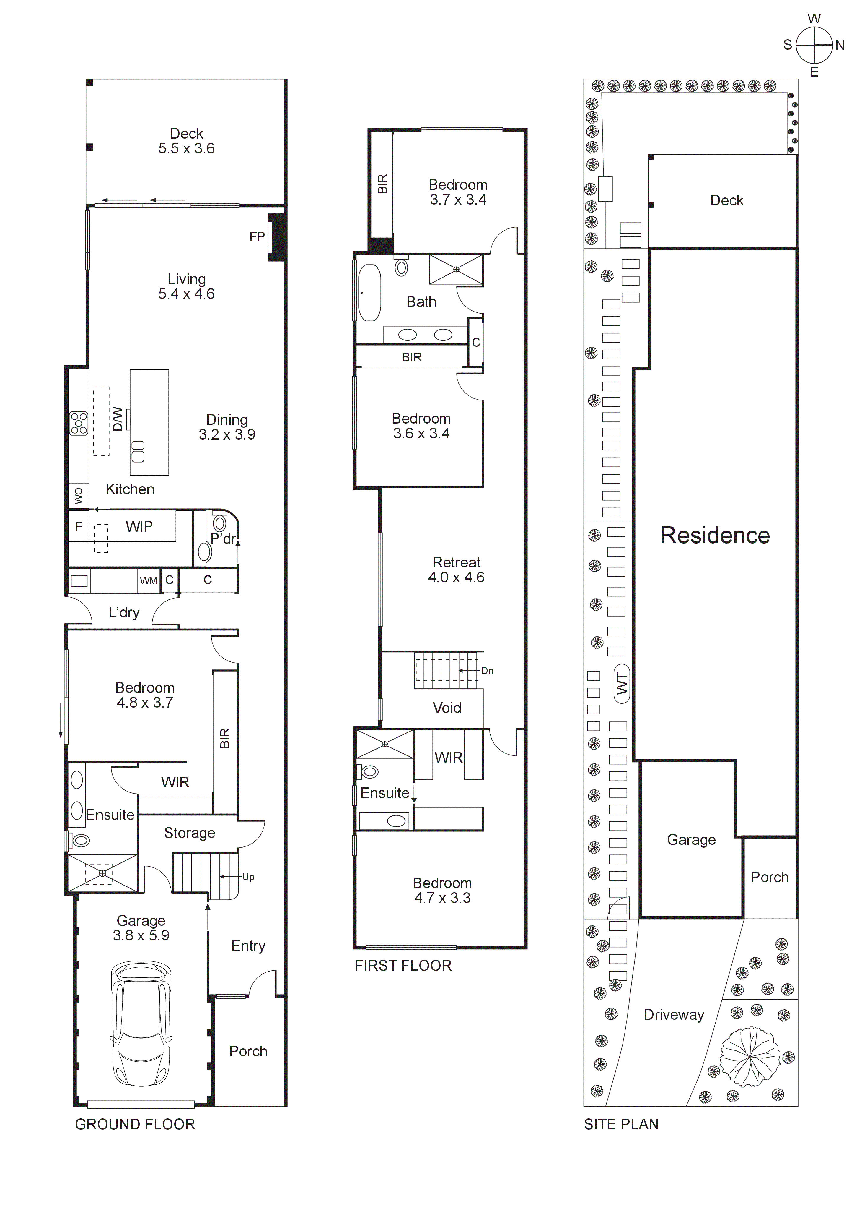
A wall of glazing frames the fireside living domain, where seamless connection to an al fresco deck creates a beautiful interplay between indoors and out. Surrounded by leafy, low-maintenance northwest-facing gardens, the outdoor zone provides the perfect setting for entertaining or quiet retreat.
At the heart of the home, the stone-finished kitchen connects effortlessly to the dining area, uniting sculptural beauty with refined practicality. A waterfall island anchors the space beside premium Miele appliances - dual ovens, induction cooktop and dishwasher - while a walk-in pantry and sleek, streamlined joinery extend a sense of continuity and calm.
Two master suites - one on each level - reflect thoughtful design and enduring comfort. The ground-floor suite offers a wall of built-ins, a walk-in robe and luxurious twin-vanity ensuite, while the upstairs master showcases a designer dressing room and a lavish ensuite. Two additional bedrooms with seamless storage share a sumptuous twin-vanity bathroom with deep soaker tub, complemented by an upstairs retreat.
Additional features include video intercom, security alarm, fitted laundry, ground-floor powder room, individual climate control and internal access single garage.
Perfectly positioned in a peaceful pocket with parklands at the end of the street, the beach and the vibrant shopping and dining of The Concourse and Keys Street, plus Beaumaris Primary, Stella Maris Catholic School and Beaumaris Secondary all within strolling distance.
For more information about this sleek contemporary showpiece contact Romana Altman or Louise Herterich at Buxton Sandringham.