Write the next chapter in a cherished Brighton East story on Bright Street, where this much-loved 1940s home occupies an impressive 724 sqm (approx) adjoining Glen Edward Rice Reserve. Combining classic charm with future promise, it offers the perfect foundation for a contemporary renovation or the creation of a brand-new family residence in this...
Write the next chapter in a cherished Brighton East story on Bright Street, where this much-loved 1940s home occupies an impressive 724 sqm (approx) adjoining Glen Edward Rice Reserve. Combining classic charm with future promise, it offers the perfect foundation for a contemporary renovation or the creation of a brand-new family residence in this tightly held, family-friendly locale (STCA).
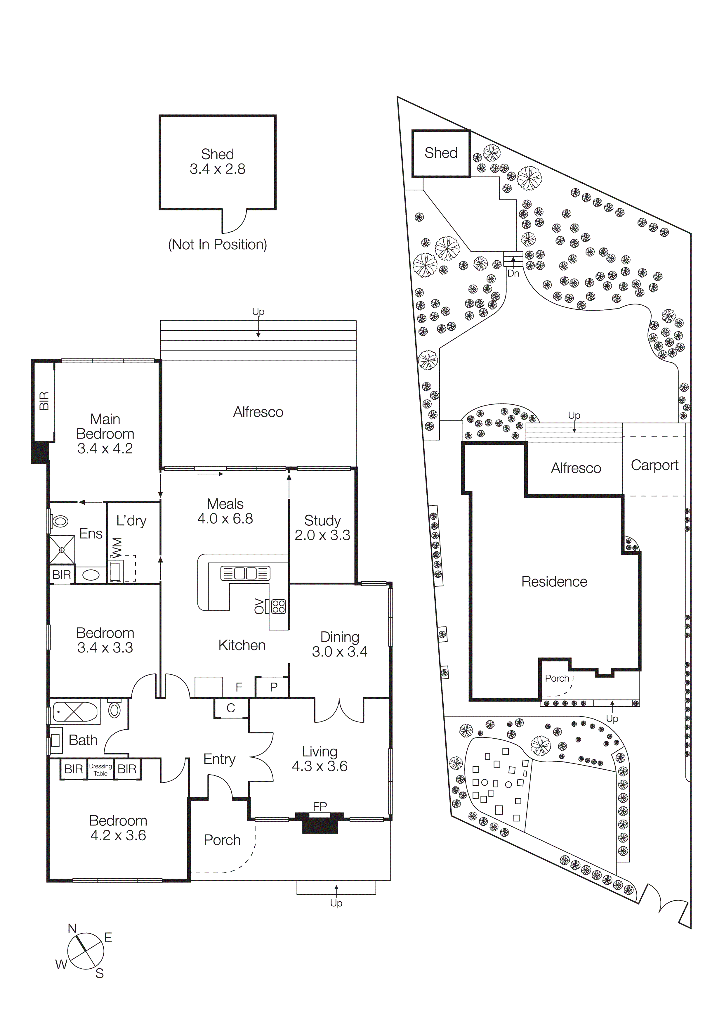
Set behind high fencing towards the end of the cul-de-sac, the home’s attractive clinker brick facade and leafy gardens create an immediate sense of welcome and character. Inside, high ceilings with decorative cornices, picture rails and original fireplaces (not operational) highlight its enduring appeal, with generous lounge and dining rooms offering inviting spaces to enjoy and enhance. Comfort is further supported by gas heating, ensuring warmth throughout the cooler months.
Three bedrooms include a main with ensuite, while a light-filled sunroom/study captures sweeping garden views. The kitchen and adjoining meals area open to a covered terrace, stepping down to a deep north-facing backyard, a blank canvas for lush landscaping, a pool, or an all-new family domain that embraces its tranquil parkside boundary (STCA).
A truly treasured setting where children can wander around to the neighbouring park and playground, this prized address promises an exceptional Brighton East lifestyle close to Dendy Village, St Finbar’s Primary, Brighton Secondary College, Centre Road transport and all the shopping, dining and beaches that define Bayside living.
For more information about this classic home with parkside potential please contact Halli Moore at Buxton Brighton on 0403 777 661.