Behind its private gates lies a tranquil single-level sanctuary, reimagined for contemporary family living with acoustic innovation and expansive north-facing gardens. A versatile four-bedroom design with a dedicated home office or retreat complements sun-soaked indoor-outdoor entertaining perfected for a lifestyle of relaxed enjoyment.
The home’s...
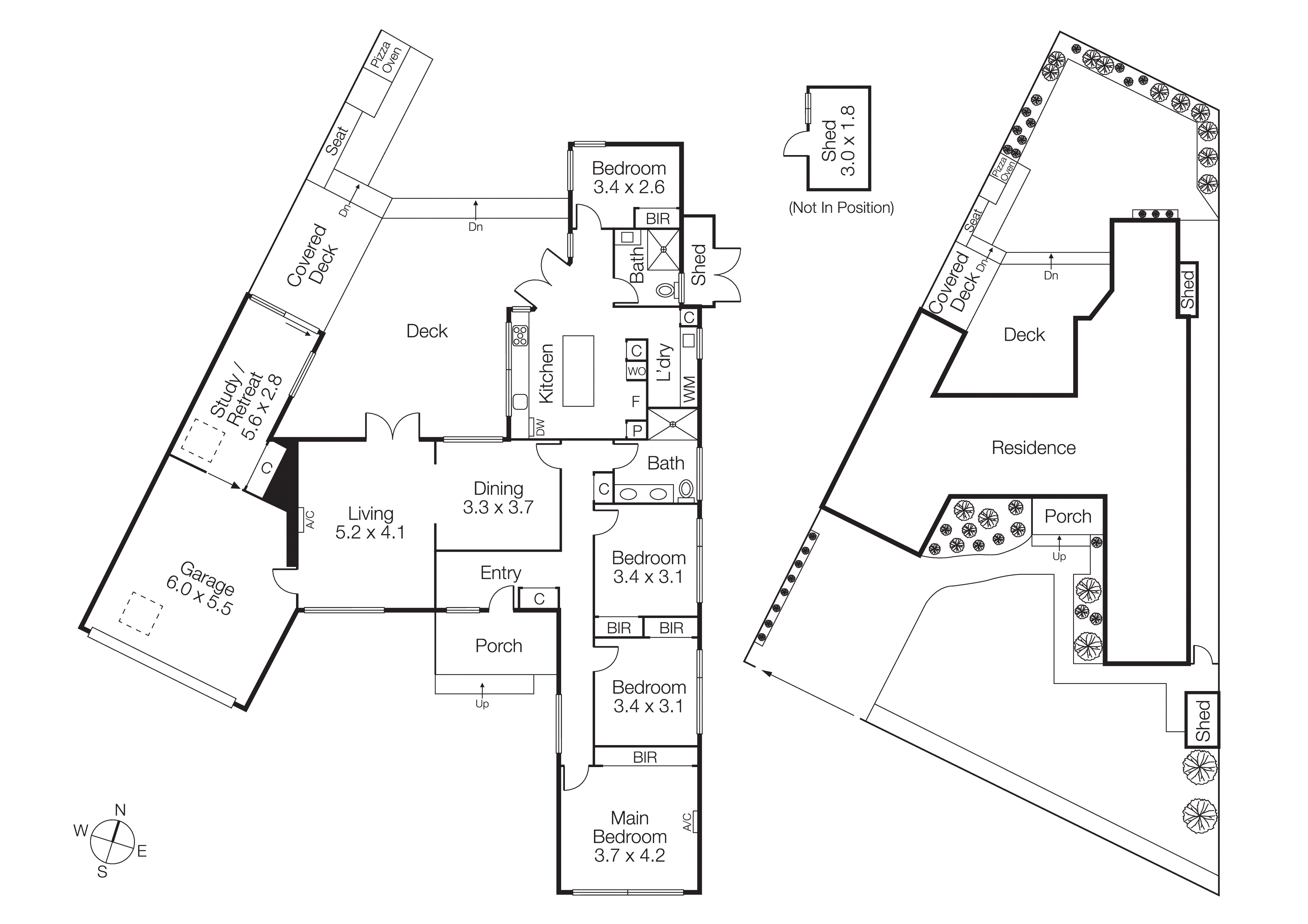
Behind its private gates lies a tranquil single-level sanctuary, reimagined for contemporary family living with acoustic innovation and expansive north-facing gardens. A versatile four-bedroom design with a dedicated home office or retreat complements sun-soaked indoor-outdoor entertaining perfected for a lifestyle of relaxed enjoyment.
The home’s appeal is immediately evident upon arrival, with a smart brick façade, modern black accents and lush manicured lawns framing the generous front garden. Inside, double-glazed Rylock windows and doors ensure a whisper-quiet environment while inviting leafy outlooks and abundant natural light throughout. Timber floors flow from spacious living and dining rooms to vast wrap-around decking, a covered al fresco zone with strip heaters and ceiling fan, and a built-in pizza oven for year-round gatherings with family and friends.
A servery window connects the outdoor area to a sleek stone kitchen, featuring a statement island/breakfast bar, Bosch induction cooking, dual oven and combi-microwave, dishwasher and extensive soft-touch cabinetry. A similarly appointed laundry adds a second prep and storage zone for seamless functionality, while polished concrete flooring adorns a double garage and flexible home office, retreat or games room (with mirrored robes, heating and glass sliders to the deck).
Three generous bedrooms, each with mirrored built-in robes, share a luminous skylit bathroom with stone dual-vanity and dual-head shower. The fourth garden-view bedroom (with robes) enjoys its own similarly updated bathroom. Centrally heated with split system cooling and keypad security gate, this home delivers exceptional family value in a peaceful 668 sqm (approx) garden setting close to Brighton Golf Course, Dendy Park, Haileybury, St Leonard’s, Hampton Street, transport and the beach.
For more information about this feature-rich family home please contact Greg Costello at Buxton Brighton on 0418 170 086.