Discover the surprising family space of this picture-perfect Edwardian and embrace a sought after Landcox lifestyle. Featuring three living zones and four bedrooms over two generous levels, this home...
Discover the surprising family space of this picture-perfect Edwardian and embrace a sought after Landcox lifestyle. Featuring three living zones and four bedrooms over two generous levels, this home is set within a completely private pool and garden oasis. Just metres from Gardenvale Primary School, Zest Cafe, and Landcox Park, the highly desirable locale perfectly complements the beautifully renovated residence, designed for effortless family living and entertaining.
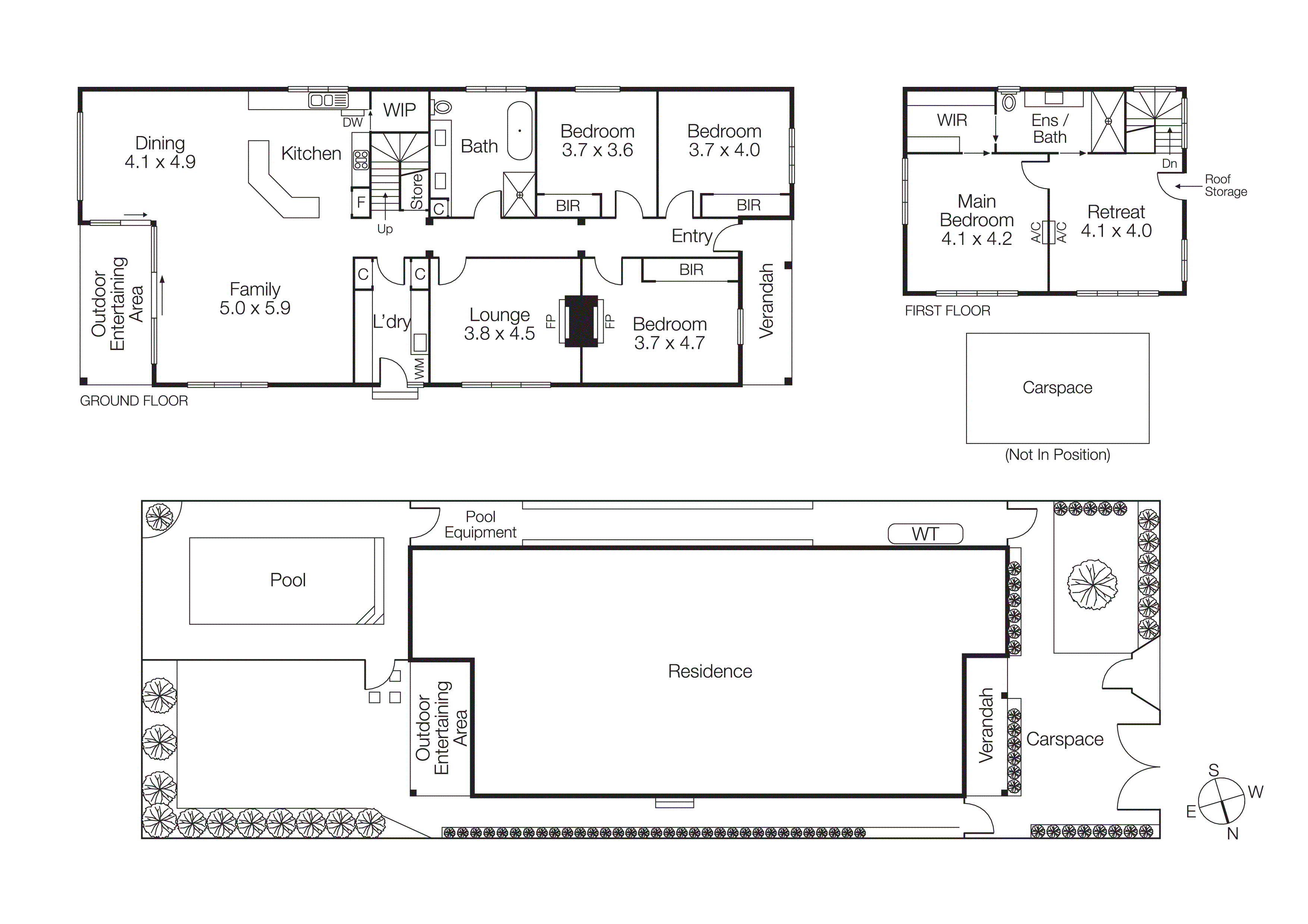
A chic white façade and sun-soaked veranda introduce a versatile layout, ideal for families of all stages. A central hallway, featuring soaring ceilings and Baltic Pine floorboards, flows into a stunning rear extension. This light-filled domain offers vast living and dining areas, with expansive glass framing views of the sparkling solar heated pool. The covered deck invites al fresco dining, while the leafy rear garden provides ample space for relaxation and children’s play.
The prestige kitchen is designed around a large stone island bench, perfect for casual meals and entertaining. A free-standing Smeg cooker, dishwasher, abundant soft-close cabinetry, and a walk-in pantry elevate the cooking experience. Bathrooms on both levels reflect the same attention to detail, with the main featuring a dual vanity and a luxe designer bathtub. Even the laundry is family-sized, with ample bench space, cabinetry, and outdoor access.
A formal lounge, complete with a decorative open fireplace, complements three spacious ground-floor bedrooms, each with built-in robes. Upstairs, a private retreat awaits, offering a bright and airy third living zone and a tree-top bedroom suite with a walk-in robe and stylish two-way en suite. Additional highlights include ducted heating and cooling on the ground floor, reverse cycle air conditioning upstairs, solar heating for the self-cleaning pool, landscaped gardens, and gated parking.
Savour the space and love the location, with cafes and schools just a short stroll away, Bay Street and the station within walking distance, and Bayside's renowned selection of shops, restaurants, schools, and beaches just minutes by car. Join a prized neighbourhood with this fabulous family home that offers more than meets the eye.
For more information about this exceptionally extended Edwardian please contact Halli Moore at Buxton Brighton on 0403 777 661.
