Step beyond the charming picket fence and onto the welcoming front porch of this classic single-fronted Victorian weatherboard, and you’ll immediately sense the calm confidence of a home that has been...
Step beyond the charming picket fence and onto the welcoming front porch of this classic single-fronted Victorian weatherboard, and you’ll immediately sense the calm confidence of a home that has been lovingly curated over time. Set in one of Williamstown’s most tightly held pockets, this is where period elegance and contemporary living come together with effortless ease.
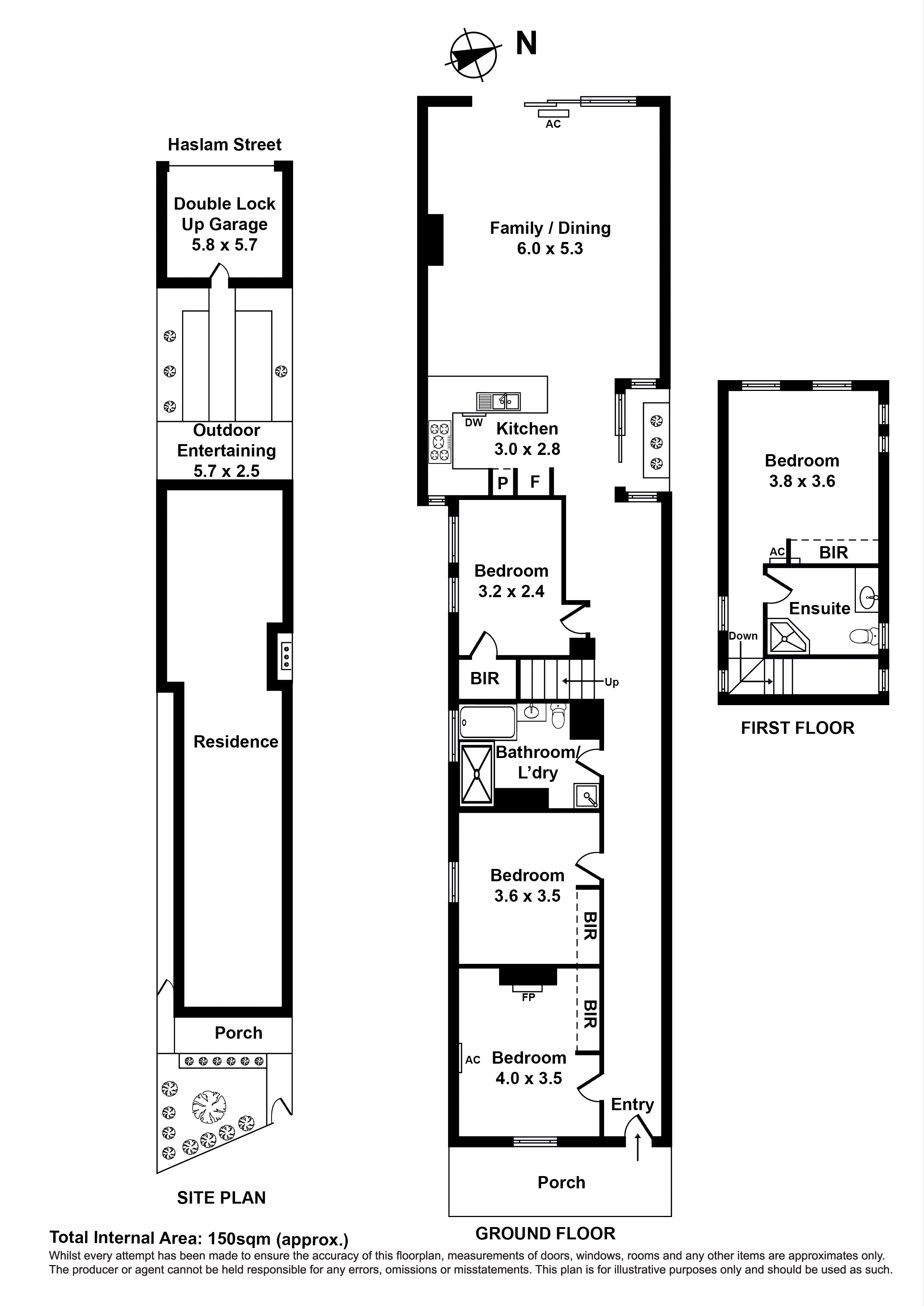
Inside, timber floorboards guide you along the central hallway, with three inviting bedrooms positioned to the left. The front bedroom is rich in character, featuring an ornamental fireplace, built-in robes, plantation shutters and split-system heating and cooling. The second bedroom mirrors this sense of refinement with timber floors, built-in robes and shutters, while the third – slightly smaller in scale – offers a charming personality of its own with a beautiful floral feature wall.
Centrally positioned, the downstairs bathroom incorporates the laundry, offering a highly functional layout without compromising on style. It features a walk-in shower, separate bath, timber vanity, toilet and plantation shutters – a thoughtfully designed space for everyday living.
At the rear, the home opens into a stunning modern extension where a soaring pitched ceiling adds architectural drama to the open-plan kitchen, dining and living zone. Bathed in natural light, this space is designed for everyday living and relaxed entertaining, flowing seamlessly to a decked outdoor area and low-maintenance backyard. Framing the outdoors is a thoughtfully curated edible garden, complete with lemon, lime and orange trees and a flowing grapevine that softens the space and invites seasonal harvesting. An internal courtyard with a sculptural cactus garden sits just off the kitchen, adding a unique and unexpected design element.
The kitchen itself is crisp and contemporary, featuring white stone benchtops and premium European appliances – practical, stylish and perfectly in tune with the home’s overall aesthetic.
The upper level is dedicated entirely to the main bedroom retreat. With pitched ceilings, soft carpet underfoot, built-in wardrobes and an ensuite, this space is filled with beautiful natural light through four large windows, all finished with plantation shutters for privacy and comfort.
Throughout the home, thoughtful inclusions such as ducted heating, split-system climate control, plantation shutters, ornamental fireplaces and a 4.8kW solar panel system reinforce the sense of quality, comfort and energy efficiency. The dream of off-street parking is fulfilled thanks to a double lock-up garage with easy rear access via Haslam Street.
The location is simply exceptional. You can stroll the coastal walking trails along Port Phillip Bay, spend weekends exploring the cafés, restaurants and boutique shops of Nelson Place and The Strand, or pop down to Williamstown Beach to cool off on summer afternoons. Trains into the CBD are close by, parks and gardens are moments away, and the home is zoned to the highly regarded Williamstown North Primary School. Everything that makes Williamstown so loved is quite literally at your doorstep.
Beautifully presented, impeccably located and rich in warmth and character, 19 Dover Road offers a lifestyle that feels effortless, connected and distinctly Williamstown.
