Find the one that truly stands apart in scale and lifestyle with this unique double-storey, single-bedroom town residence in the coveted Church Street precinct. One of only three architect-designed...
Sharing Listing
B 1 b 1 C 1
Buxton Brighton
Level 1, 28 Carpenter Street,
BRIGHTON VIC
3186
Find the one that truly stands apart in scale and lifestyle with this unique double-storey, single-bedroom town residence in the coveted Church Street precinct. One of only three architect-designed...
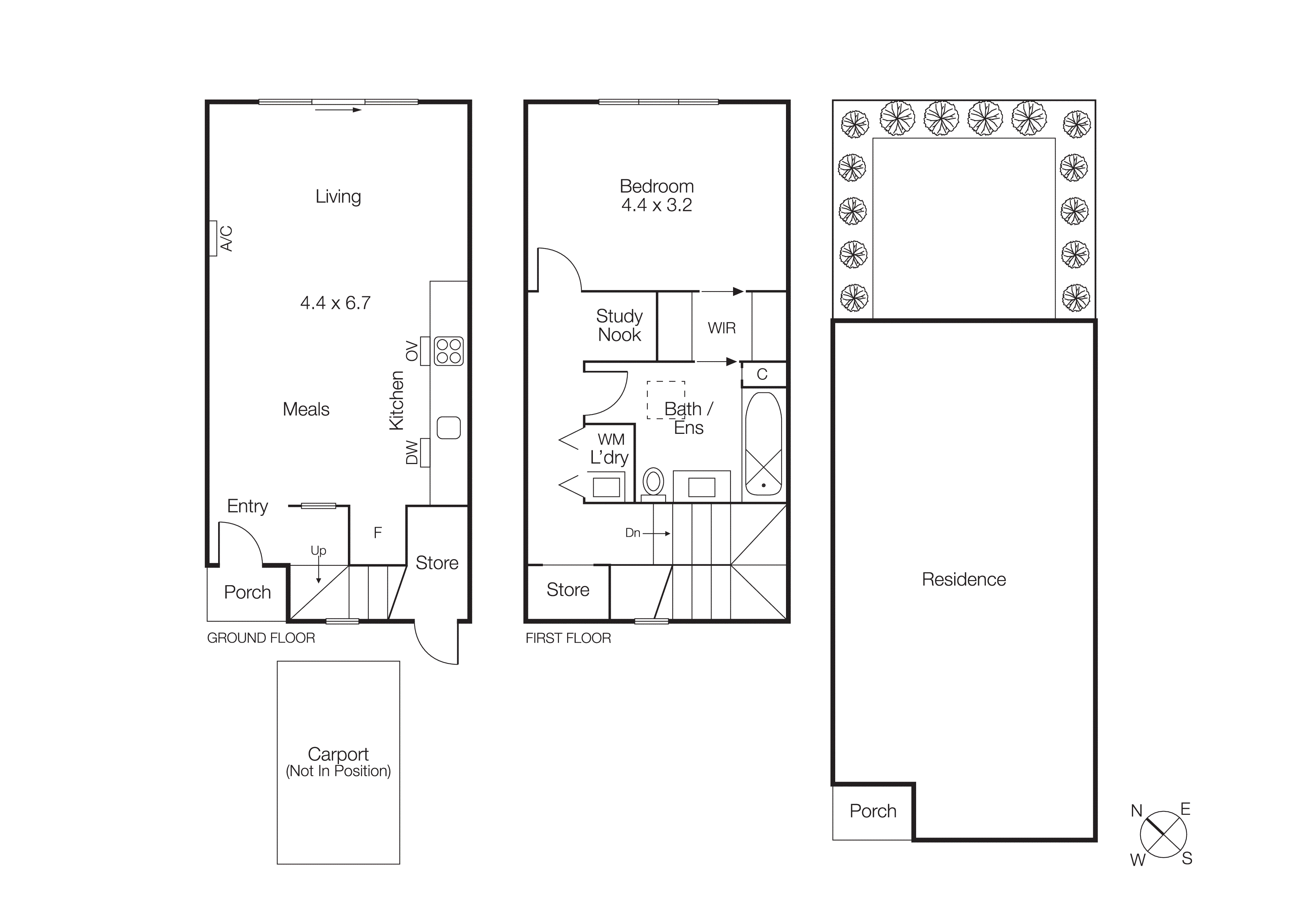
Find the one that truly stands apart in scale and lifestyle with this unique double-storey, single-bedroom town residence in the coveted Church Street precinct. One of only three architect-designed townhomes nestled at the rear of a boutique Art Deco group, it combines prestige proportions with period style to offer an exceptional Bayside base or blue-chip Brighton entry.
Set well back for peace and privacy, the home enjoys abundant natural light throughout its generous open-plan design. Polished floorboards sweep through spacious living and dining areas that spill out to a beautifully landscaped courtyard, perfectly oriented to entertain in the northern sun. The stylish stone kitchen impresses with quality stainless steel appliances, a gas cooktop, a dish-drawer and abundant custom storage.
Upstairs, the sense of space continues with a superbly oversized bedroom capturing a leafy outlook. A walk-in robe connects to a contemporary ensuite featuring a stone vanity, a bathtub and a skylight that fills the space with sunlight. A study nook, split system heating and cooling, a European laundry and excellent storage options complete this easy-living package.
Secure entry and auto-gated carport parking add peace of mind, while the unbeatable position enhances the appeal. You can stroll to fine dining, cafes, boutique shopping, the cinema, Middle Brighton station and Dendy Street’s iconic bathing-box beach. A rare find in every sense, this one delivers the lifestyle, the location and the liveability. It is a singular opportunity in one of Brighton’s finest locales.
For more information about this one-off Brighton town residence please contact Halli Moore at Buxton Brighton on 0403 777 661.
Find the one that truly stands apart in scale and lifestyle with this unique double-storey, single-bedroom town residence in the coveted Church Street precinct. One of only three architect-designed townhomes nestled at the rear of a boutique Art Deco group, it combines prestige proportions with period style to offer an exceptional Bayside base or...
Find the one that truly stands apart in scale and lifestyle with this unique double-storey, single-bedroom town residence in the coveted Church Street precinct. One of only three architect-designed townhomes nestled at the rear of a boutique Art Deco group, it combines prestige proportions with period style to offer an exceptional Bayside base or blue-chip Brighton entry.
Set well back for peace and privacy, the home enjoys abundant natural light throughout its generous open-plan design. Polished floorboards sweep through spacious living and dining areas that spill out to a beautifully landscaped courtyard, perfectly oriented to entertain in the northern sun. The stylish stone kitchen impresses with quality stainless steel appliances, a gas cooktop, a dish-drawer and abundant custom storage.
Upstairs, the sense of space continues with a superbly oversized bedroom capturing a leafy outlook. A walk-in robe connects to a contemporary ensuite featuring a stone vanity, a bathtub and a skylight that fills the space with sunlight. A study nook, split system heating and cooling, a European laundry and excellent storage options complete this easy-living package.
Secure entry and auto-gated carport parking add peace of mind, while the unbeatable position enhances the appeal. You can stroll to fine dining, cafes, boutique shopping, the cinema, Middle Brighton station and Dendy Street’s iconic bathing-box beach. A rare find in every sense, this one delivers the lifestyle, the location and the liveability. It is a singular opportunity in one of Brighton’s finest locales.
For more information about this one-off Brighton town residence please contact Halli Moore at Buxton Brighton on 0403 777 661.
Buxton Brighton
Level 1, 28 Carpenter Street,
BRIGHTON VIC
3186
We'll give you a clear, honest assessment based on real market insights, so you can make informed decisions with confidence.
Local knowledge. Proven results. Trusted advice.
