Screened by a high fence with remote-controlled gate entry, this irresistible four bedroom, two bathroom residence presents a confident reimagining of mid-century character, evolved for contemporary family living.
From its established gardens and treehouse to sun-drenched crazy-paved terraces and carefully curated interiors, the home feels like...
Screened by a high fence with remote-controlled gate entry, this irresistible four bedroom, two bathroom residence presents a confident reimagining of mid-century character, evolved for contemporary family living.
From its established gardens and treehouse to sun-drenched crazy-paved terraces and carefully curated interiors, the home feels like a private sanctuary of architectural distinction and light-filled sophistication.
A glass-lined entry hall flows into a generous living and dining domain, where a soaring raked ceiling, feature brickwork and open fireplace form a composed design statement.
Walls of glazing draw natural light deep into the interior, framing outlooks to the front terrace and northeast-facing rear gardens, and reinforcing the connection between indoor spaces and the landscape beyond.
Multiple sliding doors open to a terrace suited to a fire-pit setting, while beyond, the swimming pool and adjoining deck create a relaxed outdoor environment for entertaining, gathering and family time.
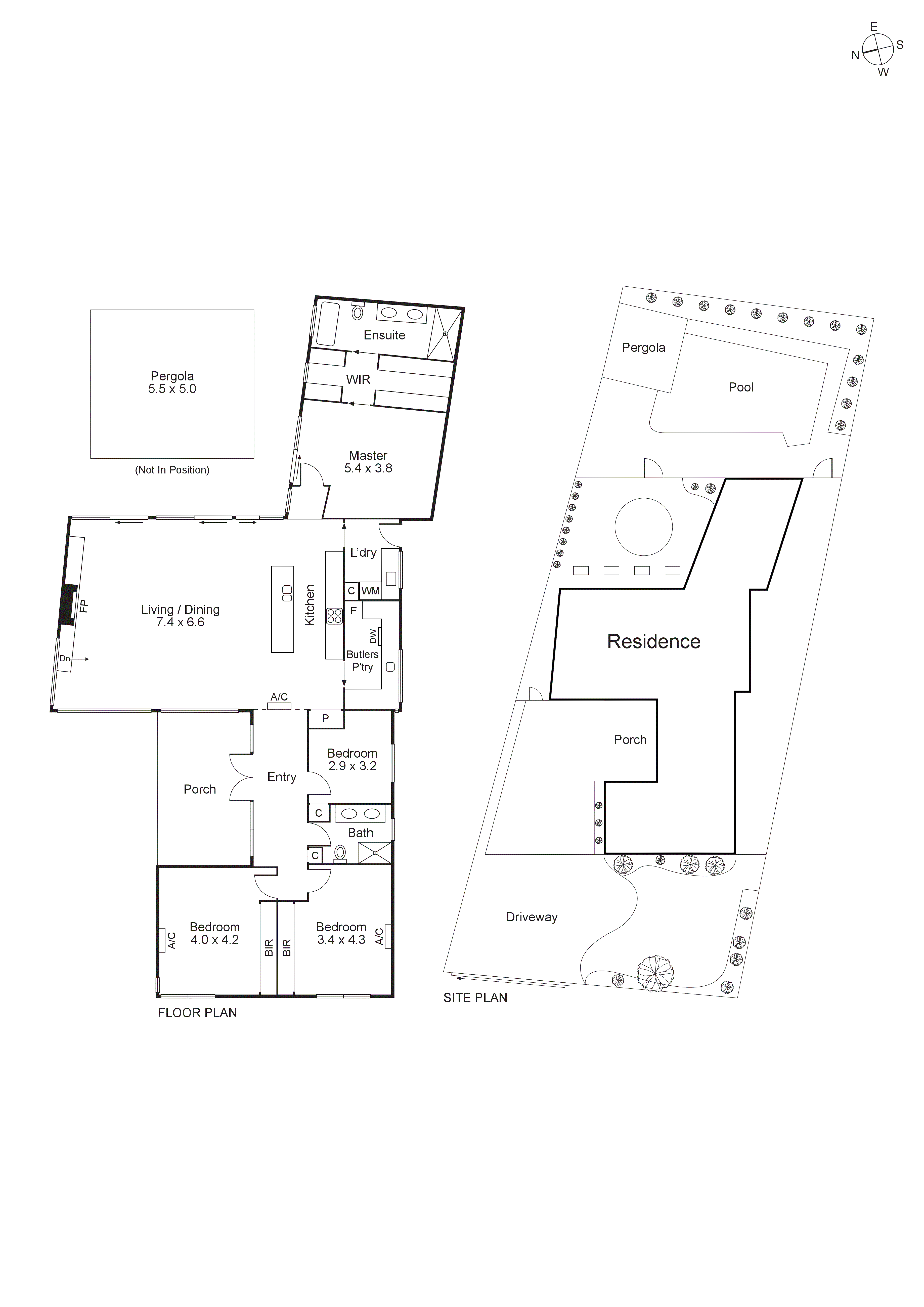
The kitchen is sleek, streamlined and effortlessly functional, featuring stone benchtops, Westinghouse appliances including an induction cooktop, oven and dishwasher, a substantial waterfall island and a generous butler’s pantry.
Accommodation is arranged for privacy, with three bedrooms at the front of the home, two with built-in robes, serviced by a well-appointed bathroom with dual vanities. Quietly set to the rear, the main suite enjoys northern light, a walk-in robe, fully tiled twin vanity ensuite and sliding doors opening directly to the garden.
Timber floors, a fitted laundry, split-system heating and cooling to the living domain and three bedrooms, along with abundant off-street parking, complete the offering.
Within strolling distance of Seaview Village, Mentone Girls’ Secondary College, local primary schools, bus services and Royal Melbourne Golf Club, and zoned for Beaumaris Secondary College, the home also enjoys proximity to parklands, shopping and dining precincts, transport options and the beach.
For more information about this beautiful indoor-outdoor entertainer contact Romana Altman or Louise Herterich at Buxton Sandringham.