A strong architectural presence and interior dimensions of genuine scale distinguish this substantial five bedroom, two bathroom plus study residence, set beyond a high timber fence and automated...
A strong architectural presence and interior dimensions of genuine scale distinguish this substantial five bedroom, two bathroom plus study residence, set beyond a high timber fence and automated gate.
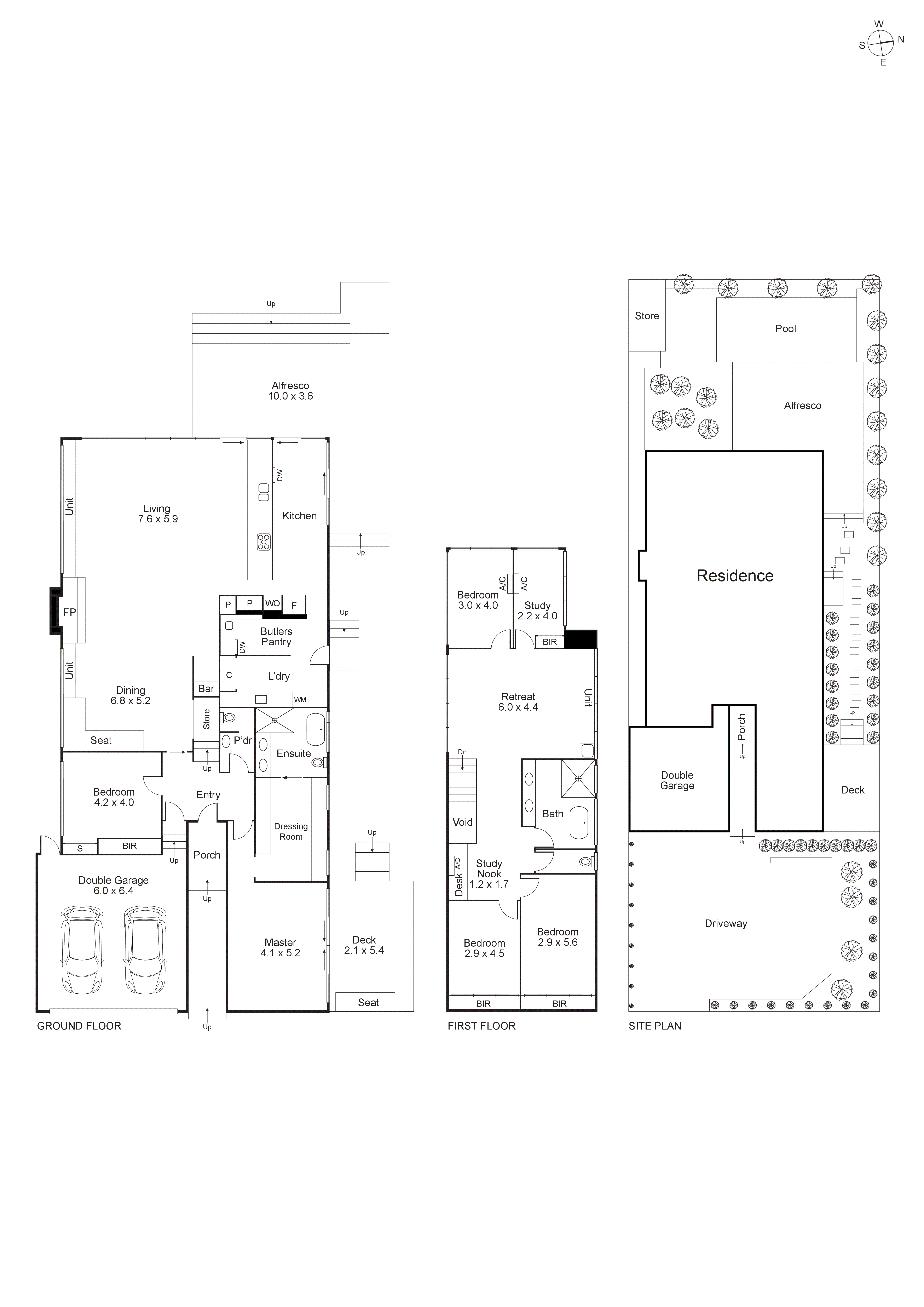
A covered timber walkway leads to the entrance, creating a measured sense of arrival and hinting at the generosity within. Warm timber floors introduce interiors where expansive glazing brings natural light across a series of large, well-zoned living spaces.
The free-flowing living and dining domain is notably lavish in size, allowing the space to function effortlessly for both entertaining and everyday family life. Anchored by a fireplace, the living and dining domain is framed by bespoke joinery, including banquette seating within the dining area, while plantation shutters add refinement and carefully integrated storage maintains a clean, uncluttered aesthetic.
A fitted bar sits between the living and dining zone and the kitchen, creating an easy transition between spaces and elevating the home’s entertaining capability.
The kitchen itself is expansive and assured, lavishly appointed with stone benchtops, Smeg appliances including dual ovens and a 5-burner gas cooktop, Fisher & Paykel dishwasher, a vast breakfast bar and a storage-rich butler’s pantry with Bosch dishwasher.
Full-height glass sliders extend the interiors to a wraparound deck with covered al fresco entertaining featuring electric heaters, overlooking the solar heated swimming pool, terrace and lush, low-maintenance gardens. Outdoor zones mirror the interior, with multiple settings for relaxing.
The ground floor main suite is indulgent and quietly-set, featuring an exquisite dressing room, a luxurious fully tiled ensuite with twin vanities and deep soaker tub, and north-facing sliders opening to a private deck. An additional ground floor bedroom provides flexibility, complemented by a bold powder room.
Upstairs, a sun-filled retreat with ceiling fan and kitchenette provides a genuine second living zone, accompanied by three additional bedrooms with robes. A study, study nook, fully tiled family bathroom with dual vanities, and a powder room complete the level.
Additional features include video intercom security, ducted heating and air conditioning, a large laundry incorporating a Robinhood ironing system, 13 KW solar panels with Tesla battery, and an oversized double garage with internal and rear access.
In a prized beachside pocket near Banksia Reserve, the home is within easy reach of local schools, village shopping and dining, bus services, and the beach, with zoning for Beaumaris Secondary College and Mentone Girls’ Secondary College.
For more information about this impressive poolside entertainer contact Romana Altman or Louise Herterich at Buxton Sandringham.
