Completely reimagined from front to back, this home delivers the rare combination of as-new designer finishes, a genuinely functional family floorplan and next-level indoor-outdoor entertaining - all...
Completely reimagined from front to back, this home delivers the rare combination of as-new designer finishes, a genuinely functional family floorplan and next-level indoor-outdoor entertaining - all wrapped in the unbeatable Williamstown lifestyle.
Behind its crisp weatherboard façade, you’ll discover a home where every surface, fixture and detail has been thoughtfully finished to create effortless modern living.
A standout feature is the flexibility of the layout, ideal for families, professionals who work from home, or anyone who simply wants space to host without compromise.
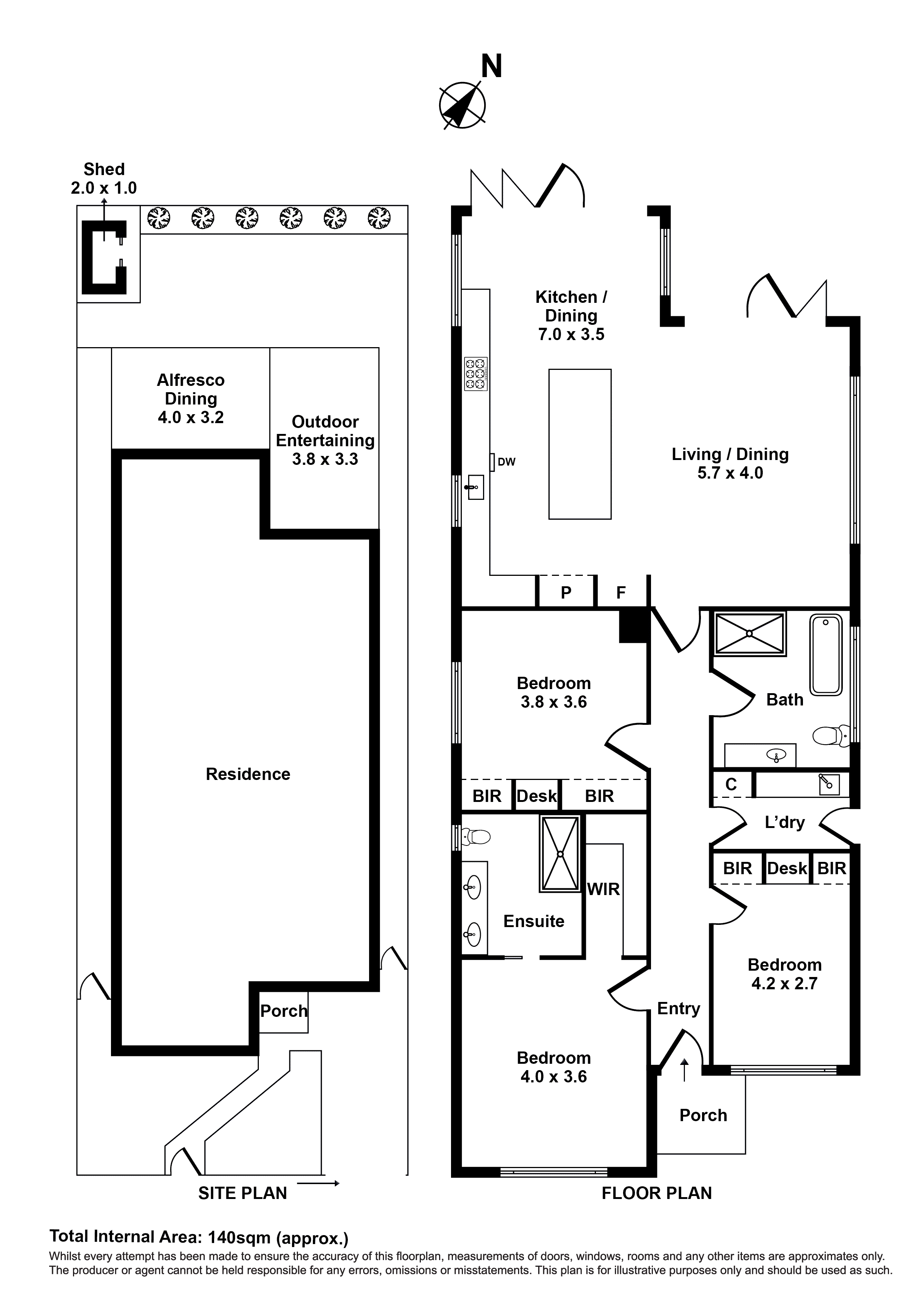
The home opens to a light-filled kitchen/dining domain centred around a statement stone island, quality appliances and excellent storage, all wrapped in a sleek palette of white cabinetry, black accents and warm timber highlights.
The outdoor living is truly exceptional. Designed for year-round enjoyment, the home extends to a superb covered alfresco dining area plus an additional outdoor entertaining deck that soaks up the west-facing rear aspect - perfect for golden afternoon light, sunset drinks and long weekend lunches. The garden is low-maintenance and family-friendly with lawn space and a neat perimeter of planting, plus a handy rear shed for storage.
Accommodation is thoughtfully zoned and equally impressive, featuring three generous bedrooms, including a beautifully appointed master with walk-in robe and ensuite. The additional bedrooms are serviced by a stunning central bathroom showcasing premium finishes, including a freestanding bath and a luxe, modern aesthetic that carries the home’s design language throughout. A separate laundry with external access adds everyday practicality.
Step outside and you’re moments from everything that makes Williamstown so tightly held - cafés, restaurants, village shopping, parks and the waterfront. Spend weekends strolling along The Strand and Williamstown Beach, grabbing breakfast in Nelson Place, meeting friends at local wine bars, or enjoying the foreshore and reserves with the family. With excellent access to schools, public transport and major arterials, it’s a location that balances relaxed bayside living with easy city connectivity.
A truly turn-key opportunity in one of Melbourne’s most loved bayside suburbs - move straight in and enjoy the home, the entertaining, and the Williamstown way of life.
