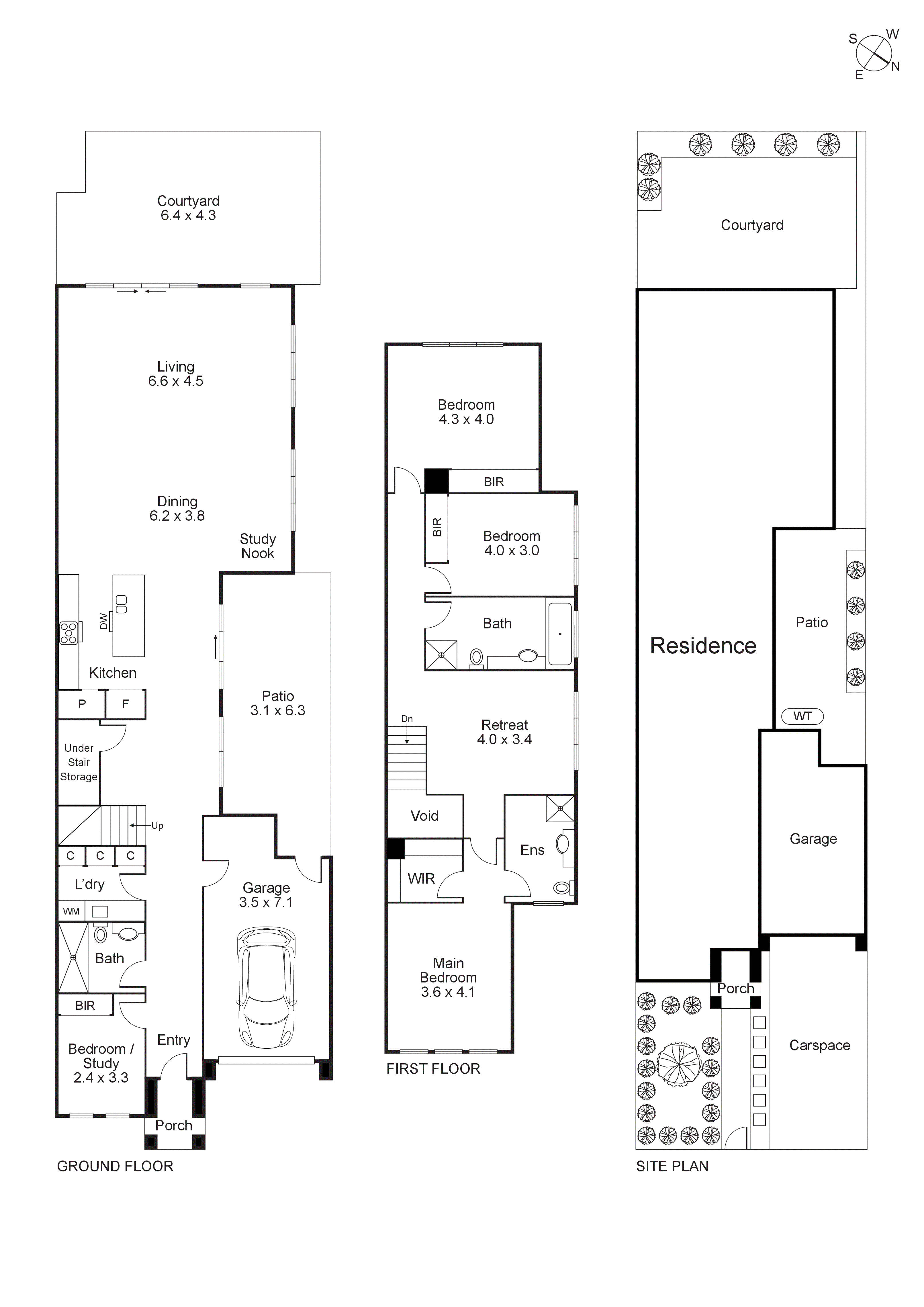
WHAT
A contemporary townhouse-style residence offering impressive scale, natural light and privacy, this four-bedroom, three-bathroom home is thoughtfully designed for modern family living and low-maintenance ease. Set across two generous levels, the layout balances open-plan living with well-zoned accommodation, enhanced by quality finishes and...
WHAT
A contemporary townhouse-style residence offering impressive scale, natural light and privacy, this four-bedroom, three-bathroom home is thoughtfully designed for modern family living and low-maintenance ease. Set across two generous levels, the layout balances open-plan living with well-zoned accommodation, enhanced by quality finishes and a strong emphasis on indoor-outdoor connection. Ideal for families, professionals or investors, it delivers flexibility, comfort and timeless modern appeal.
• Four well-proportioned bedrooms across two levels
• Three modern bathrooms including ensuite to main
• Spacious open-plan living and dining with outdoor flow
WHY
Designed for everyday comfort and effortless entertaining, the heart of the home is an expansive open-plan living and dining domain filled with natural light and complemented by warm timber flooring. Large sliding doors create a seamless transition to the private courtyard, extending the living space outdoors and making entertaining easy year-round. The sleek kitchen anchors the space with stone benchtops, a substantial island and breakfast bar seating, generous storage and quality appliances including gas cooking, all positioned to overlook the main living area. Heating and cooling ensure year-round comfort, while thoughtful inclusions such as a secure garage with internal access, separate laundry and additional bathroom enhance everyday functionality.
• Stone-bench kitchen with island, storage and gas cooking
• Heating and cooling for year-round comfort
• Secure remote garage with internal access
WHERE
Positioned for lifestyle and convenience within a sought-after Bayside surburb, this home enjoys easy access to Southland’s premium shopping and dining precinct, local parklands and public transport. Zoned for sought-after schools and moments from Southland Station, it offers a connected bayside-adjacent lifestyle with everyday amenities close at hand.
• Close to Southland Shopping Centre & dining
• Near Sir William Fry Reserve & parklands
• Zoned to Cheltenham Secondary & Le Page Primary