Soaring high above the streetscape with commanding presence and impressive proportions, this architect-designed residence delivers a compelling sense of scale, light and refinement across three...
Soaring high above the streetscape with commanding presence and impressive proportions, this architect-designed residence delivers a compelling sense of scale, light and refinement across three substantial levels, with the beach just around the corner.
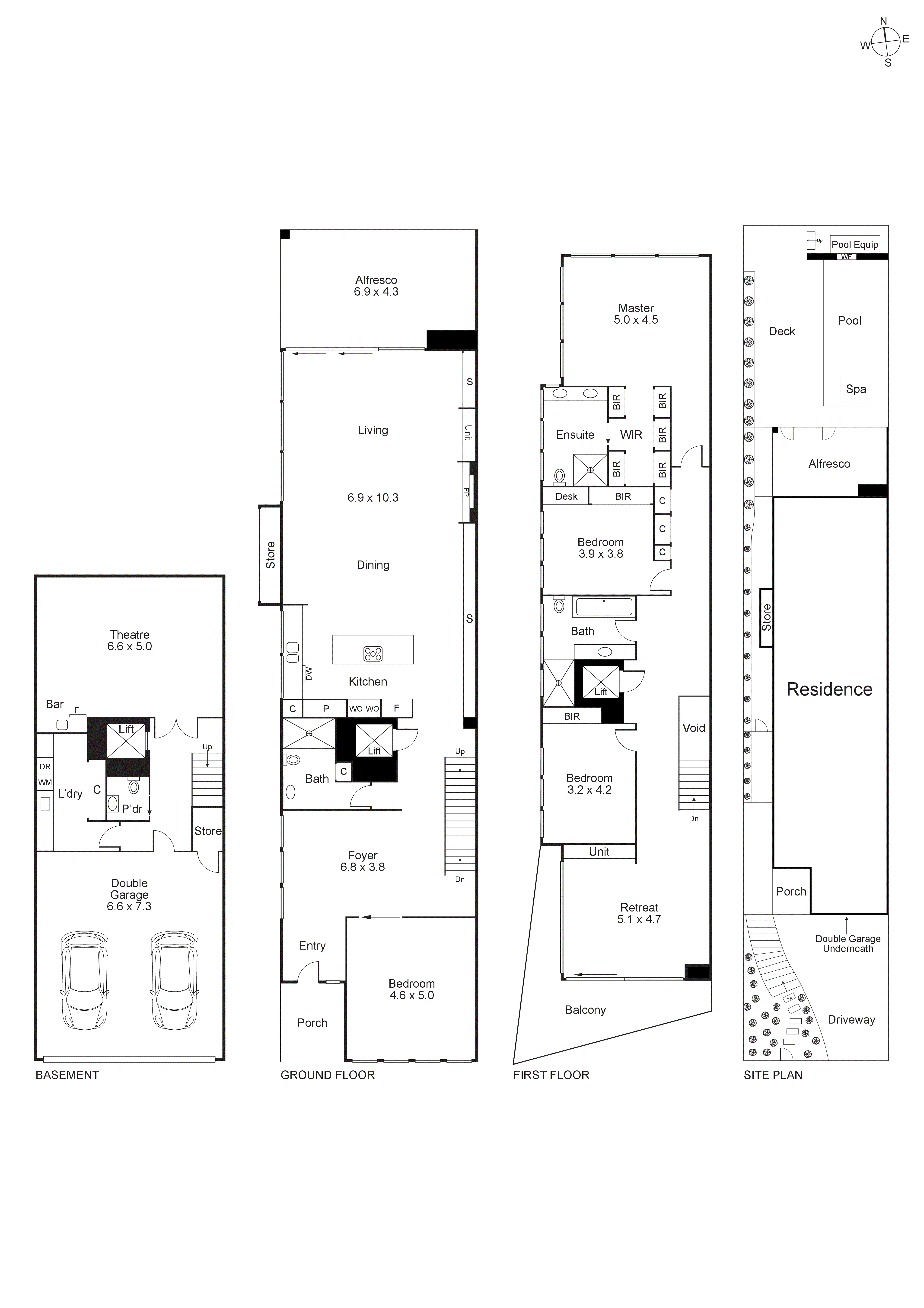
A dramatic stone-lined entrance, lofty ceilings and an oversized front door introduce interiors of immediate distinction, where richly detailed timber, bespoke joinery and a floating staircase create a confident and sophisticated arrival.
Positioned at the rear and enveloped in full-height glazing, the expansive living and dining domain, anchored by a gas fireplace, extends through floor-to-ceiling stacker sliders to a louvred al fresco terrace, poolside deck, and glistening pool and spa, forming a private north-facing oasis perfect for relaxation.
The kitchen is both visually striking and effortlessly functional, appointed with premium Miele appliances including dual ovens, a microwave, dishwasher and 5-burner gas cooktop, alongside a bold material palette across the cabinetry, benchtops and waterfall island, all complemented by a Zip HydroTap and seamless storage.
Upstairs, a sizeable retreat opens to a balcony where treetop vistas stretch across the neighbourhood, with the bay subtly revealed beyond. The main suite is calm and substantial, complete with ceiling fan, a custom dressing room and a twin-vanity ensuite with heated towel rails.
Two further bedrooms on this level enjoy built-in robes, one with a fitted desk, and share a sleek central bathroom, while a beautifully composed ground-floor bedroom is supported by a chic bathroom.
The basement level adds another dimension, incorporating a fully equipped cinema room with kitchenette, a powder room, expansive laundry and direct access to the auto double garage.
Additional highlights include a lift that provides effortless access to all levels, plantation shutters throughout first-floor bedrooms and bathrooms, individual climate control, in-floor heating to the bathrooms, ducted vacuuming and a security system.
Set in a privileged beachside pocket with Donald McDonald Reserve at the end of the street, zoning for Beaumaris Secondary, Black Rock Primary and Mentone Girls’ Secondary College, with bus services and both Black Rock Village and the Concourse all within easy reach.
For more information about this sanctuary of beachside sophistication contact Romana Altman or Louise Herterich at Buxton Sandringham.
