Wrap yourself in open space and be rapt in the peace, privacy and prestige living!
Hidden quietly to the rear of this trio of substantial two-storey residences, this four bedroom, 3.5 bathroom home is set to surprise with an accommodating dual-suite, dual-zone design ...and open space on three sides! Opposite the fairways of Huntingdale Golf...
Wrap yourself in open space and be rapt in the peace, privacy and prestige living!
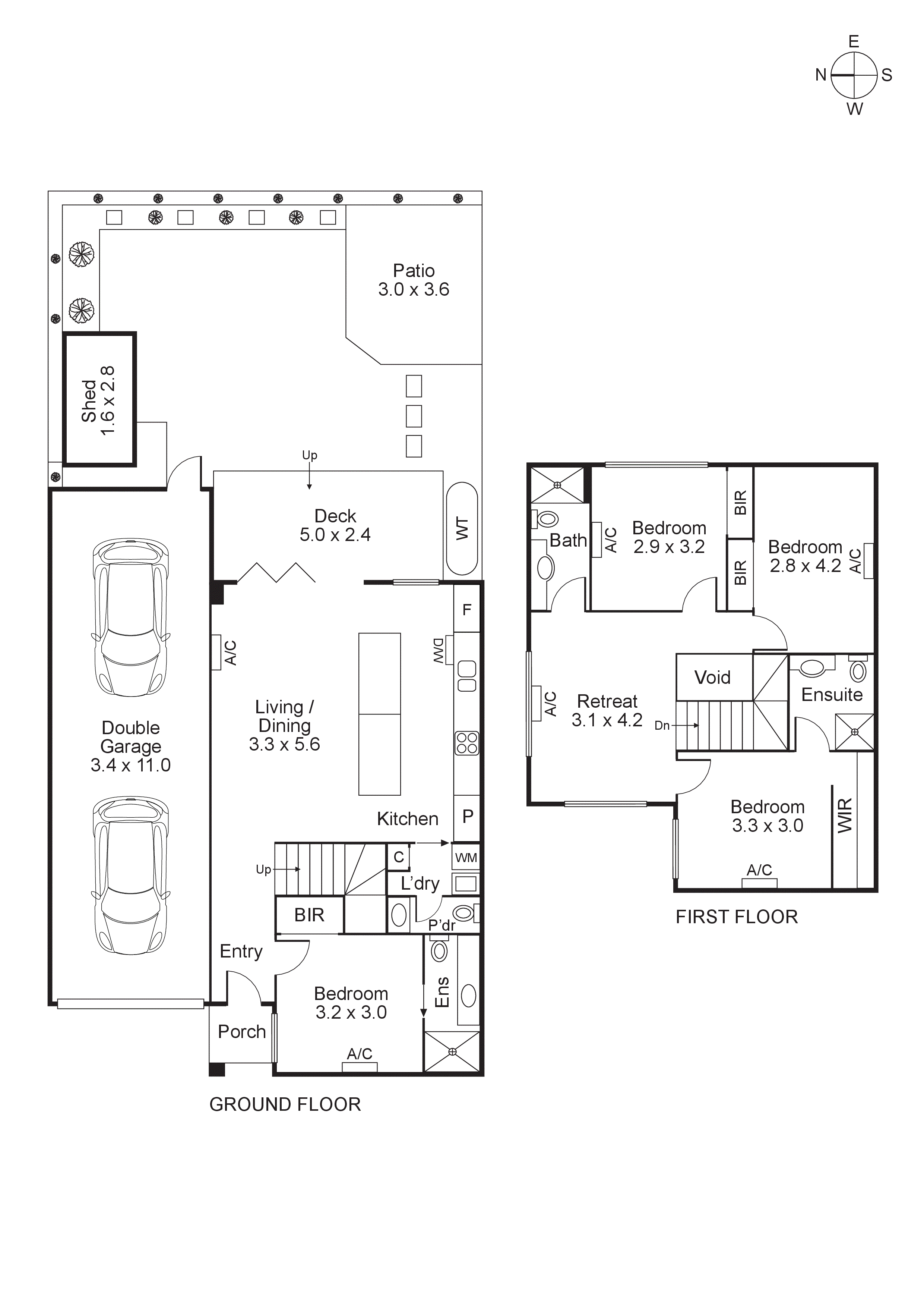
Hidden quietly to the rear of this trio of substantial two-storey residences, this four bedroom, 3.5 bathroom home is set to surprise with an accommodating dual-suite, dual-zone design ...and open space on three sides! Opposite the fairways of Huntingdale Golf Course, with the bushland of Davies Reserve right alongside and a borrowed landscape of tall gums behind, this prestige homes offers lush outlooks at every turn.
With a bushland backdrop for ground-floor living-dining and a second living zone high in the treetops, this accommodating design has an equal choice of master-suite on each level - each with its own private ensuite and walk-in robe. Prestige-appointed with a full complement of Smeg appliances (including six-burner gas-cooktop) for the kitchen, this inviting rear home is styled for an entertainers’ lifestyle with a tiered dining-bench extending entertaining options and a well-positioned stone-finished laundry to customise with a butler’s pantry.
Styled with marbleised stone benchtops, Scandi-style Oak floors, and fully-tiled designer bathrooms, this high-quality home is climate-controlled by individual reverse-cycle air-conditioning to every room. Stepping out to an entertainers’ deck, broad lawns and the borrowed landscape beyond, there’s even bonus car accommodation in a deep 2 car auto-garage.
Secluded, but so accessible, within a walk of Huntingdale station and Primary School, this tranquil, well-treed position is also surprisingly close to it all. With a choice of vibrant hospitality precinct at Oakleigh or Clayton almost equally close, this hidden surprise package has Chadstone shopping centre within minutes, and both campuses of Monash University within easy reach by public transport. For further information on this bushland-wrapped rear home contact Melissa Hetherington at Buxton Glen Eira on 0432 935 111. ALL ENQUIRIES MUST INCLUDE A CONTACT NUMBER.