With a seamless blend of convenience, sunsets, practicality and style this premium apartment offers a lifestyle few get to experience. One of only four and north facing and full of natural light, generous sized indoor and outdoor living areas and spacious bedrooms. A modern kitchen, complemented by a butler’s pantry/laundry with ample storage,...
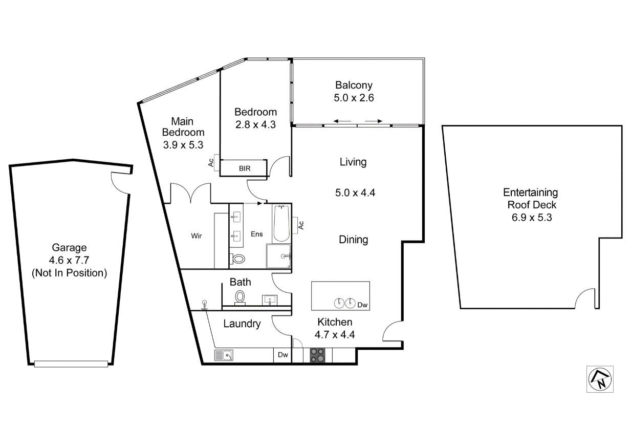
With a seamless blend of convenience, sunsets, practicality and style this premium apartment offers a lifestyle few get to experience. One of only four and north facing and full of natural light, generous sized indoor and outdoor living areas and spacious bedrooms. A modern kitchen, complemented by a butler’s pantry/laundry with ample storage, together with an over sized remote 1.5 lock up garage and lift accessed internally. Spacious and welcoming, take the stairs - or lift - to your new home on the second level. Upon entry, the open floor plan provides an unobstructed view from fabulous kitchen with integrated appliances, to an oversize sunlit terrace with a retractable shade roof. With an adjoining walk-in robe, and separate ensuite with bath, the main bedroom is light and bright, fitted out with custom built windows and drapes. Similarly, the second bedroom provides a comfortable and stylish space, with built in robes, wall to ceiling windows and door providing access to the balcony. Like the ensuite, the main bathroom is modern, well-built and fitted out with quality tapware and a frameless shower screen. For entertaining or simply a typical way to finish your day, take the stairs to your private rooftop. With its expansive beach bay and coastal views, you will have one of the best locations to experience magnificent Black Rock sunsets. Pop into one of the numerous restaurants or cafes, which are just metres away as is the beach plus walking and cycling tracks. Yacht clubs, playgrounds, quality schools and public transport are all close, enabling you to enjoy all this wonderful community has to offer. Inspections are sure to impress!.