Inspect by Appointment Only. Graciously verandaed, beautifully styled and set in approx. 673 sqm park-like grounds, this is pretty perfect Bayside family living. One of the original landholding...
Sharing Listing
B
3
b
1
C
3
673 m²
Buxton Sandringham
11 Bay Road,
SANDRINGHAM VIC
3191
Inspect by Appointment Only. Graciously verandaed, beautifully styled and set in approx. 673 sqm park-like grounds, this is pretty perfect Bayside family living. One of the original landholding...
Inspect by Appointment Only.
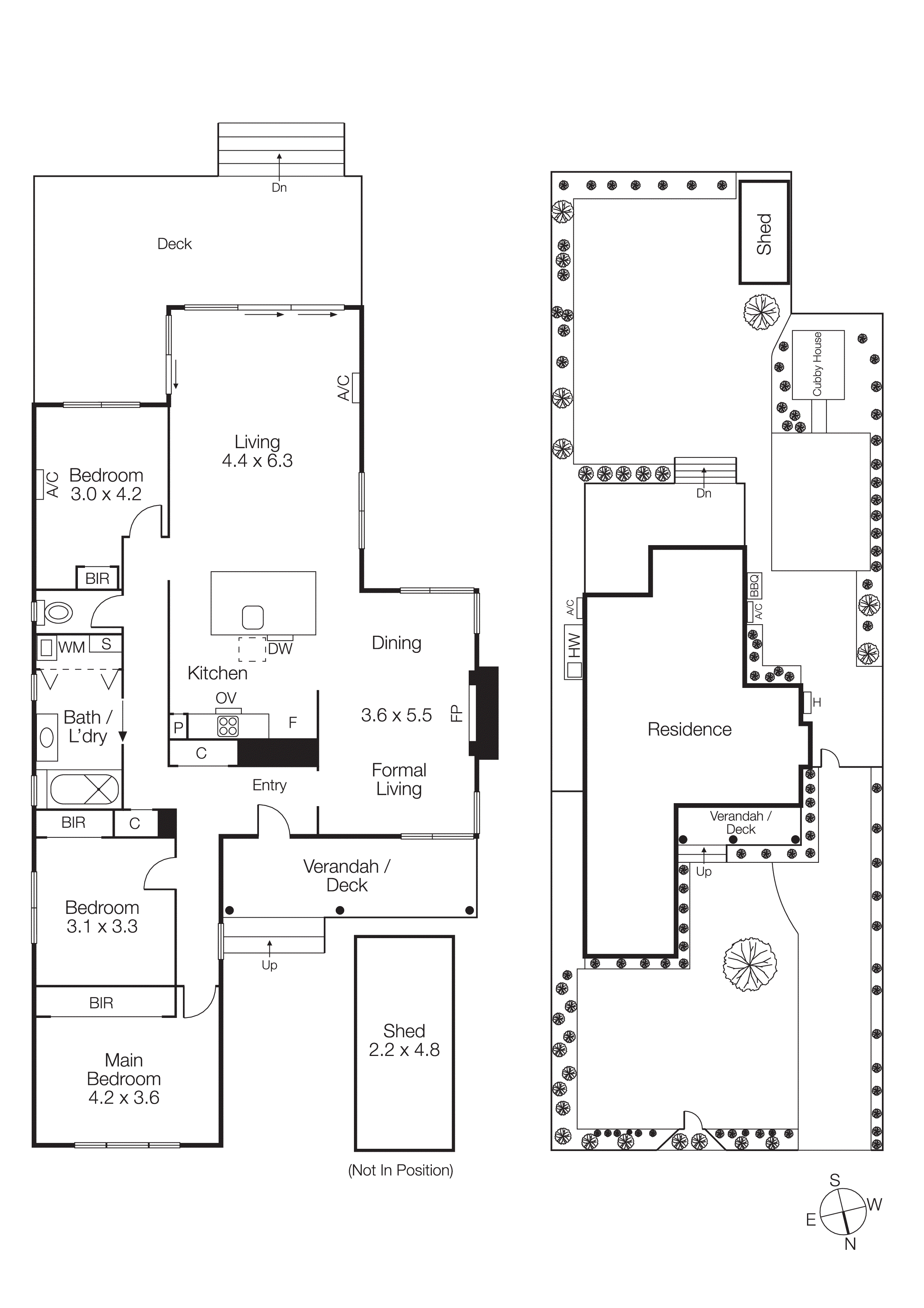
Graciously verandaed, beautifully styled and set in approx. 673 sqm park-like grounds, this is pretty perfect Bayside family living. One of the original landholding homes of the area, this terracotta-roofed, weatherboard three-bedroom beauty is opened up and styled out with an eye for coastal cool...and a feel for entertaining.
Cleverly zoned with bedrooms in a quiet side wing, this free-flowing dual zone design has a formal area to lounge and dine around a warming fire, room to relax in a window-walled family zone, full of natural light, and the perfect place to entertain beyond massive triple stacking-sliders on a wraparound deck above the broad-lawned kids’ paradise backyard. Prestige styled with a skylit Bosch appliance and stone-benchtop kitchen (with integrated dishwasher) fronted by a vast dining-bench, this gracious entertainer is luxe-detailed with a Travertine-topped vanity for the designer bathroom, and light satin-finished hardwood floors for a coastal edge.
Sparkling with designer lighting (including a ‘beach house’ chandelier) and enclosed by airy plantation shutters, this centrally heated and reverse-cycle air-conditioned home is warmed by an impressive open fireplace and secured by 2-camera CCTV. Even the full-sized family gardens are beautifully styled, with easy three-car parking in a clipped formal landscape out front, and family-wise extras including a designer cubby for the little kids and a paved bounce area for the big kids.
Almost on the border of Hampton in Bayside’s fastest-developing locale, this pretty perfect Bayside beauty is just 100m to Boss James Oval, in-Zone for Sandringham Secondary College, and minutes to Sandringham’s beachside village, Hampton’s latte strip and Highett’s restaurant and rail hub...and their stations!
For more information about this beautiful Bayside home, contact Peter Hickey or Stefan Delyster at Buxton Sandringham.
Inspect by Appointment Only.
Graciously verandaed, beautifully styled and set in approx. 673 sqm park-like grounds, this is pretty perfect Bayside family living. One of the original landholding homes of the area, this terracotta-roofed, weatherboard three-bedroom beauty is opened up and styled out with an eye for coastal cool...and a feel for...
Inspect by Appointment Only.
Graciously verandaed, beautifully styled and set in approx. 673 sqm park-like grounds, this is pretty perfect Bayside family living. One of the original landholding homes of the area, this terracotta-roofed, weatherboard three-bedroom beauty is opened up and styled out with an eye for coastal cool...and a feel for entertaining.
Cleverly zoned with bedrooms in a quiet side wing, this free-flowing dual zone design has a formal area to lounge and dine around a warming fire, room to relax in a window-walled family zone, full of natural light, and the perfect place to entertain beyond massive triple stacking-sliders on a wraparound deck above the broad-lawned kids’ paradise backyard. Prestige styled with a skylit Bosch appliance and stone-benchtop kitchen (with integrated dishwasher) fronted by a vast dining-bench, this gracious entertainer is luxe-detailed with a Travertine-topped vanity for the designer bathroom, and light satin-finished hardwood floors for a coastal edge.
Sparkling with designer lighting (including a ‘beach house’ chandelier) and enclosed by airy plantation shutters, this centrally heated and reverse-cycle air-conditioned home is warmed by an impressive open fireplace and secured by 2-camera CCTV. Even the full-sized family gardens are beautifully styled, with easy three-car parking in a clipped formal landscape out front, and family-wise extras including a designer cubby for the little kids and a paved bounce area for the big kids.
Almost on the border of Hampton in Bayside’s fastest-developing locale, this pretty perfect Bayside beauty is just 100m to Boss James Oval, in-Zone for Sandringham Secondary College, and minutes to Sandringham’s beachside village, Hampton’s latte strip and Highett’s restaurant and rail hub...and their stations!
For more information about this beautiful Bayside home, contact Peter Hickey or Stefan Delyster at Buxton Sandringham.
Buxton Sandringham
11 Bay Road,
SANDRINGHAM VIC
3191
We'll give you a clear, honest assessment based on real market insights, so you can make informed decisions with confidence.
Local knowledge. Proven results. Trusted advice.
