High walls establish complete privacy, opening on to a secluded garden landscape where lush hedging, mature trees and manicured lawn creating an unexpected sense of retreat. Stepping stones set within the greenery guide the approach, establishing the quiet calm that defines the home beyond.
Northern light fills the ground-floor living and dining...
High walls establish complete privacy, opening on to a secluded garden landscape where lush hedging, mature trees and manicured lawn creating an unexpected sense of retreat. Stepping stones set within the greenery guide the approach, establishing the quiet calm that defines the home beyond.
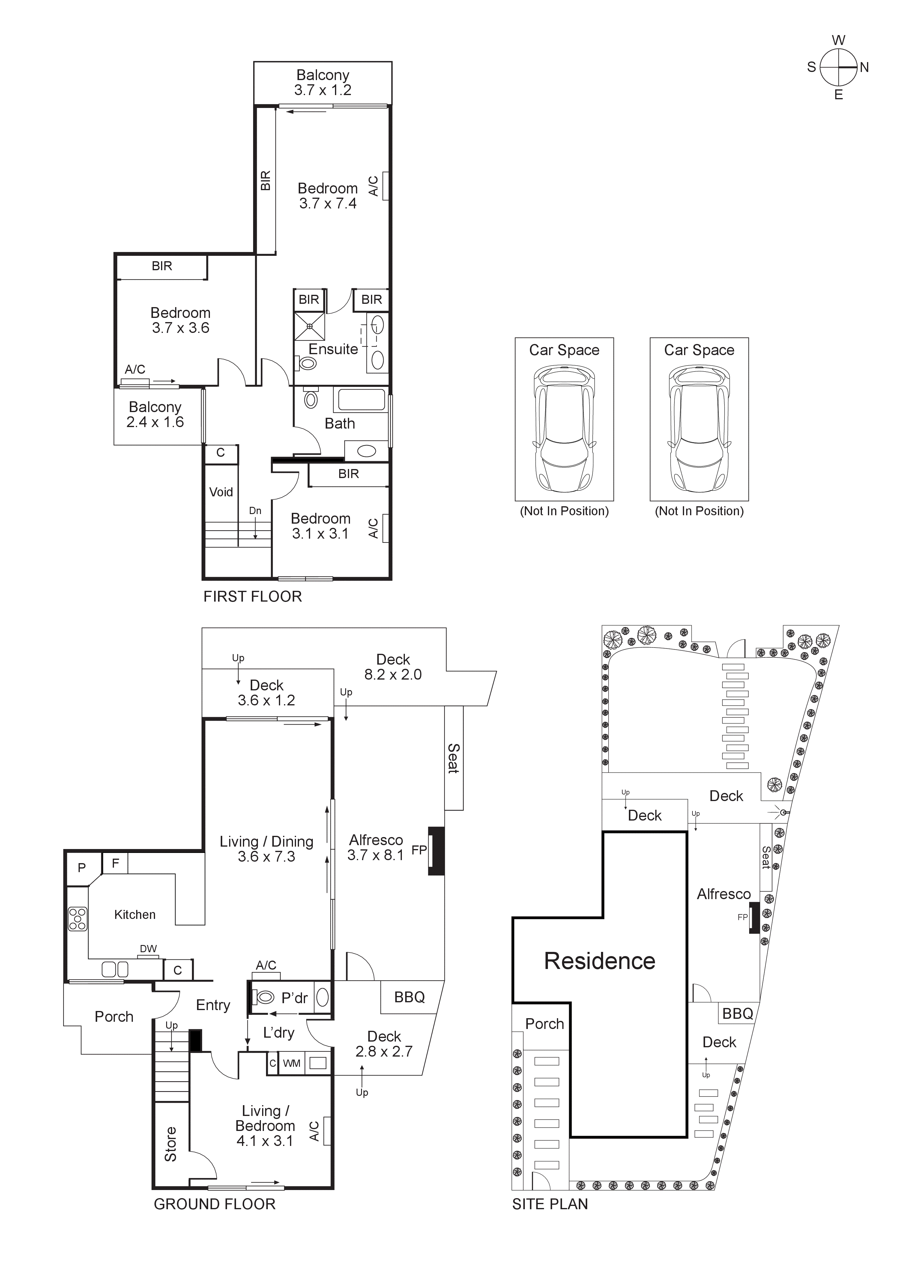
Northern light fills the ground-floor living and dining domain, where wide timber floors and expansive glazing draw the garden into view. Expansive sliders retract to extend the interior outward to a vine-draped entertaining deck, where climbing greenery softens the architectural lines.
Designed for year-round gatherings, the al fresco setting incorporates a built-in Beefeater barbecue, integrated bench seating and a substantial outdoor fireplace set within concrete surrounds. The result is a space equally suited to long summer lunches and cooler evenings by the fire.
The kitchen is streamlined and effortlessly functional. Stone benchtops wrap around a breakfast bar, while a Smeg 5-burner freestanding cooker, Miele dishwasher and extensive cabinetry provide a practical foundations for daily living and entertaining.
Upstairs, the main suite occupies the front of the home, where custom cabinetry and a fully tiled twin-vanity ensuite accompany a private balcony capturing sweeping views across the bay. Two additional bedrooms with mirrored robes share a sleek central bathroom, with one extending to its own balcony.
At ground level, a fourth bedroom with storage and direct outdoor access introduces further flexibility, equally suited as a second living area.
Additional appointments include video intercom, individual climate control, ducted heating, powder room, full laundry and secure electric gate entry via Middleton Street to a double carport.
Across from Half Moon Bay, life moves easily from early swims and foreshore walks to village cafes, restaurants and shops, while surrounding parklands, golf courses, transport and excellent local schools reinforce the appeal of this privileged beachfront home.
For more information about this beachfront sanctuary contact Romana Altman or Louise Herterich at Buxton Sandringham.