'Plans & Permits approved for two townhouses’
Cul-de-sacs don't get much quieter, and this single-level home tucked at the end of Reid Court occupies approximately 633sqm with more than one way to make it work for you. You could renovate and extend what's here or explore the possibility of building one or two new homes on the site (STCA).
At...
'Plans & Permits approved for two townhouses’
Cul-de-sacs don't get much quieter, and this single-level home tucked at the end of Reid Court occupies approximately 633sqm with more than one way to make it work for you. You could renovate and extend what's here or explore the possibility of building one or two new homes on the site (STCA).
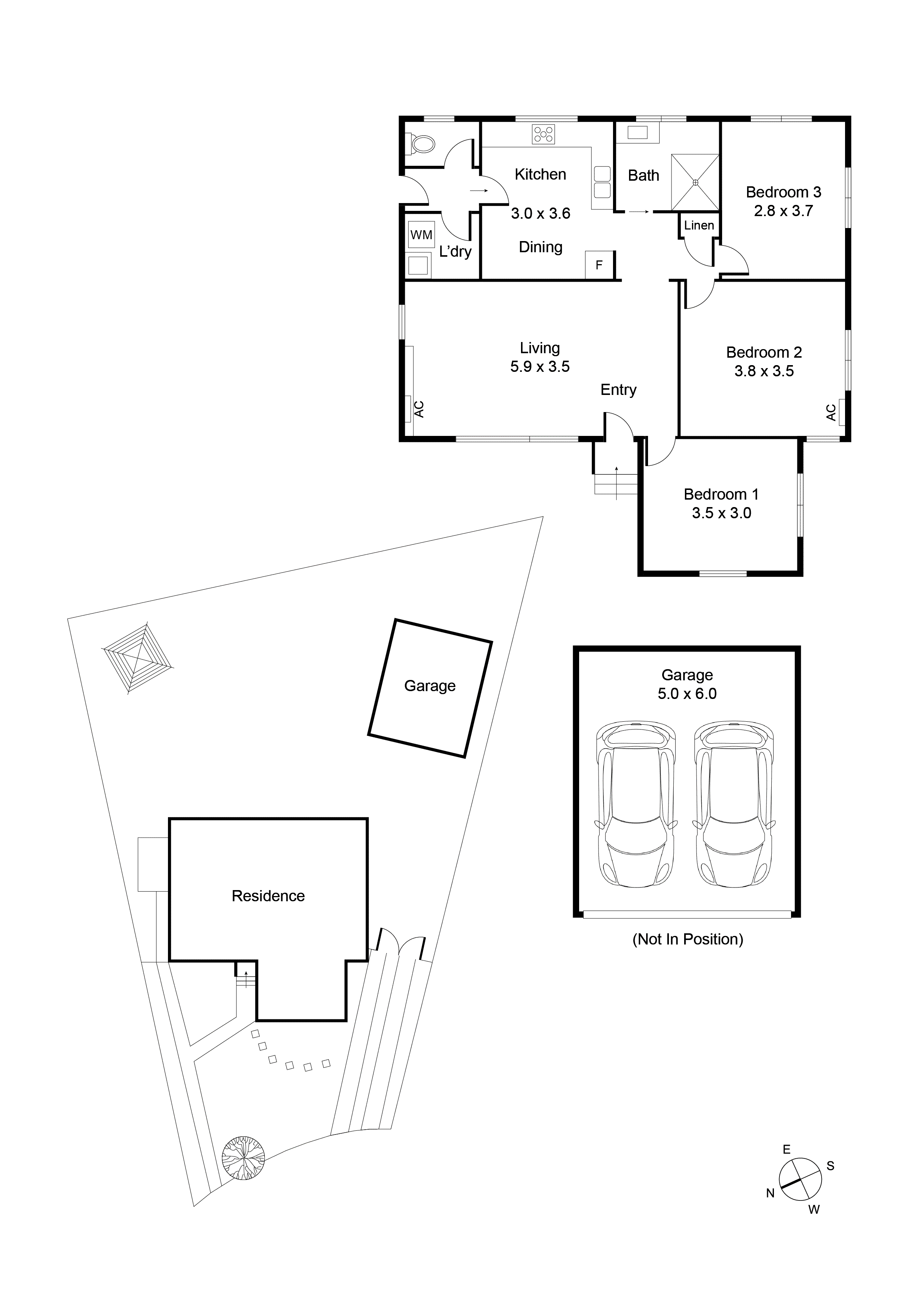
At the front, the lounge room is a bright everyday space with timber floors and a split-system air conditioner. It opens through to the meals area and kitchen with a freestanding oven. Ducted heating runs throughout, with ceiling fans in the living room and two of the three bedrooms. The main bedroom has its own split-system as well. The bathroom has been updated with a modern shower, while a separate toilet and laundry sit off the rear hallway.
Out back, the yard stretches generously across the full width of the block. There’s plenty of room for kids, a garden, or the longer-term thinking that an allotment this size tends to invite. A two-car steel shed handles storage, hobbies or workshop use, and a covered verandah along the side of the home gives you a sheltered spot year-round.
Menzies Reserve and the Menzies Avenue shops are footsteps from the front door. Dandenong Plaza, the market, Dandenong Station, Chisholm TAFE and Dandenong Hospital are all close by, with quick access to the Monash Freeway and EastLink. Zoned for Lyndale Greens Primary School and Lyndale Secondary College.
Comfortable to live in, easy to lease, and conveniently located close to everything Dandenong has to offer.
For more information about this quiet street’s best-kept secret contact Dimitri Spanos or Sabastian Land.
ALL ENQUIRIES MUST INCLUDE A CONTACT NUMBER.