Nestled in a peaceful court setting, 15 Kelly Court, Tallarook is a remarkable lifestyle property where modern comfort meets breathtaking natural beauty. Set across approximately 45.67 picturesque...
Nestled in a peaceful court setting, 15 Kelly Court, Tallarook is a remarkable lifestyle property where modern comfort meets breathtaking natural beauty. Set across approximately 45.67 picturesque acres, with Sunday Creek gently running through the land, this private sanctuary offers space, serenity and self-sufficiency in equal measure.
From the moment you arrive, the sense of openness is undeniable. Expansive views are captured from every window, while multiple doors open seamlessly to the outdoors, inviting fresh country air and effortless indoor-outdoor living. Established gardens surround the home, adding colour, privacy and a sense of maturity to the landscape.
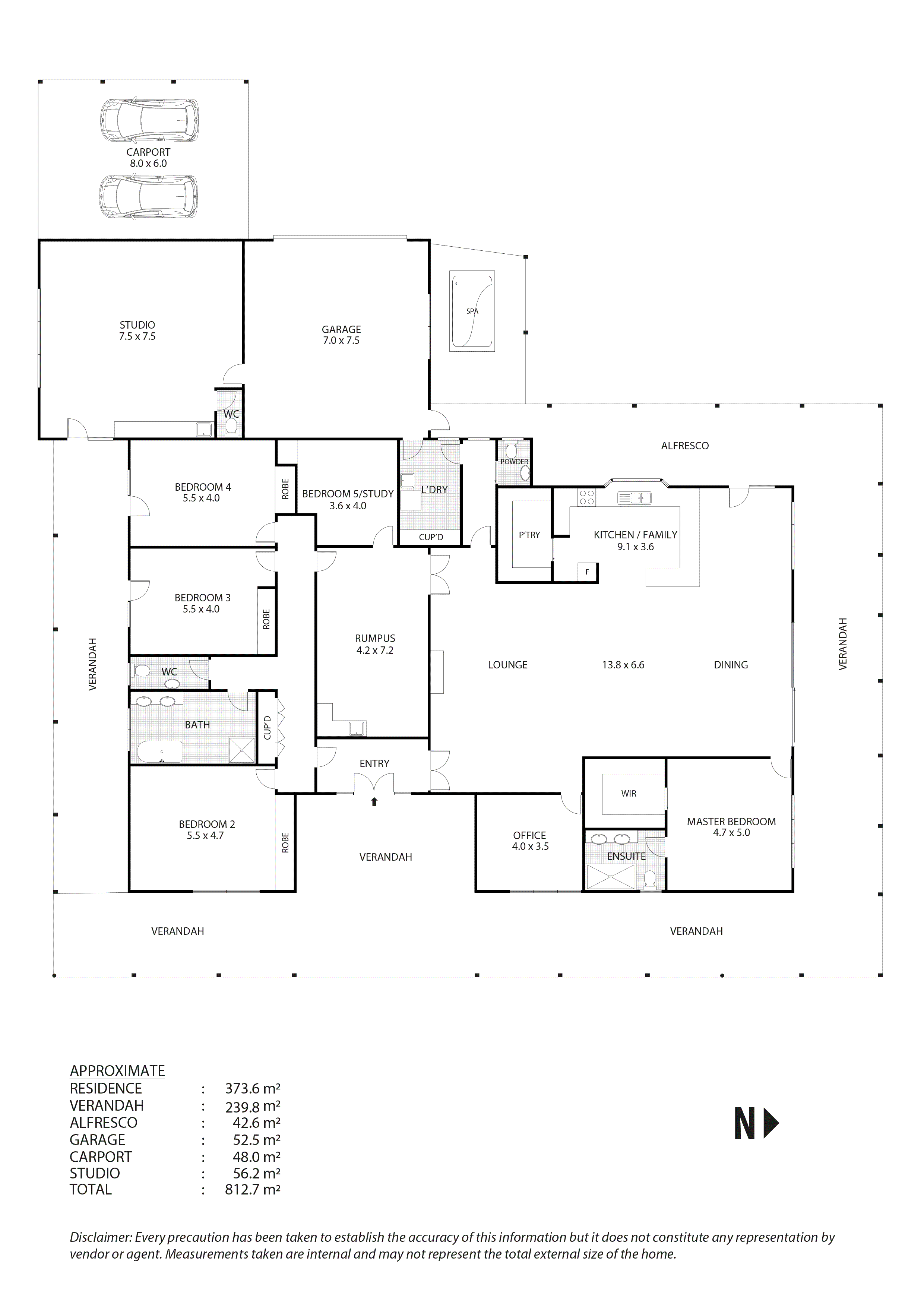
The residence, thoughtfully owner-built within the past seven years of approximately 90.5 squares, has been designed for both comfort and functionality. Multiple generous living areas provide flexibility for families of all sizes, complemented by a dedicated guest space complete with its own lounge, perfect for extended family, visitors or private retreat accommodation. A beautifully appointed main bathroom features a double vanity, while the home also includes a powder room and a third toilet, ensuring convenience throughout.
Warmth and ambience are delivered through a wood heater with a vent system that distributes heat to the opposite side of the home, creating a cosy atmosphere in the cooler months. Double-glazed windows throughout enhance energy efficiency and comfort, while split system heating and cooling, ceiling fans and electric wall heaters provide climate control year-round. Ducted vacuum and surround sound add modern practicality and entertainment appeal.
The well-equipped kitchen and living zones extend out to a spacious verandah that wraps across the front of the home and over the spa area, creating an inviting setting for entertaining or relaxing while soaking in the tranquil views. The relocatable spa, registered with council, adds a touch of luxury to everyday living.
Outdoors, the property is exceptionally well set up for rural living. Eight fenced paddocks, three dams, and a bore with a solar pump provide excellent water security. The land is supported by an impressive 120,000 litres of rainwater storage, complemented by a septic system, LPG gas connection and 2-phase power. A 5kW solar feed-in system and solar hot water with electric booster enhance sustainability, while underground power maintains the property's clean aesthetic.
Practical infrastructure continues with a carport, internal access from the laundry to the garage, a greenhouse, chicken coop, and established gardens that complete the self-sufficient lifestyle appeal.
Adding even further versatility is a separate studio featuring its own wood heater, ceiling fan, toilet and sink, an ideal space for a home business, creative retreat, guest overflow or private workspace.
Private, expansive and beautifully appointed, 15 Kelly Court presents a rare opportunity to secure an exceptional acreage property where natural beauty, thoughtful design and modern convenience combine to create an extraordinary country lifestyle.
