Built to an exacting standard and offering exceptional space, comfort and style in a truly desirable low maintenance setting, this single level townhouse is matched by a sought-after address in one of...
Sharing Listing
B 3 b 2 C 2
Buxton Hampton East
918 Nepean Highway,
HAMPTON EAST VIC
3188
Built to an exacting standard and offering exceptional space, comfort and style in a truly desirable low maintenance setting, this single level townhouse is matched by a sought-after address in one of...
Built to an exacting standard and offering exceptional space, comfort and style in a truly desirable low maintenance setting, this single level townhouse is matched by a sought-after address in one of Highett’s most prized beachside-of-the-railway pockets.
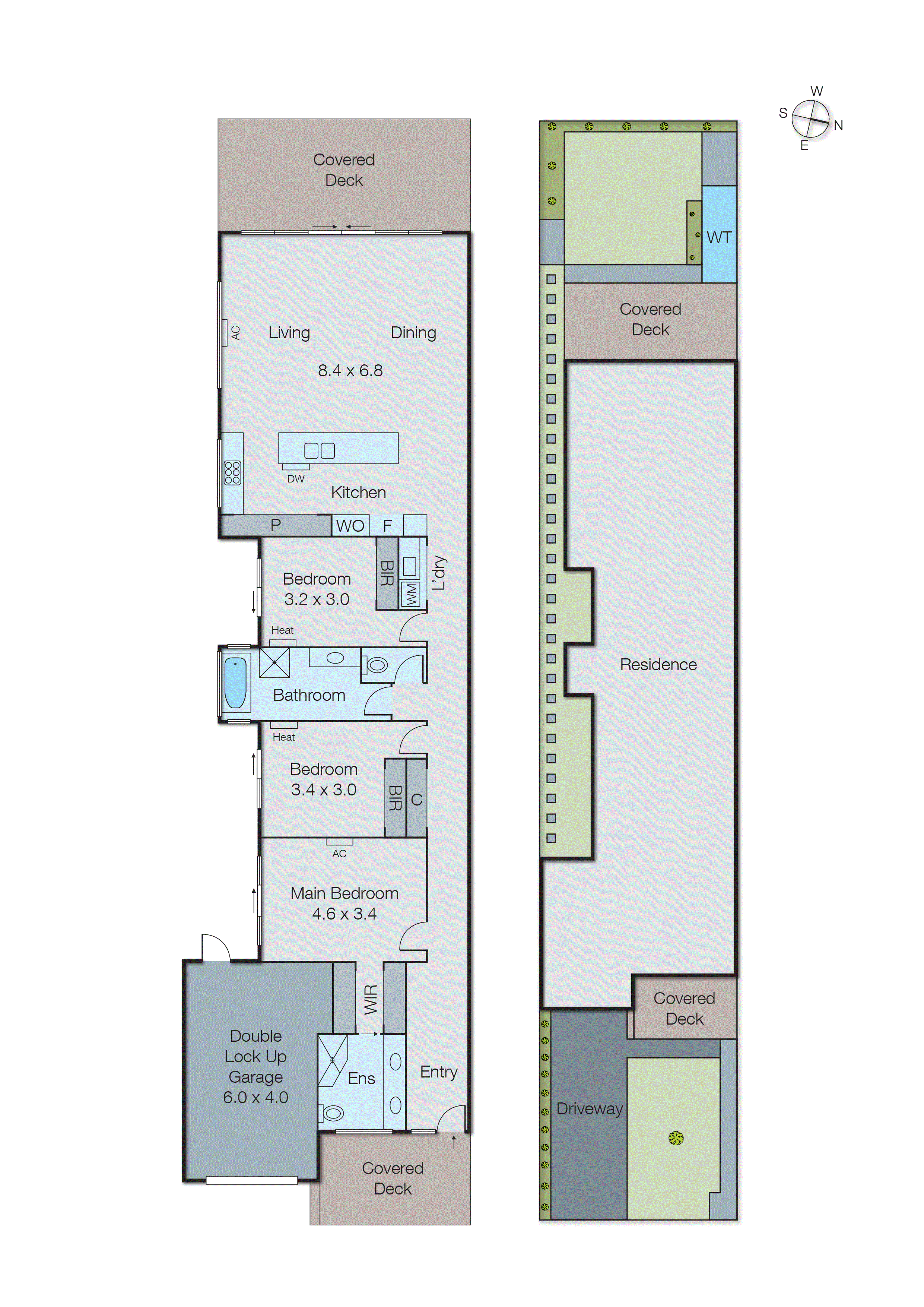
Appealing from the street with its sleek contemporary façade, the home then impresses with smartly finished interiors highlighted by lofty 3-metre ceilings and stunning polished concrete floors, which flow seamlessly throughout.
Upon entry, a long skylit hallway leads past the three spacious bedrooms; all boast fitted storage and enjoy alfresco access. The two secondary bedrooms each have panel heaters and share a designer bathroom with designated wet area, whilst the main bedroom has the luxury of a large walk-in robe and chic ensuite, along with split system heating/cooling for personalised comfort.
Unfolding at the rear of the home is a domain that will impress the most discerning of hosts. Set under a pitched ceiling with clerestory windows, the living/dining area spills seamlessly outside to an entertainer’s deck and generous yet easy-care garden for easy indoor-outdoor enjoyment, whilst the sophisticated gourmet kitchen delights with a vast waterfall-edge island and quality appliances, including a 900mm gas cooktop and semi-integrated dishwasher.
Split system heating/cooling can also be found in the main living zone – additional standout features include a European-style laundry with storage & sink, video intercom, substantial linen press, a 5000lt water tank, auto garage and additional parking on the exposed aggregate driveway.
Freshly painted and with nothing to be done, the as-new home is perfectly placed near bus stops, AF Peterson Reserve, Sandringham College and St Agnes’ Primary School. Highett’s main retail/dining strip and the station are also just moments away – as are Bayside’s beautiful beaches and leading private schooling options.
For more information about this beautifully appointed single level townhouse contact Noel Susay at Buxton Hampton East on 0450 069 506
Built to an exacting standard and offering exceptional space, comfort and style in a truly desirable low maintenance setting, this single level townhouse is matched by a sought-after address in one of Highett’s most prized beachside-of-the-railway pockets.
Appealing from the street with its sleek contemporary façade, the home then impresses with...
Built to an exacting standard and offering exceptional space, comfort and style in a truly desirable low maintenance setting, this single level townhouse is matched by a sought-after address in one of Highett’s most prized beachside-of-the-railway pockets.
Appealing from the street with its sleek contemporary façade, the home then impresses with smartly finished interiors highlighted by lofty 3-metre ceilings and stunning polished concrete floors, which flow seamlessly throughout.
Upon entry, a long skylit hallway leads past the three spacious bedrooms; all boast fitted storage and enjoy alfresco access. The two secondary bedrooms each have panel heaters and share a designer bathroom with designated wet area, whilst the main bedroom has the luxury of a large walk-in robe and chic ensuite, along with split system heating/cooling for personalised comfort.
Unfolding at the rear of the home is a domain that will impress the most discerning of hosts. Set under a pitched ceiling with clerestory windows, the living/dining area spills seamlessly outside to an entertainer’s deck and generous yet easy-care garden for easy indoor-outdoor enjoyment, whilst the sophisticated gourmet kitchen delights with a vast waterfall-edge island and quality appliances, including a 900mm gas cooktop and semi-integrated dishwasher.
Split system heating/cooling can also be found in the main living zone – additional standout features include a European-style laundry with storage & sink, video intercom, substantial linen press, a 5000lt water tank, auto garage and additional parking on the exposed aggregate driveway.
Freshly painted and with nothing to be done, the as-new home is perfectly placed near bus stops, AF Peterson Reserve, Sandringham College and St Agnes’ Primary School. Highett’s main retail/dining strip and the station are also just moments away – as are Bayside’s beautiful beaches and leading private schooling options.
For more information about this beautifully appointed single level townhouse contact Noel Susay at Buxton Hampton East on 0450 069 506
Buxton Hampton East
918 Nepean Highway,
HAMPTON EAST VIC
3188
We'll give you a clear, honest assessment based on real market insights, so you can make informed decisions with confidence.
Local knowledge. Proven results. Trusted advice.
