Offers Invited Discover an impeccably maintained family home in a coveted pocket of the leafy Landcox Park and Gardenvale Primary precinct. Built in the late 1960s on a prized 646sqm (approx)...
Sharing Listing
B
3
b
1
C
3
646 m²
Buxton Brighton
Level 1, 28 Carpenter Street,
BRIGHTON VIC
3186
Offers Invited Discover an impeccably maintained family home in a coveted pocket of the leafy Landcox Park and Gardenvale Primary precinct. Built in the late 1960s on a prized 646sqm (approx)...
Offers Invited
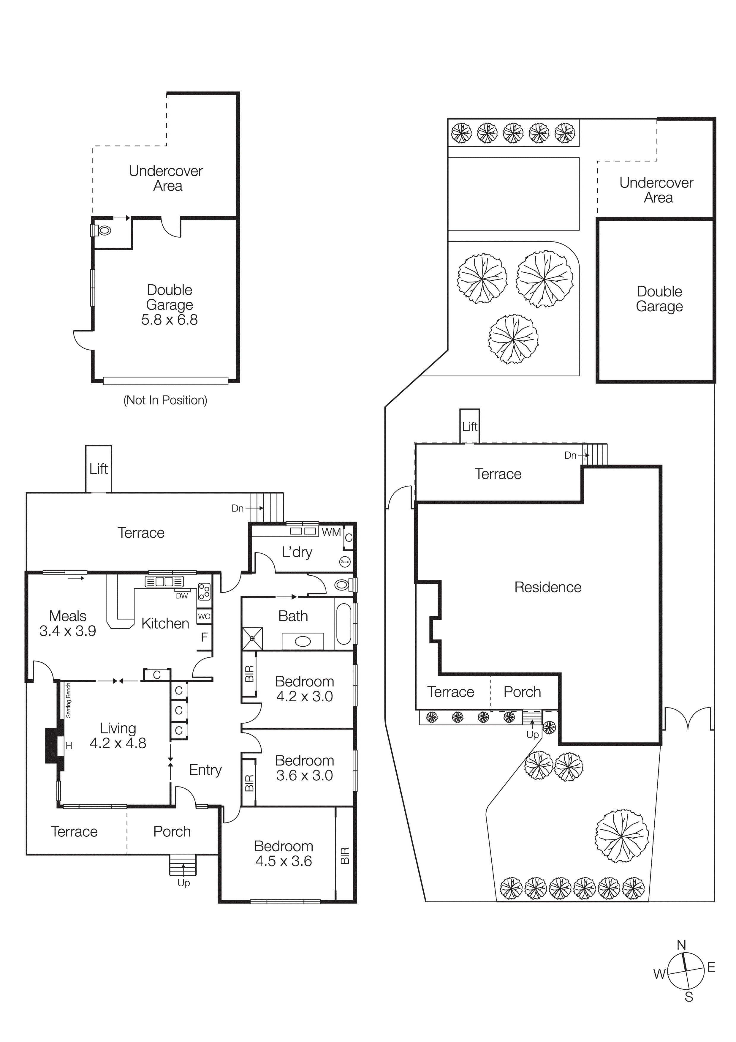
Discover an impeccably maintained family home in a coveted pocket of the leafy Landcox Park and Gardenvale Primary precinct. Built in the late 1960s on a prized 646sqm (approx) north-rear-facing block, this perfectly preserved residence offers surprisingly spacious and light-filled living with scope to renovate, extend or create one or two contemporary homes designed for lifestyle excellence (STCA).
Beyond a sweeping terrazzo porch, original features and comfortable proportions create an inviting environment ready to be enjoyed immediately or rented out while you plan your next move. Elevated to capture natural light, the immaculate lounge features a slate fireplace (not operational) and decorative ceiling, flowing to the classic timber kitchen and spacious dining area. Outside, a covered terrace overlooks a sun-soaked backyard, ideal for family play and entertaining, complemented by a up-to four-car garage and workshop.
A broad hallway leads to three generous robed bedrooms, with the main bedroom offering a full wall of mirrored robes and a peaceful garden outlook. The pristine bathroom includes a bath and separate WC, paired with a huge laundry and ducted heating and cooling to ensure all-season comfort and ease.
Whether you choose to embrace the home’s original charm now or explore its outstanding potential to renovate or extend, the opportunity is equally exciting to build one or two brand new homes on this sunlit block within the sought-after Gardenvale Primary and Brighton Secondary zone.
Close to the Landcox Park’s leafy open spaces and ornamental lake, Bliss Cafe, and Zest Foodstore, with Bay Street, fine secondary schools, transport, and the beach all within easy reach.
For more information about this outstanding opportunity please contact Halli Moore at Buxton Brighton on 0403 777 661.
Offers Invited
Discover an impeccably maintained family home in a coveted pocket of the leafy Landcox Park and Gardenvale Primary precinct. Built in the late 1960s on a prized 646sqm (approx) north-rear-facing block, this perfectly preserved residence offers surprisingly spacious and light-filled living with scope to renovate, extend or create...
Offers Invited
Discover an impeccably maintained family home in a coveted pocket of the leafy Landcox Park and Gardenvale Primary precinct. Built in the late 1960s on a prized 646sqm (approx) north-rear-facing block, this perfectly preserved residence offers surprisingly spacious and light-filled living with scope to renovate, extend or create one or two contemporary homes designed for lifestyle excellence (STCA).
Beyond a sweeping terrazzo porch, original features and comfortable proportions create an inviting environment ready to be enjoyed immediately or rented out while you plan your next move. Elevated to capture natural light, the immaculate lounge features a slate fireplace (not operational) and decorative ceiling, flowing to the classic timber kitchen and spacious dining area. Outside, a covered terrace overlooks a sun-soaked backyard, ideal for family play and entertaining, complemented by a up-to four-car garage and workshop.
A broad hallway leads to three generous robed bedrooms, with the main bedroom offering a full wall of mirrored robes and a peaceful garden outlook. The pristine bathroom includes a bath and separate WC, paired with a huge laundry and ducted heating and cooling to ensure all-season comfort and ease.
Whether you choose to embrace the home’s original charm now or explore its outstanding potential to renovate or extend, the opportunity is equally exciting to build one or two brand new homes on this sunlit block within the sought-after Gardenvale Primary and Brighton Secondary zone.
Close to the Landcox Park’s leafy open spaces and ornamental lake, Bliss Cafe, and Zest Foodstore, with Bay Street, fine secondary schools, transport, and the beach all within easy reach.
For more information about this outstanding opportunity please contact Halli Moore at Buxton Brighton on 0403 777 661.
Buxton Brighton
Level 1, 28 Carpenter Street,
BRIGHTON VIC
3186
We'll give you a clear, honest assessment based on real market insights, so you can make informed decisions with confidence.
Local knowledge. Proven results. Trusted advice.
