When location and lifestyle are non-negotiable, this stylishly reimagined residence delivers on every level in a coveted city-edge setting. Beyond its charming cottage origins, a contemporary...
Sharing Listing
Buxton Brighton
Level 1, 28 Carpenter Street,
BRIGHTON VIC
3186
When location and lifestyle are non-negotiable, this stylishly reimagined residence delivers on every level in a coveted city-edge setting. Beyond its charming cottage origins, a contemporary...
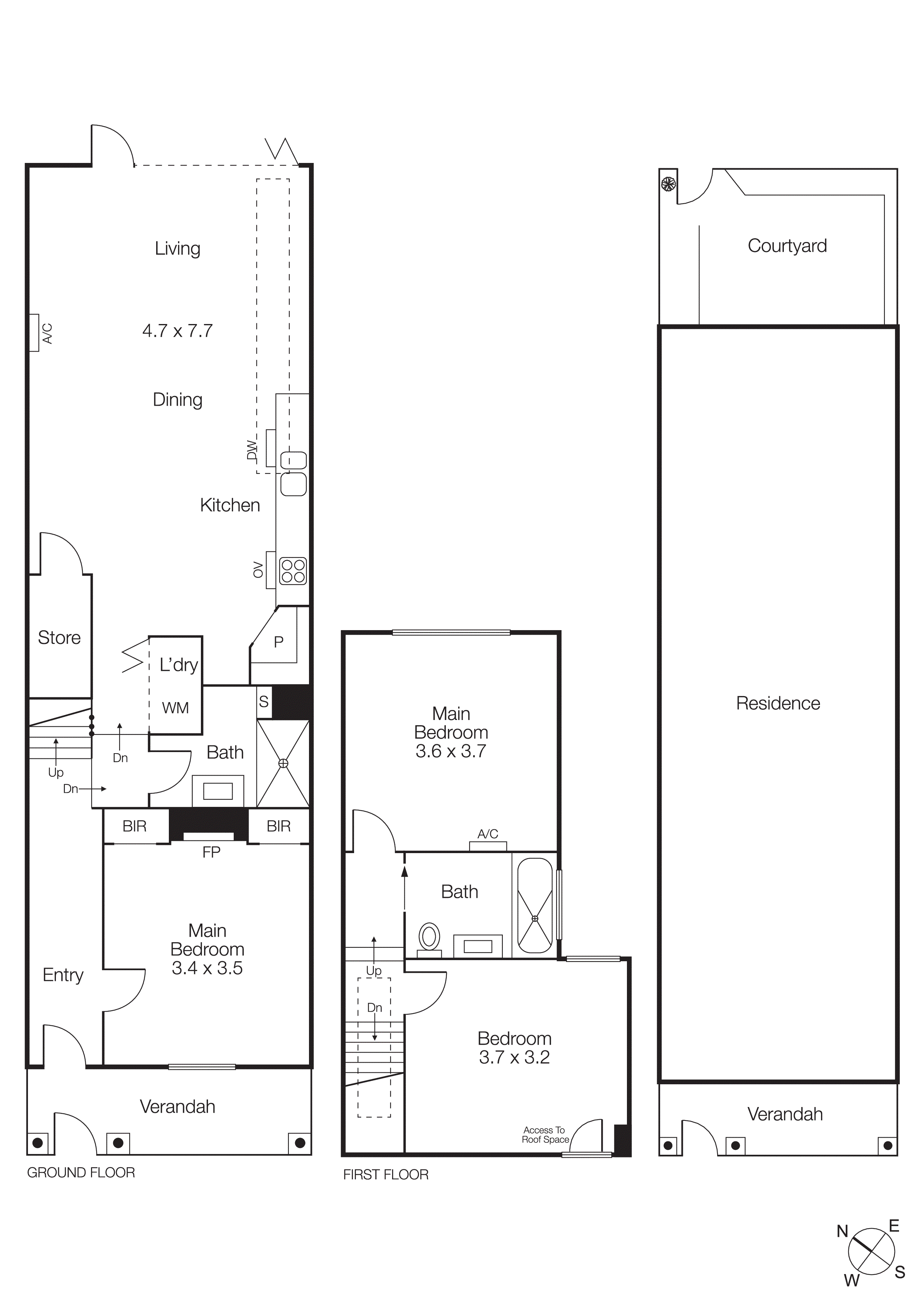
When location and lifestyle are non-negotiable, this stylishly reimagined residence delivers on every level in a coveted city-edge setting. Beyond its charming cottage origins, a contemporary renovation has introduced a spacious two-storey layout with three bedrooms and two bathrooms, perfectly suited to modern living.
Classic hallmarks, including soaring ceilings, an arched hallway and generous scale, harmonise with bold architectural design that enhances light and openness. At the rear, a sun-filled living domain unfolds to a private north-facing courtyard with an urban backdrop, creating a low-maintenance retreat of exceptional style and convenience.
Wide-board oak flooring and timber accents bring warmth and texture to the living zone, while a sleek stone kitchen makes a striking statement in both form and function. Appointed with a smoked mirror splashback, stainless steel appliances and bold black cabinetry, it’s designed for everyday living and entertaining ease. Tall bi-fold doors extend the space outdoors to the paved and securely fenced, al fresco courtyard with rear lane access.
Accommodation is both flexible and inviting, with a ground-floor bedroom featuring twin robes and an open fireplace (ornamental), serviced by a stylish designer bathroom. Above, a skylit staircase leads to two generously proportioned bedrooms and a fully tiled bathroom, where a floating stone vanity, rain shower and deep bathtub deliver a luxe, spa-like finish.
Additional features include a Euro laundry, double glazing, split-system heating and cooling on both levels, and excellent under-stair storage. Positioned for an enviable inner-city lifestyle, its moments from parkland, light rail, Bay Street’s dining scene, South Melbourne Market, MSAC, Albert Park Lake and the beach, placing the very best of bayside and city living within easy reach.
For more information about this contemporary city-edge cottage please contact Halli Moore at Buxton Brighton on 0403 777 661.
When location and lifestyle are non-negotiable, this stylishly reimagined residence delivers on every level in a coveted city-edge setting. Beyond its charming cottage origins, a contemporary renovation has introduced a spacious two-storey layout with three bedrooms and two bathrooms, perfectly suited to modern living.
Classic hallmarks, including...
When location and lifestyle are non-negotiable, this stylishly reimagined residence delivers on every level in a coveted city-edge setting. Beyond its charming cottage origins, a contemporary renovation has introduced a spacious two-storey layout with three bedrooms and two bathrooms, perfectly suited to modern living.
Classic hallmarks, including soaring ceilings, an arched hallway and generous scale, harmonise with bold architectural design that enhances light and openness. At the rear, a sun-filled living domain unfolds to a private north-facing courtyard with an urban backdrop, creating a low-maintenance retreat of exceptional style and convenience.
Wide-board oak flooring and timber accents bring warmth and texture to the living zone, while a sleek stone kitchen makes a striking statement in both form and function. Appointed with a smoked mirror splashback, stainless steel appliances and bold black cabinetry, it’s designed for everyday living and entertaining ease. Tall bi-fold doors extend the space outdoors to the paved and securely fenced, al fresco courtyard with rear lane access.
Accommodation is both flexible and inviting, with a ground-floor bedroom featuring twin robes and an open fireplace (ornamental), serviced by a stylish designer bathroom. Above, a skylit staircase leads to two generously proportioned bedrooms and a fully tiled bathroom, where a floating stone vanity, rain shower and deep bathtub deliver a luxe, spa-like finish.
Additional features include a Euro laundry, double glazing, split-system heating and cooling on both levels, and excellent under-stair storage. Positioned for an enviable inner-city lifestyle, its moments from parkland, light rail, Bay Street’s dining scene, South Melbourne Market, MSAC, Albert Park Lake and the beach, placing the very best of bayside and city living within easy reach.
For more information about this contemporary city-edge cottage please contact Halli Moore at Buxton Brighton on 0403 777 661.
Buxton Brighton
Level 1, 28 Carpenter Street,
BRIGHTON VIC
3186
We'll give you a clear, honest assessment based on real market insights, so you can make informed decisions with confidence.
Local knowledge. Proven results. Trusted advice.
