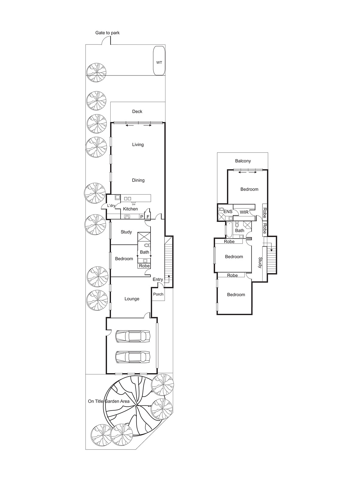
Carnegie's most rewarding buy comes with great accommodation, state-of-the-art style and direct access to the park!
Cascading over two levels on the curve of this parkside cul-de-sac, this ultra-modern up to five-bedroom, three-bathroom home goes beyond contemporary expectations with prestige European appliances in the Granite kitchen, glossy...
Carnegie's most rewarding buy comes with great accommodation, state-of-the-art style and direct access to the park!
Cascading over two levels on the curve of this parkside cul-de-sac, this ultra-modern up to five-bedroom, three-bathroom home goes beyond contemporary expectations with prestige European appliances in the Granite kitchen, glossy Italian floor tiles & a spectacular master-suite (with vista views of Packer Park from a dining-sized terrace).
Designed for effortless family function with a formal lounge zoned away from a vast open plan domain plus a second ensuite on the ground floor (perfect for in-law or guest accommodation), this high-impact home features ducted heating and split system air-con for climate control, alarm for security, LED and sensor lighting, ducted vacuum, built-in robes and a spacious study nook at the heart of a first floor sleeping zone.
Even the 430sqm approx. land size with landscaped gardens combine modernist quality and modern amenity with a big double garage, auto irrigated front and rear gardens, 2x 2500L water tanks and private gated access to the park beyond lawned and paved entertaining areas.
Best of all, this luxury showpiece has a location for an easy life - with Packer Park's wide open spaces to the rear and side, North Road's transformed restaurant, rail and retail strip within minutes, the shops of Koornang Rd and Left Field cafe within a stroll & Chadstone's easy commute. ALL ENQUIRIES MUST INCLUDE A CONTACT NUMBER.
Listing Website