Offered for the first time in over 60 years, this in-zone brick beauty provides a solid base for a bright new beginning! Located in the McKinnon Secondary College zone, the current configuration offers heating & cooling, 4 bedrooms, L-shaped lounge/dining, skylit central kitchen, separate laundry, family bathroom, 2nd toilet, 2nd shower, lock up...
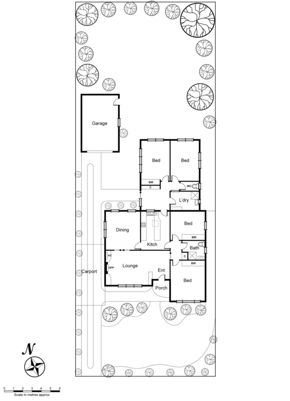
Offered for the first time in over 60 years, this in-zone brick beauty provides a solid base for a bright new beginning! Located in the McKinnon Secondary College zone, the current configuration offers heating & cooling, 4 bedrooms, L-shaped lounge/dining, skylit central kitchen, separate laundry, family bathroom, 2nd toilet, 2nd shower, lock up garage & carport! Update the existing, extend into private rear gardens, or re-develop (STCA) in this preferred location where the kids can walk to either McKinnon Primary or Secondary without crossing any major roads! Close to parks, shops & zone 1 station. Land 601sqmts approx. (50ft frontage approx)