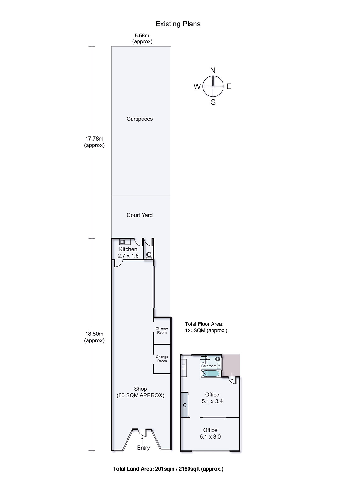
Bars, baristas and boutiques are fuelling the Highett Rd transformation ...now it's your chance to build on the boom! Just 75metres from the station in the heart of this fast-evolving retail and rail strip, this two-storey, solid-brick shop (511) and studio (511A) on around 201sqm has all the elements of on-going success - including the prospect of...
Bars, baristas and boutiques are fuelling the Highett Rd transformation ...now it's your chance to build on the boom! Just 75metres from the station in the heart of this fast-evolving retail and rail strip, this two-storey, solid-brick shop (511) and studio (511A) on around 201sqm has all the elements of on-going success - including the prospect of retaining two existing tenancies (returning a combined total of approx $41,600pa gross rental return), approved plans to upgrade and extend and potential for future Commercial Zone 1 development - subject to Council approval.
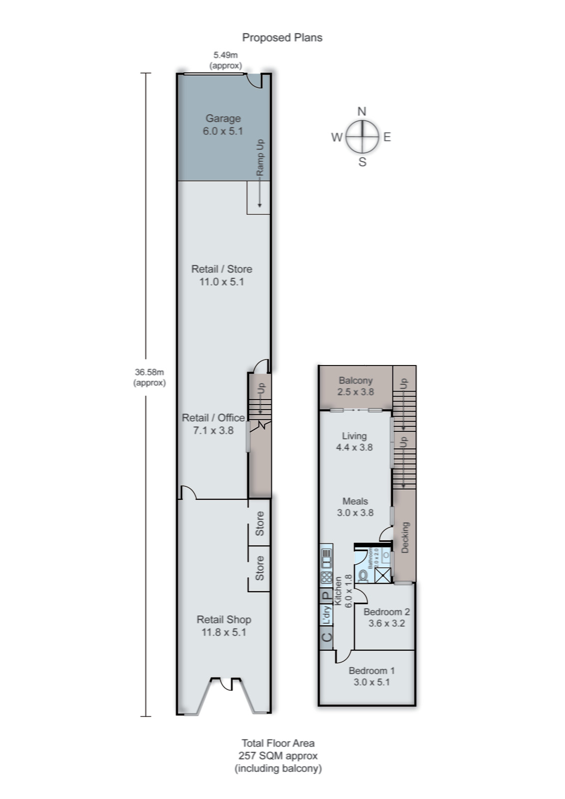
Currently configured as an approx 80sqm shopfront with two changing rooms on the ground-floor, and a two room studio above, this versatile property has kitchen and bathroom facilities on each floor, rear laneway access three-car parking and a sun-catching northerly rear aspect with likely high-level city views. Offered with plans to improve on ground-floor space with an extended shop area and garage plus a stylish two bedroom first-floor balcony apartment, this could be the easiest value-add on Highett Rd.
Already to providing a solid return, already to extend and add value, there's also future scope to take this Commercial Zone1 property to a new level with an exciting all-new development (subject to Council Approval). Get to work right now, stand tall, maximise north sun and capitalise on potential views...or bide your time until it's time to join the neighbours and hear the boom! For more information about this Highett Rd retail strip property contact Adam Gillon at Buxton Hampton East on 0418 313 354.